Cookies op Estata Makelaars O.G.

Fijn dat je verder wilt lezen. We gebruiken cookies om de website naar behoren te laten werken, om functies voor social media te bieden en om onze website te analyseren. Dit gebeurt anoniem. Je gaat akkoord met onze cookies als je onze website blijft gebruiken. Op onze website kun je ook ons privacybeleid vinden.

Paul Gabrielstraat 9 Verkocht

2596 VA, Den Haag (gelegen in de buurt Benoordenhout)


Omschrijving

Sfeervolle parterre met tussenbouw aan de achterzijde op zeer gewilde plek met twee slaapkamers, woon-eetkamer en suite, ruime keuken en een zonnige achtertuin.

Gelegen in de geliefde wijk Benoordenhout, op loopafstand van de Hoytemastraat voor de dagelijkse boodschappen met (kleine) AH en de heerlijke speciaalzaakjes, leuke koffietentjes, terrassen en restaurants. Park Arendsdorp en Park Clingendael liggen om de hoek. Vele sportverenigingen (voetbal, tennis, padel, hockey, cricket, golf) en het strand en de Haagse binnenstad zijn makkelijk met de fiets bereikbaar. Gunstig gelegen ten opzichte van de uitvalswegen (A44, A4, A12 en A13) en het openbaar vervoer.

Kortom heerlijk wonen in een zeer geliefde en levendige buurt!

Indeling:
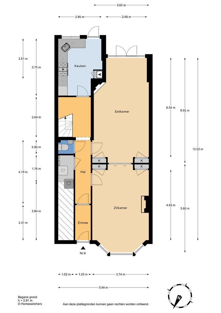
Eigen voordeur, hal met glas-in-lood tochtseparatie, gang met originele granieten vloer, diepe gangkast met wasmachine en wc met fonteintje.
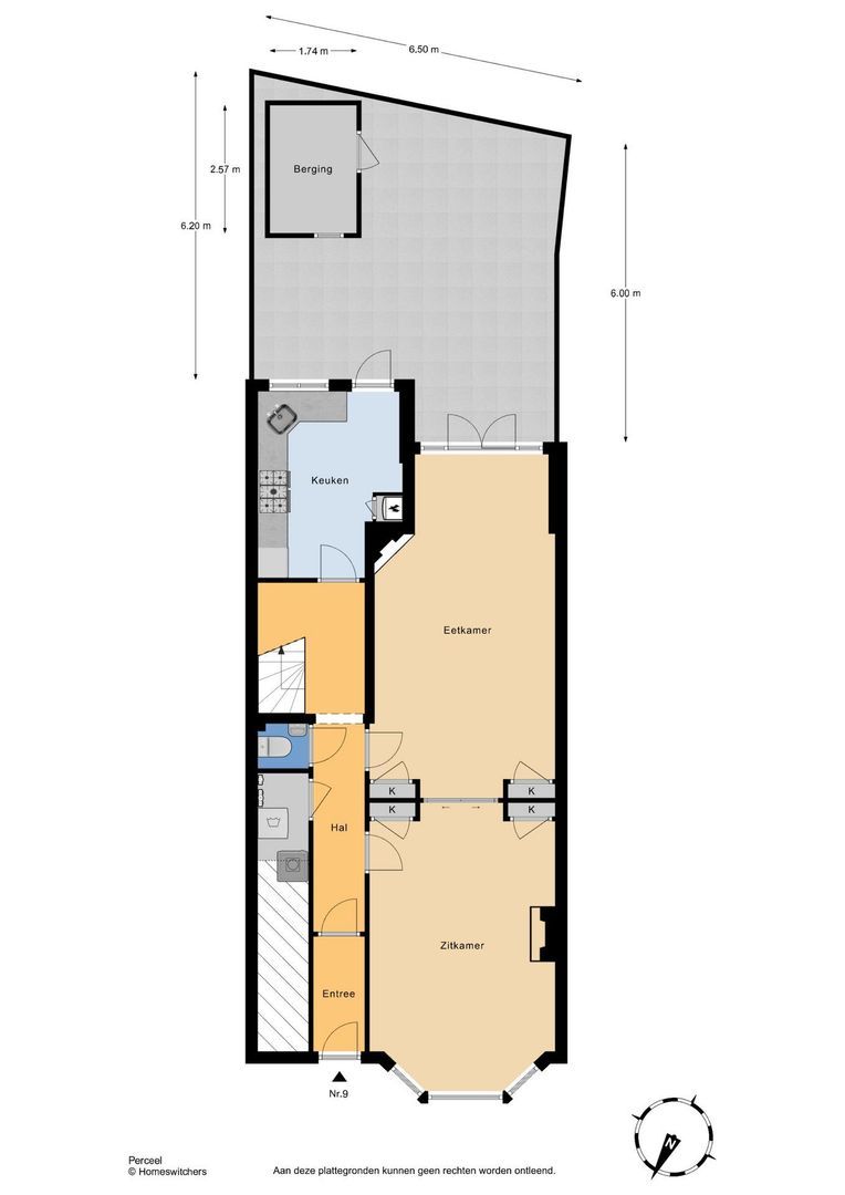
Kamers en suite eet/studeerkamer met schouw aan de voorzijde, oorspronkelijke schuifseparatie met vaste kasten. Aan de achterzijde sfeervolle zitkamer met open haard en openslaande deuren naar de achtertuin, ruime keuken met eigen deur naar de zonnige tuin met aparte berging.
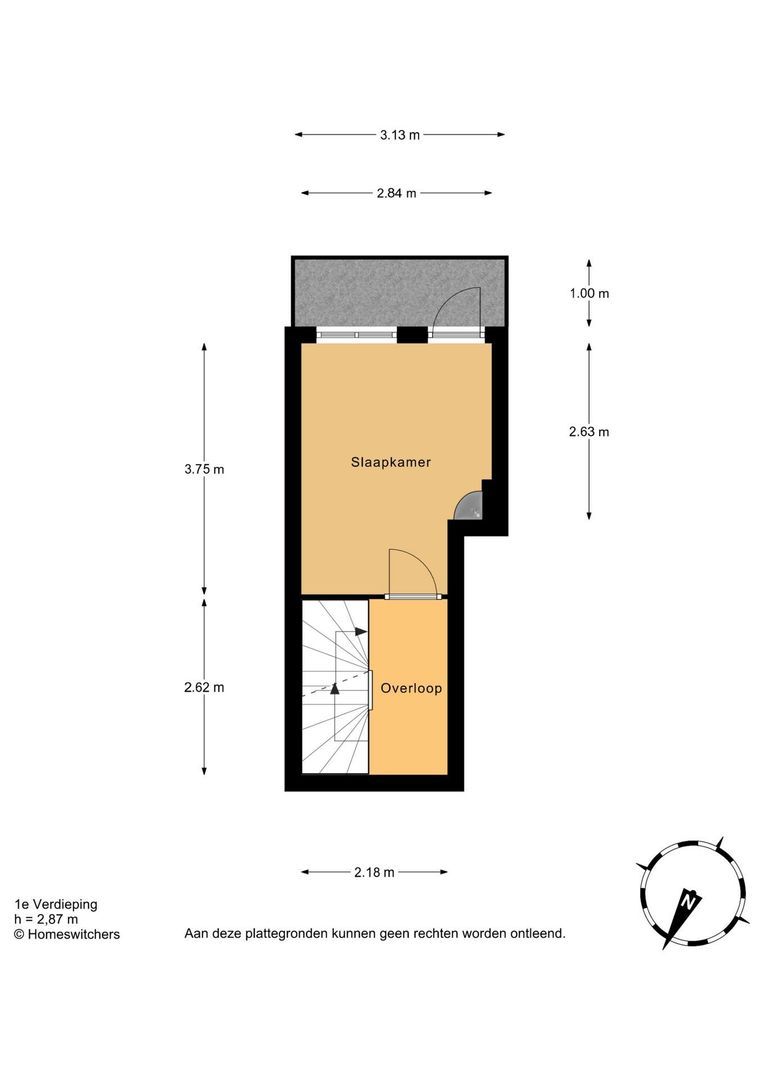
Trap naar de 1e verdieping, kleine overloop met een slaapkamer met vaste wastafel en balkon, trap naar de 2e verdieping met kleine overloop, 2e slaapkamer met balkon en moderne badkamer met wc, douche, vaste wastafel en handdoekenradiator

Kenmerken:
- eigen grond
- bouwjaar 1930
- woonoppervlakte circa 105 m²
- ruim en gezellig benedenhuis met tussenbouw aan de achterzijde
- het betreft een Rijks beschermd stadsgezicht
- gelegen in het zeer gewilde Benoordenhout
- alle winkels voor de dagelijkse boodschappen binnen handbereik
- nabij talloze basis- en middelbare scholen
- zonnige achtertuin op het zuiden
- goede ligging nabij openbaar vervoer, uitvalswegen en alle faciliteiten die de stad te bieden heeft
- maten zijn indicatief conform NVM meetinstructie
- de ouderdoms- en materialen clausules worden opgenomen in de NVM-koopovereenkomst

Interesse in dit appartement? Schakel direct uw eigen NVM-aankoopmakelaar in.
Uw NVM-aankoopmakelaar komt op voor uw belang en bespaart u tijd, geld en zorgen.
Adressen van collega NVM-aankoopmakelaars in Haaglanden vindt u op Funda.

Deze informatie is door ons kantoor met de grootste zorg samengesteld onder andere aan de hand van de door de verkoper aan ons ter beschikking gestelde gegevens. Door Estata wordt geen enkele aansprakelijkheid aanvaard voor enige onvolledigheid, onjuistheid of anderszins, dan wel de gevolgen daarvan.

English text:
Nice ground floor apartment in highly sought-after location with two bedrooms, living-dining room en suite, good size kitchen and sunny back garden.

Located in the popular neighbourhood Benoordenhout, within walking distance of the Hoytemastraat for daily shopping with (small) AH supermarket and lovely specialty shops, nice coffees, terraces and restaurants. Park Arensdorp and Park Clingendael are just around the corner. Many sports clubs (football, tennis, padel, hockey, cricket, golf) and the beach and The Hague city centre are easy to reach by bicycle. Conveniently located to the motorways (A44, A4, A12 and A13) and public transport.

In short, lovely living in a very popular and lively neighbourhood!

Other features:
- own land
- living area approx 105 m²
- spacious and cosy ground floor apartment with extension at the back for the 2 bedrooms (2 extra layers)
- it concerns a national protected townscape
- located in the very popular Benoordenhout
- all shops for daily shopping within easy reach
- near numerous primary and secondary schools
- south-facing sunny back garden
- good location near public transport, exit roads and all facilities the city has to offer
- dimensions are indicative in accordance with NVM measurement instructions
- age and materials clauses will be included in the NVM purchase agreement

Kenmerken

Overdracht

Prijs
€ 615.000 k.k.
Status
Verkocht
Oplevering
In overleg
Bijdrage VVE
€ 75

Oppervlakten en inhoud

Woonoppervlakte
105m²
Inhoud
408m³

Bouw

Soort appartement
Benedenwoning, Appartement
Woonlaag
1
Soort bouw
Bestaande bouw
Bouwjaar
1930
Onderhoud binnen
Goed
Onderhoud buiten
Goed

Indeling

Aantal kamers
4
Aantal slaapkamers
2
Aantal badkamers
1
Aantal verdiepingen
3
Voorzieningen
Mechanische ventilatie, Rookkanaal

Energie

Energielabel
D
Warm water
C.V.-ketel
Verwarming
C.V.-ketel, Open haard
Ketel
Remeha Avanta 26=8C (2012, Combi-ketel, Eigendom)

Buitenruimte

Ligging
Aan rustige weg, In woonwijk, Beschutte ligging
Balkon
Ja
Tuin
Achtertuin
Schuur
Vrijstaand hout

Garage

Soort
Openbaar parkeren, Betaald parkeren, Parkeervergunning

Locatie

[ { "address": "Paul Gabrielstraat 9", "zipCode": "2596 VA", "city": "Den Haag", "lat": 52.0927884, "lng": 4.323032, "heading": 0, "pitch": 0 } ]
[{"featureType":"water","stylers":[{"visibility":"on"},{"lightness":20},{"saturation":-42},{"hue":"#00ccff"}]},{"featureType":"landscape.man_made","elementType":"geometry","stylers":[{"visibility":"on"},{"saturation":-99},{"lightness":51}]},{"featureType":"road.arterial","elementType":"geometry","stylers":[{"saturation":-98},{"lightness":35}]},{"featureType":"road.highway","elementType":"geometry","stylers":[{"saturation":-95},{"lightness":-10},{"gamma":2.17}]},{"featureType":"poi.park","stylers":[{"visibility":"on"},{"lightness":30},{"saturation":-50},{"hue":"#a1ff00"}]},{"featureType":"poi.school","elementType":"geometry","stylers":[{"saturation":-25},{"lightness":12},{"hue":"#ffdd00"}]},{"featureType":"road.local","stylers":[{"saturation":-100},{"lightness":15}]},{"featureType":"administrative.neighborhood","stylers":[{"visibility":"on"},{"saturation":-100},{"lightness":35}]},{"featureType":"poi.attraction","elementType":"labels","stylers":[{"lightness":15},{"hue":"#ff005d"},{"visibility":"simplified"},{"saturation":-100}]},{"featureType":"road.arterial","elementType":"labels","stylers":[{"visibility":"on"},{"saturation":-98},{"lightness":41},{"gamma":0.75}]},{"featureType":"road.highway","elementType":"labels","stylers":[{"visibility":"simplified"},{"lightness":20},{"saturation":-60}]},{"featureType":"transit.line","stylers":[{"visibility":"simplified"},{"saturation":-25},{"lightness":35}]},{"featureType":"transit.station","elementType":"labels","stylers":[{"lightness":10},{"saturation":-72}]},{"featureType":"poi","elementType":"geometry","stylers":[{"lightness":15},{"saturation":7}]},{"featureType":"poi.place_of_worship","elementType":"labels","stylers":[{"visibility":"off"}]},{"featureType":"poi.sports_complex","elementType":"labels","stylers":[{"visibility":"off"}]},{"featureType":"road","elementType":"labels","stylers":[{"visibility":"off"}]},{"featureType":"road.local","elementType":"labels","stylers":[{"visibility":"on"},{"saturation":-100},{"lightness":21}]},{"featureType":"road.arterial","elementType":"labels","stylers":[{"visibility":"on"},{"lightness":25}]},{"featureType":"transit.line","stylers":[{"visibility":"off"}]},{"featureType":"poi","elementType":"labels","stylers":[{"saturation":-100},{"lightness":35}]},{}]

Vragen?

Bel ons of vul onderstaand formulier in dan nemen wij z.s.m. contact met je op.

Deze woning is Verkocht

Hartelijk dank

Je bericht is naar ons verzonden. Wij nemen zo snel mogelijk contact met je op.

Sorry, we kunnen helaas niet met zekerheid vaststellen of je een mens of een geautomatiseerde bot/spammer bent. Hierdoor kunnen we het formulier dat je hebt ingevuld niet verzenden. Probeer het opnieuw of neem direct contact op met de makelaar via e-mail.

Er is iets mis gegaan met het versturen van het formulier.
Controleer of alle velden (goed) zijn ingevoerd en probeer het nog een keer.

Wil je een bezichtiging plannen?

recaptcha
reCAPTCHA
PrivacyTerms

Liever telefonisch contact?

Wij zijn bereikbaar op werkdagen tussen 9:00 en 17:30 op +31 70 350 7050

Vergelijkbare woningen

Verkocht
Neuhuyskade 8
Benoordenhout, Den Haag
Bovenwoning, 200m², 6 kamers
€ 649.000 k.k.
Verkocht
Stalpertstraat 83
Benoordenhout, Den Haag
Beneden + bovenwoning, 137m², 4 kamers
€ 575.000 k.k.
Verkocht
Van Hogenhoucklaan 46
Benoordenhout, Den Haag
Bovenwoning, 96m², 4 kamers
€ 500.000 k.k.
Verkocht
Jan van Houtstraat 122
Geuzen- en Statenkwartier, Den Haag
Bovenwoning, 118m², 6 kamers
€ 550.000 k.k.