Cookies op Estata Makelaars O.G.

Fijn dat je verder wilt lezen. We gebruiken cookies om de website naar behoren te laten werken, om functies voor social media te bieden en om onze website te analyseren. Dit gebeurt anoniem. Je gaat akkoord met onze cookies als je onze website blijft gebruiken. Op onze website kun je ook ons privacybeleid vinden.

Plesmanweg 385 Sold

2597 JG, Den Haag (located in the neighbourhood Westbroekpark en Duttendel)


Description

APARTMENT IN ICONIC COMPEX, IN MINT CONDITION AND READY TO MOVE IN!

The Plesmanduin is a recently completed development housed in an historic listed building. Named after the renowned Dutch aviation pioneer Philip Plesman, it was once the headquarters of KLM Royal Dutch Airlines and later housed the Ministry of Infrastructure and Water Management. The building is built in 1938. The building renovation was from 2021 until 2023.

Nestled between the seaside and the city centre, the location is nothing short of ideal. Parks, shops, public transport and major motorways are all within easy reach.

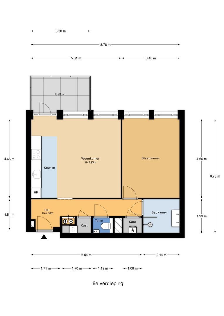
The apartment is on the 6-th floor and accessible via lift or stairs, apartment entrance, living room with open plan kitchen with integrated appliances, a bathroom with walk-in shower, a separate wc, laundry and a spacious balcony.

The apartment is excellently insulated, the underfloor heating and cooling in combination with a WTW installation and air purification installation ensure a comfortable indoor climate. A standout feature is the energy efficient and sustainable heating and cooling system (WKO) using heat pumps, ensuring year-round comfort. Heat Cold Storage (WKO) is used for heating and cooling. WKO is a reliable energy source, sustainable, economical and comfortable. This is purchased from a central distribution network (Eteck), with a current advance payment of € 100,00 per month (incl. delivery set and heat exchanger)

Details:

- see floor plan for dimensions.
- an age-related and materials clause, as well as non-occupancy clause applies.
- active VvE including a garden committee and technical committee. The monthly contribution is € 205,-. The VvE is registered with the Chamber of Commerce, has a collective building insurance and a multi-year maintenance plan
- shared bicycle storage in the basement
- energylabel is A
- in the basement of the complex is a sports area, which can be used for a fee. The building also offers accommodation and meeting facilities and a restaurant.

This information has been compiled by our office with the greatest care, based on the information provided to us by the seller. Estata accepts no liability for any inaccuracies, omissions, or other consequences.

Details

Transaction

Price
€ 395.000 k.k.
Status
Sold
Acceptance
Directly
Homeowners association costs
€ 205

Surface and volume

Living surface
59m²
Volume
397m³

Build

Apartment type
Upper floor apartment, Apartment
Bottom floor
6
Build type
Existing
Build year
2023
Maintenance inside
Excellent
Maintenance outside
Excellent
Particulars
Monument

Layout

Rooms
2
Bedrooms
1
Bathrooms
1
Number of floors
1
Facilities
Mechanical ventilation, Lift

Energy

Energy label
A
Isolation
Roof insulation, Wall insulation, Insulated glazing
Hot water
Central supply
Heating
Heat pump

Exterior areas

Location
In residental area, Clear view
Balcony
Yes

Garage

Type
Paid parking, Parking permit

Location

[ { "address": "Plesmanweg 385", "zipCode": "2597 JG", "city": "Den Haag", "lat": 52.0999755, "lng": 4.3018536, "heading": 0, "pitch": 0 } ]
[{"featureType":"water","stylers":[{"visibility":"on"},{"lightness":20},{"saturation":-42},{"hue":"#00ccff"}]},{"featureType":"landscape.man_made","elementType":"geometry","stylers":[{"visibility":"on"},{"saturation":-99},{"lightness":51}]},{"featureType":"road.arterial","elementType":"geometry","stylers":[{"saturation":-98},{"lightness":35}]},{"featureType":"road.highway","elementType":"geometry","stylers":[{"saturation":-95},{"lightness":-10},{"gamma":2.17}]},{"featureType":"poi.park","stylers":[{"visibility":"on"},{"lightness":30},{"saturation":-50},{"hue":"#a1ff00"}]},{"featureType":"poi.school","elementType":"geometry","stylers":[{"saturation":-25},{"lightness":12},{"hue":"#ffdd00"}]},{"featureType":"road.local","stylers":[{"saturation":-100},{"lightness":15}]},{"featureType":"administrative.neighborhood","stylers":[{"visibility":"on"},{"saturation":-100},{"lightness":35}]},{"featureType":"poi.attraction","elementType":"labels","stylers":[{"lightness":15},{"hue":"#ff005d"},{"visibility":"simplified"},{"saturation":-100}]},{"featureType":"road.arterial","elementType":"labels","stylers":[{"visibility":"on"},{"saturation":-98},{"lightness":41},{"gamma":0.75}]},{"featureType":"road.highway","elementType":"labels","stylers":[{"visibility":"simplified"},{"lightness":20},{"saturation":-60}]},{"featureType":"transit.line","stylers":[{"visibility":"simplified"},{"saturation":-25},{"lightness":35}]},{"featureType":"transit.station","elementType":"labels","stylers":[{"lightness":10},{"saturation":-72}]},{"featureType":"poi","elementType":"geometry","stylers":[{"lightness":15},{"saturation":7}]},{"featureType":"poi.place_of_worship","elementType":"labels","stylers":[{"visibility":"off"}]},{"featureType":"poi.sports_complex","elementType":"labels","stylers":[{"visibility":"off"}]},{"featureType":"road","elementType":"labels","stylers":[{"visibility":"off"}]},{"featureType":"road.local","elementType":"labels","stylers":[{"visibility":"on"},{"saturation":-100},{"lightness":21}]},{"featureType":"road.arterial","elementType":"labels","stylers":[{"visibility":"on"},{"lightness":25}]},{"featureType":"transit.line","stylers":[{"visibility":"off"}]},{"featureType":"poi","elementType":"labels","stylers":[{"saturation":-100},{"lightness":35}]},{}]

Floor plans

Plesmanweg 385 floorplan

Questions?

Fill in the form below and we will contact you as soon as possible.

This home has been Sold

Thank you

Your message has been successfully sent. We will contact you very soon!

Unfortunately we can not conclusively determine whether you are a human or an automated bot/spammer. Hence, we are unable to submit the form. Please retry or contact the real estate agent directly via email.

Something went wrong while sending the contact form. Check if you correctly filled in all required fields and try again.

Do you want to schedule a tour?

recaptcha
reCAPTCHA
PrivacyTerms

Rather call?

We are available on business days between 9:00 and 17:30 on +31 70 350 7050

Similar houses

Sold
Mallemolen 55 40
Archipelbuurt, Den Haag
Patio house, 72m², 3 rooms
€ 415.000 k.k.
Sold
Goetlijfstraat 12
Benoordenhout, Den Haag
Ground floor apartment, 70m², 2 rooms
€ 400.000 k.k.
Sold
Zwolsestraat 315
Belgisch Park, Den Haag
Upper floor apartment, 78m², 4 rooms
€ 325.000 k.k.
Sold
Antonie Heinsiusstraat 27 A
Geuzen- en Statenkwartier, Den Haag
Upper floor apartment, 70m², 5 rooms
€ 375.000 k.k.