Cookies op Estata Makelaars O.G.

Fijn dat je verder wilt lezen. We gebruiken cookies om de website naar behoren te laten werken, om functies voor social media te bieden en om onze website te analyseren. Dit gebeurt anoniem. Je gaat akkoord met onze cookies als je onze website blijft gebruiken. Op onze website kun je ook ons privacybeleid vinden.

Willemstraat 11 Verkocht

2514 HJ, Den Haag (gelegen in de buurt Centrum)


Omschrijving

Achter een klassieke gevel bevindt zich een zeer licht en modern huis, uniek in zijn soort!

Volledig gerenoveerd zeer royaal (ca.315m2) luxe herenhuis met A-label, diepe zonnige achtertuin met achterom en vrij uitzicht, overdekt terras met haard en optioneel een eigen royale (dubbele) parkeerplaats, (verhuurd) appartement en berging.

Het huis is in 2016 onder architectuur uitgebouwd en in 2016-2018 volledig op het hoogste niveau gerenoveerd, gelegen in het meest gewilde deel van het centrum van Den Haag (buurtschap 2005), is verdeeld over vier verdiepingen en heeft een royale living aan de tuin met een centraal gelegen complete open keuken en aan de straatzijde een eetkamer, ”Master suite” met werk, bad en kleedkamer, drie extra slaapkamers met eigen badkamers, een sport en waskamer.

Een fantastische stadslocatie op een steenworp afstand van het iconische Lange Voorhout en de levendige Denneweg en op slechts enkele minuten van de beste winkel-, eet- en uitgaansgelegenheden van Den Haag.

Deze uitzonderlijk lichte en ruime woning heeft in 2016-2018 een grondige renovatie ondergaan en daarbij nagenoeg volledig nieuw is opgebouwd, bij deze totaal renovatie zijn ander andere de navolgende zaken uitgevoerd:
• Gehele woning is voorzien van nieuwe kozijnen met HR++ glas;
• De woning is onder architectuur “Team V” architecten uitgebouwd;
• De uitbouw is voorzien van een plafondhoge glas-pui;
• De gehele woning is voorzien van vloerverwarming;
• De begane grond en het souterrain zijn voorzien van een fraaie gietvloer;
• De etages zijn voorzien van eiken vloeren (2023);
• Er is een speciaal voor dit huis ontworpen trap geplaatst van staal en beton;
• Luxe complete keuken met Viking fornuis, Gaggenau koelwand met koel, vries en wijnkoelkast, Miele hogedruk stoomoven, Quooker en vaatwasser;
• Gashaard in de eetkamer en in de “Master suite”;
• Plafond hoge stalen deuren met glas;
• Diverse maatgemaakte inbouw en vaste kasten;
• Nieuwe installaties voor verwarming en warm water;
• Mechanische ventilatie en pompen;
• Nieuwe elektrische installatie met 16 groepen voorzien van aardlek en versterkte groepen;
• Bedraad internet en kabeltelevisie;
• Alarminstallatie;
• Intercom met videofoon;
• Luxe inbouw en opbouwverlichting;

INDELING

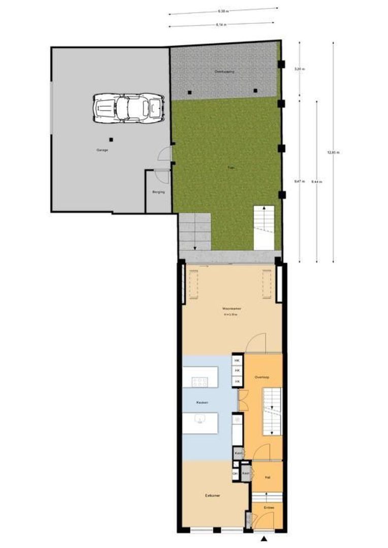
BELETAGE:
Entree met meterkast en garderobe, marmeren treden, tochtseparatie, ruime hal met open design trap, trap naar souterrain, plafondhoge stalen deuren met glas naar de lichte en tuingerichte living en luxe complete Barletti woonkeuken met gashaard en over de gehele etage een fraaie gietvloer met vloerverwarming.
Vanuit de living middels een plafondhoge glazen pui toegang tot de fraai aangelegde zonnige tuin met groot overdekt terras met buitenhaard en toegang tot de in de naastgelegen (dubbele) garage gelegen royale parkeerplaats met ruimte voor meerdere fietsen en een berging (optioneel te koop).

SOUTERAIN:
Vanuit de hal, maar ook vanuit de achtertuin is er middels een luie trap toegang tot het souterrain met een ruime sportkamer aan de achterzijde, separaat toilet met fonteintje, grote waskamer met ligbad, bergruimtes en een slaapkamer aan de voorzijde met eigen luxe badkamer voorzien van wc, wastafelmeubel en inloopdouche.

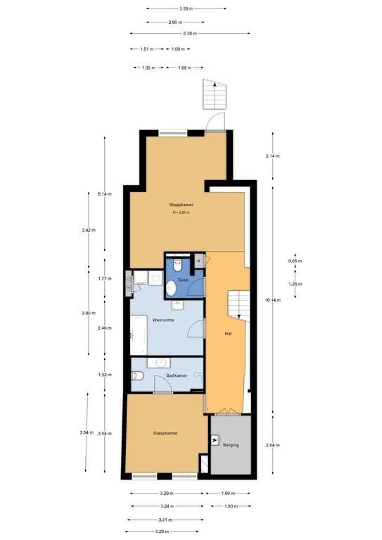
EERSTE ETAGE:
Vanuit de hal is er middels een luie, open (speciaal voor dit huis ontworpen) trap toegang tot de 1e verdieping. Ruime overloop met vaste kasten en een technische ruimte, aan de voorzijde en achterzijde een grote slaapkamer met eigen badkamers voorzien van WC, wastafelmeubel en inloopdouche, de achterste slaapkamer is zelfs voorzien van een walk-in closet.

TWEEDE ETAGE:
Op de 2e verdieping is de gehele etage ingericht als een “Master suite” met een open (4,60m hoog!) plafond met balken tot in de nok, heerlijk licht door de aanwezige dakramen. Aan de voorzijde is een ruime werkkamer gelegen, met doorloop via de walk-in closet naar de open badkamer met zeer royale douche met grote plafondregendouche, dubbel wastafelmeubel, separate WC en slaapkamer aan de achterzijde met gashaard en vrijstaand bad in de kamer.

BIJZONDERHEDEN:

• Afgekochte erfpacht, perceel 183m2;
• Woonoppervlak ca. 315m2;
• 5/6 slaapkamers, 4 badkamers;
• Riante achtertuin met veranda voorzien van buitenhaard;
• Geheel gerenoveerd in 2016-2018 door gerenommeerde aannemer;
• Achterom vanuit de tuin naar de Willemstraat;
• Rijksbeschermd Stadsgezicht;
• De ouderdoms- en materialenclausule worden opgenomen in de NVM-koopovereenkomst;
• De maten zijn indicatief conform de NVM meetinstructie;

SEPARAAT APPARTEMENT MET PARKEERPLAATS.
(Alleen te koop in combinatie met het huis op de Willemstraat 11)

Vraagprijs: €475.000,-

In het naast het huis gelegen appartementencomplex penthouse appartement van ca. 70m2 met royale (dubbele) parkeerplaats, met ruimte voor een auto, meerdere fietsen en een berging.
De in de garage gelegen parkeerplaats is te bereiken vanuit de tuin van de woning aan de Willemstraat 11 en wordt thans gebruikt door de eigenaren van de Willemstraat 11 zelf. Het appartement is verhuurd voor onbepaalde tijd met een jaarhuur van €21.180,-

OMSCHRIJVING APPARTEMENT:
Ruim en stijlvol tweekamer appartement bovenin een klein appartementencomplex in het populaire Buurtschap 2005.
Dit bijzondere, rustig gelegen top-appartement heeft een zonnig terras aan de voorzijde met vrij uitzicht en een ruime berging en privé parkeerplaats in de onderbouw. Het gebouw is goed beveiligd middels een centraal toegangssysteem en camerabeveiliging in de garage.

INDELING:
Gemeenschappelijk entree op de begane grond met brievenbussen en bellentableau. Trap of lift naar de 3e verdieping.
Entree appartement: hal/gang met meter- en ruime opslagkast, lichte, ruime woonkamer (5,50 x 4,20) met openslaande deuren naar het zonnige terras met uitzicht op de tuin van de aan de Parkstraat gelegen Sint Jacobskerk. Recent vernieuwde open keuken (2,50 x 3,20) voorzien alle mogelijke inbouwapparatuur van Siemens (zoals keramische kookplaat, bakoven, geïntegreerde afzuigkap, vaatwasmachine, koelkast en vriezer).
De hal/gang geeft tevens toegang tot een modern toilet met fontein en een wit betegelde badkamer met ligbad, wastafel en wasmachine aansluiting. Grote slaapkamer (5,50 x 4,20) met toegang tot het zonnig balkon (ca 10 m²), over de volle breedte van het appartement.

Het hele appartement, met uitzondering van badkamer en toilet, is voorzien van een prachtige laminaat vloer.
In de onderbouw privé parkeerruimte van 4,75 x 6,75 waar eventueel twee auto's kunnen worden gestald. Tevens ruime berging met elektra. De parkeergarage kent twaalf vaste parkeerplaatsen, in eigendom van de bewoners van het complex. De ruimte is via een op afstand bedienbare garagedeur te bereiken.

BIJZONDERHEDEN:
• Gelegen op eigen grond;
• Rijksbeschermd Stadsgezicht;
• Stadsverwarming;
• B-label;
• Electra 5 groepen met aardlekschakelaar;
• Hardhouten kozijnen met dubbele beglazing;
• De ouderdoms-, materialen en niet-bewonersclausule worden opgenomen in de NVM-koopovereenkomst;
• De maten zijn indicatief conform de NVM meetinstructie;

Bent u enthousiast over dit huis, maar heeft u uw eigen huis nog niet verkocht? Neem dan contact met ons kantoor op voor een waardebepaling, zonder enige verdere verplichting. We plannen dan direct een afspraak in met één van onze makelaars zodat u op korte termijn zicht heeft op uw mogelijkheden.

Deze informatie is door ons kantoor met de grootste zorg samengesteld onder andere aan de hand van de door de verkoper aan ons ter beschikking gestelde gegevens. Door Estata wordt geen enkele aansprakelijkheid aanvaard voor enige onvolledigheid, onjuistheid of anderszins, dan wel de gevolgen daarvan.



ENGLISH TRANSLATION:


Behind a classic facade lies a very light and modern house, unique in its kind!

Fully renovated very spacious (approx. 315m2) luxury townhouse with an A-label, deep sunny backyard with back entrance and unobstructed view, covered terrace with fireplace, and optionally a private generous (double) parking space, (rented) apartment, and storage.

The house was architecturally extended in 2016 and fully renovated to the highest level in 2016-2018. Located in the most desirable part of the center of The Hague (Buurtschap 2005), it is spread over four floors and features a generous living area facing the garden with a centrally located open kitchen and a dining room facing the street, a "Master suite" with work, bath, and dressing room, three additional bedrooms with private bathrooms, a gym and laundry room.

A fantastic city location just a stone's throw from the iconic Lange Voorhout and the lively Denneweg, and just minutes from The Hague's best shopping, dining, and entertainment venues.

This exceptionally bright and spacious home underwent a thorough renovation in 2016-2018 and was almost entirely rebuilt. The total renovation included:

Entire house fitted with new frames and HR++ glass;
House extended under the architecture of "Team V" architects;
Extension with floor-to-ceiling glass facade;
Entire house equipped with underfloor heating;
Ground floor and basement have a beautiful cast floor;
Floors fitted with oak floors (2023);
Specially designed steel and concrete staircase;
Luxurious complete kitchen with Viking stove, Gaggenau cooling wall with fridge, freezer, and wine cooler, Miele high-pressure steam oven, Quooker, and dishwasher;
Gas fireplace in the dining room and "Master suite";
Ceiling-high steel doors with glass;
Various custom-made built-in and fixed wardrobes;
New heating and hot water installations;
Mechanical ventilation and pumps;
New electrical installation with 16 groups equipped with residual current devices and reinforced groups;
Wired internet and cable TV;
Alarm system;
Intercom with videophone;
Luxury built-in and surface-mounted lighting.
LAYOUT

BELETAGE:
Entrance with meter cupboard and wardrobe, marble steps, vestibule, spacious hall with open design staircase, stairs to the basement, ceiling-high steel doors with glass to the light and garden-oriented living area and luxurious complete Barletti living kitchen with gas fireplace and a beautiful cast floor with underfloor heating throughout the entire floor. From the living area, via a floor-to-ceiling glass facade, access to the beautifully landscaped sunny garden with large covered terrace with outdoor fireplace and access to the adjacent (double) garage with generous parking space for multiple bicycles and a storage room (optional for purchase).

BASEMENT:
From the hall, but also from the backyard, there is access via a gentle staircase to the basement with a spacious gym at the rear, separate toilet with washbasin, large laundry room with bathtub, storage spaces, and a bedroom at the front with its own luxurious bathroom with toilet, washbasin, and walk-in shower.

FIRST FLOOR:
From the hall, access via a gentle, open (specially designed for this house) staircase to the 1st floor. Spacious landing with fixed wardrobes and a technical room, large bedroom at the front and rear with private bathrooms with toilet, washbasin, and walk-in shower. The rear bedroom also features a walk-in closet.

SECOND FLOOR:
The entire floor is arranged as a "Master suite" with an open (4.60m high!) ceiling with beams up to the ridge, very bright due to the existing skylights. At the front is a spacious office, with a passage through the walk-in closet to the open bathroom with very large shower with a large ceiling rain shower, double washbasin, separate toilet, and bedroom at the rear with gas fireplace and freestanding bathtub in the room.

PARTICULARS:

Ground lease bought off, plot 183m2;
Living area approx. 315m2;
5/6 bedrooms, 4 bathrooms;
Spacious backyard with veranda with outdoor fireplace;
Fully renovated in 2016-2018 by a renowned contractor;
Back entrance from the garden to Willemstraat;
Nationally protected cityscape;
Age and materials clause will be included in the NVM purchase agreement;
Measurements are indicative according to NVM measurement instruction.
SEPARATE APARTMENT WITH PARKING SPACE.
(Only for sale in combination with the house at Willemstraat 11)

Asking price: €475,000

In the adjacent apartment complex, a penthouse apartment of approx. 70m2 with generous (double) parking space, with space for one car, multiple bicycles, and storage. The parking space located in the garage is accessible from the garden of the house at Willemstraat 11 and is currently used by the owners of Willemstraat 11 themselves. The apartment is rented indefinitely with an annual rent of €21,180.

APARTMENT DESCRIPTION:
Spacious and stylish two-room apartment at the top of a small apartment complex in the popular Buurtschap 2005. This special, quietly located top apartment has a sunny terrace at the front with an unobstructed view and a large storage room and private parking space in the basement. The building is well secured through a central access system and camera security in the garage.

LAYOUT:
Common entrance on the ground floor with mailboxes and doorbells. Stairs or elevator to the 3rd floor. Entrance apartment: hall/corridor with meter and spacious storage cupboard, bright, spacious living room (5.50 x 4.20) with French doors to the sunny terrace with a view of the garden of the Sint Jacobskerk located on Parkstraat. Recently renewed open kitchen (2.50 x 3.20) equipped with all possible built-in appliances from Siemens (such as ceramic hob, oven, integrated extractor hood, dishwasher, fridge, and freezer). The hall/corridor also gives access to a modern toilet with a fountain and a white-tiled bathroom with bathtub, washbasin, and washing machine connection. Large bedroom (5.50 x 4.20) with access to the sunny balcony (approx 10 m²), across the entire width of the apartment.

The whole apartment, except for the bathroom and toilet, has a beautiful laminate floor. In the basement private parking space of 4.75 x 6.75 where two cars can possibly be parked. Also, a spacious storage room with electricity. The parking garage has twelve fixed parking spaces, owned by the residents of the complex. The space is accessible via a remote-controlled garage door.

PARTICULARS:

Located on own ground;
Nationally protected cityscape;
District heating;
B-label;
Electricity 5 groups with residual current device;
Hardwood frames with double glazing;
Age, materials, and non-occupancy clause will be included in the NVM purchase agreement;
Measurements are indicative according to NVM measurement instruction.
Are you enthusiastic about this house but haven't sold your own home yet? Then contact our office for a valuation without any further obligation. We will immediately schedule an appointment with one of our brokers so that you have an overview of your possibilities in the short term.

This information has been compiled with the utmost care by our office, among other things, based on the data provided to us by the seller. Estata accepts no liability for any incompleteness, inaccuracy, or otherwise, or the consequences thereof.

Kenmerken

Overdracht

Prijs
€ 2.050.000 k.k.
Status
Verkocht
Oplevering
In overleg

Oppervlakten en inhoud

Woonoppervlakte
315m²
Perceeloppervlakte
183m²
Oppervlakte woonkamer
30m²
Inhoud
1.443m³

Bouw

Soort woonhuis
Herenhuis, Tussenwoning
Soort bouw
Bestaande bouw
Bouwjaar
1902
Onderhoud binnen
Uitstekend
Onderhoud buiten
Uitstekend
Bijzonderheden
Beschermd stads- of dorpgezicht

Indeling

Aantal kamers
8
Aantal slaapkamers
5
Aantal badkamers
5
Aantal verdiepingen
4
Voorzieningen
Mechanische ventilatie, Alarminstallatie, TV-Kabel, Rookkanaal, Schuifpui, Dakraam, Glasvezel kabel, Natuurlijke ventilatie

Energie

Energielabel
A
Isolatie
Dakisolatie, Muurisolatie, Dubbel glas, HR-glas
Warm water
C.V.-ketel
Verwarming
C.V.-ketel
Ketel
Daaldrop (2015, Combi-ketel, Eigendom)

Buitenruimte

Ligging
Aan rustige weg, In centrum, Vrij uitzicht
Tuin
Achtertuin
Achtertuin
82m², 638×1285cm

Garage

Soort garage
Inpandig, Parkeerkelder
Capaciteit
2
Afmetingen
7×5

Locatie

[ { "address": "Willemstraat 11", "zipCode": "2514 HJ", "city": "Den Haag", "lat": 52.0833545, "lng": 4.3099953, "heading": 0, "pitch": 0 } ]
[{"featureType":"water","stylers":[{"visibility":"on"},{"lightness":20},{"saturation":-42},{"hue":"#00ccff"}]},{"featureType":"landscape.man_made","elementType":"geometry","stylers":[{"visibility":"on"},{"saturation":-99},{"lightness":51}]},{"featureType":"road.arterial","elementType":"geometry","stylers":[{"saturation":-98},{"lightness":35}]},{"featureType":"road.highway","elementType":"geometry","stylers":[{"saturation":-95},{"lightness":-10},{"gamma":2.17}]},{"featureType":"poi.park","stylers":[{"visibility":"on"},{"lightness":30},{"saturation":-50},{"hue":"#a1ff00"}]},{"featureType":"poi.school","elementType":"geometry","stylers":[{"saturation":-25},{"lightness":12},{"hue":"#ffdd00"}]},{"featureType":"road.local","stylers":[{"saturation":-100},{"lightness":15}]},{"featureType":"administrative.neighborhood","stylers":[{"visibility":"on"},{"saturation":-100},{"lightness":35}]},{"featureType":"poi.attraction","elementType":"labels","stylers":[{"lightness":15},{"hue":"#ff005d"},{"visibility":"simplified"},{"saturation":-100}]},{"featureType":"road.arterial","elementType":"labels","stylers":[{"visibility":"on"},{"saturation":-98},{"lightness":41},{"gamma":0.75}]},{"featureType":"road.highway","elementType":"labels","stylers":[{"visibility":"simplified"},{"lightness":20},{"saturation":-60}]},{"featureType":"transit.line","stylers":[{"visibility":"simplified"},{"saturation":-25},{"lightness":35}]},{"featureType":"transit.station","elementType":"labels","stylers":[{"lightness":10},{"saturation":-72}]},{"featureType":"poi","elementType":"geometry","stylers":[{"lightness":15},{"saturation":7}]},{"featureType":"poi.place_of_worship","elementType":"labels","stylers":[{"visibility":"off"}]},{"featureType":"poi.sports_complex","elementType":"labels","stylers":[{"visibility":"off"}]},{"featureType":"road","elementType":"labels","stylers":[{"visibility":"off"}]},{"featureType":"road.local","elementType":"labels","stylers":[{"visibility":"on"},{"saturation":-100},{"lightness":21}]},{"featureType":"road.arterial","elementType":"labels","stylers":[{"visibility":"on"},{"lightness":25}]},{"featureType":"transit.line","stylers":[{"visibility":"off"}]},{"featureType":"poi","elementType":"labels","stylers":[{"saturation":-100},{"lightness":35}]},{}]

Vragen?

Bel ons of vul onderstaand formulier in dan nemen wij z.s.m. contact met je op.

Deze woning is Verkocht

Hartelijk dank

Je bericht is naar ons verzonden. Wij nemen zo snel mogelijk contact met je op.

Sorry, we kunnen helaas niet met zekerheid vaststellen of je een mens of een geautomatiseerde bot/spammer bent. Hierdoor kunnen we het formulier dat je hebt ingevuld niet verzenden. Probeer het opnieuw of neem direct contact op met de makelaar via e-mail.

Er is iets mis gegaan met het versturen van het formulier.
Controleer of alle velden (goed) zijn ingevoerd en probeer het nog een keer.

Wil je een bezichtiging plannen?

recaptcha
reCAPTCHA
PrivacyTerms

Liever telefonisch contact?

Wij zijn bereikbaar op werkdagen tussen 9:00 en 17:30 op +31 70 350 7050

Vergelijkbare woningen

Verkocht
Seinpostduin 5
Scheveningen, Den Haag
2-onder-1-kapwoning, 295m², 7 kamers
€ 2.000.000 k.k.
Verkocht
Nieuwe Parklaan 63
Westbroekpark en Duttendel, Den Haag
Halfvrijstaande woning, 315m², 11 kamers
€ 1.895.000 k.k.
Verkocht
Duinweg 87
Van Stolkpark en Scheveningse Bosjes, Den Haag
Bovenwoning, 281m², 5 kamers
€ 2.250.000 k.k.
Verkocht
Stadhoudersplantsoen 260
Duinoord, Den Haag
Penthouse, 236m², 4 kamers
€ 1.795.000 k.k.