Cookies op Estata Makelaars O.G.

Fijn dat je verder wilt lezen. We gebruiken cookies om de website naar behoren te laten werken, om functies voor social media te bieden en om onze website te analyseren. Dit gebeurt anoniem. Je gaat akkoord met onze cookies als je onze website blijft gebruiken. Op onze website kun je ook ons privacybeleid vinden.

Van Drenkwaertstraat 12 Verkocht

2596 TK, Den Haag (gelegen in de buurt Benoordenhout)


Omschrijving

Fijn gezinshuis in rustige straat van het Benoordenhout op loop-/fietsafstand van sportverenigingen, scholen, parken en de gezellige van Hoytemastraat met diverse horeca en winkeltjes. Zeer gunstig gelegen tov openbaar vervoer en uitvalswegen. Het centrum van Den Haag en de duinen/het strand van Scheveningen op fietsafstand.

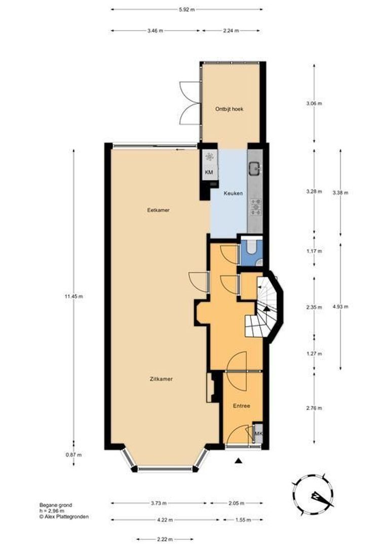
Indeling:
Voortuin (NO) met fietsenberging.
Entree, hal, gang, wc met fonteintje, woon-/eetkamer over de gehele lengte van het huis, semi-open keuken met uitbouw aan de achterzijde, zonnige achtertuin. Vanuit de gang toegang tot de (droge) kelder.
Trap naar 2e etage, overloop, wc, gangkast met wasmachineaansluiting, slaapkamer aan de achterzijde over de gehele breedte met toegang tot balkon, badkamer (zowel toegankelijk vanuit de gang/wc als vanuit de slaapkamer) met inloopdouche en dubbele wastafel, slaapkamer aan de voorzijde, voorzijkamer.
Trap naar 2e etage, overloop, wc, slaapkamer aan de achterzijde, slaapkamer aan de voorzijde, badkamer met douche, ligbad en wastafel.


Overige informatie:
- Eigen grond
- Woonoppervlakte ca. 186 m2
- Energielabel is aangevraagd
- Uitbouw keuken + dakkapellen in 2001 gedaan
- Vloerverwarming in de keuken
- Ramen, kozijnen en deuren geschilderd in 2016
- Maten zijn indicatief: zie plattegronden
- In de NVM koopovereenkomst worden de niet-bewoners-, ouderdoms- en materialenclausule opgenomen

Interesse in dit huis? Schakel direct uw eigen NVM-aankoopmakelaar in.
Uw NVM-aankoopmakelaar komt op voor uw belang en bespaart u tijd, geld en zorgen.
Adressen van collega NVM-aankoopmakelaars in Haaglanden vindt u op Funda.

-.-.-.-.-.-.-.- ENGLISH TEXT -.-.-.-.-.-.-


Delightful family house in ever-popular Benoordenhout, near Clingendael park. Cricket, football, squash and tennis facilities just around the corner as well as fantastic shops. Three floors plus cellar and attic, bedrooms, 2 bathrooms, extended eat-in kitchen, and sunny back garden make this the perfect home. Ideal for dog owners, too!

Lay-out:
Entry hall with anti-draught partition leading to hallway; modern lavatory; huge cellar; spacious living/dining room with fireplace and parquet flooring leading to southwest-facing garden, from the dining room acces to the modern extended half open kitchen with built-in appliances and good-sized breakfast area.

1st floor:
Hallway with laundry; modern lavatory which also provide acces to the bathroom; spacious master bedroom with wall of fitted wardrobes and access to balcony; ensuite completely new bathroom (also accessible via hallway) with walk-in shower, double washbasin and also acces to the lavatory; large front room and study/bedroom. Stairs to second floor.

2nd floor:
Spacious front room, back room, completely new bathroom with bathtub, shower, washbasin, separate toilet.

Spacious storage attic.

Noteworthy extras:
-extended kitchen with breakfast area and under floor heating
-lots of storage
-double glazed
-central heatingsystem 2020 HR
-bicycle storage in front garden
-near parks, sport facilities and shops

Intrigued? Contact an NVM estate agent, who will represent your interests and save you time, money, and worries.
Addresses of NVM agents in the area can be found on the Funda website.

Kenmerken

Overdracht

Prijs
€ 995.000 k.k.
Status
Verkocht
Oplevering
Per direct

Oppervlakten en inhoud

Woonoppervlakte
186m²
Perceeloppervlakte
186m²
Overig oppervlakte
14m²
Inhoud
699m³

Bouw

Soort woonhuis
Herenhuis, Tussenwoning
Soort bouw
Bestaande bouw
Bouwjaar
1936
Onderhoud binnen
Goed
Onderhoud buiten
Goed
Bijzonderheden
Beschermd stads- of dorpgezicht

Indeling

Aantal kamers
7
Aantal slaapkamers
5
Aantal badkamers
2
Aantal verdiepingen
3
Voorzieningen
Schuifpui, Glasvezel kabel

Energie

Isolatie
Dubbel glas
Warm water
C.V.-ketel
Verwarming
C.V.-ketel
Ketel
Nefit (2020, Combi-ketel, Eigendom)

Buitenruimte

Ligging
Aan rustige weg, In woonwijk
Balkon
Ja
Tuin
Achtertuin, Voortuin

Garage

Soort
Betaald parkeren, Parkeervergunning

Locatie

[ { "address": "Van Drenkwaertstraat 12", "zipCode": "2596 TK", "city": "Den Haag", "lat": 52.0954574, "lng": 4.3255047, "heading": 0, "pitch": 0 } ]
[{"featureType":"water","stylers":[{"visibility":"on"},{"lightness":20},{"saturation":-42},{"hue":"#00ccff"}]},{"featureType":"landscape.man_made","elementType":"geometry","stylers":[{"visibility":"on"},{"saturation":-99},{"lightness":51}]},{"featureType":"road.arterial","elementType":"geometry","stylers":[{"saturation":-98},{"lightness":35}]},{"featureType":"road.highway","elementType":"geometry","stylers":[{"saturation":-95},{"lightness":-10},{"gamma":2.17}]},{"featureType":"poi.park","stylers":[{"visibility":"on"},{"lightness":30},{"saturation":-50},{"hue":"#a1ff00"}]},{"featureType":"poi.school","elementType":"geometry","stylers":[{"saturation":-25},{"lightness":12},{"hue":"#ffdd00"}]},{"featureType":"road.local","stylers":[{"saturation":-100},{"lightness":15}]},{"featureType":"administrative.neighborhood","stylers":[{"visibility":"on"},{"saturation":-100},{"lightness":35}]},{"featureType":"poi.attraction","elementType":"labels","stylers":[{"lightness":15},{"hue":"#ff005d"},{"visibility":"simplified"},{"saturation":-100}]},{"featureType":"road.arterial","elementType":"labels","stylers":[{"visibility":"on"},{"saturation":-98},{"lightness":41},{"gamma":0.75}]},{"featureType":"road.highway","elementType":"labels","stylers":[{"visibility":"simplified"},{"lightness":20},{"saturation":-60}]},{"featureType":"transit.line","stylers":[{"visibility":"simplified"},{"saturation":-25},{"lightness":35}]},{"featureType":"transit.station","elementType":"labels","stylers":[{"lightness":10},{"saturation":-72}]},{"featureType":"poi","elementType":"geometry","stylers":[{"lightness":15},{"saturation":7}]},{"featureType":"poi.place_of_worship","elementType":"labels","stylers":[{"visibility":"off"}]},{"featureType":"poi.sports_complex","elementType":"labels","stylers":[{"visibility":"off"}]},{"featureType":"road","elementType":"labels","stylers":[{"visibility":"off"}]},{"featureType":"road.local","elementType":"labels","stylers":[{"visibility":"on"},{"saturation":-100},{"lightness":21}]},{"featureType":"road.arterial","elementType":"labels","stylers":[{"visibility":"on"},{"lightness":25}]},{"featureType":"transit.line","stylers":[{"visibility":"off"}]},{"featureType":"poi","elementType":"labels","stylers":[{"saturation":-100},{"lightness":35}]},{}]

Vragen?

Bel ons of vul onderstaand formulier in dan nemen wij z.s.m. contact met je op.

Deze woning is Verkocht

Hartelijk dank

Je bericht is naar ons verzonden. Wij nemen zo snel mogelijk contact met je op.

Sorry, we kunnen helaas niet met zekerheid vaststellen of je een mens of een geautomatiseerde bot/spammer bent. Hierdoor kunnen we het formulier dat je hebt ingevuld niet verzenden. Probeer het opnieuw of neem direct contact op met de makelaar via e-mail.

Er is iets mis gegaan met het versturen van het formulier.
Controleer of alle velden (goed) zijn ingevoerd en probeer het nog een keer.

Wil je een bezichtiging plannen?

recaptcha
reCAPTCHA
PrivacyTerms

Liever telefonisch contact?

Wij zijn bereikbaar op werkdagen tussen 9:00 en 17:30 op +31 70 350 7050

Vergelijkbare woningen

Verkocht
Borneostraat 132
Archipelbuurt, Den Haag
Tussenwoning, 189m², 7 kamers
€ 975.000 k.k.
Verkocht
Duinweg 35 -7
Van Stolkpark en Scheveningse Bosjes, Den Haag
Bovenwoning, 147m², 3 kamers
€ 1.120.000 v.o.n.
Verkocht
Van Boetzelaerlaan 36
Geuzen- en Statenkwartier, Den Haag
Tussenwoning, 214m², 8 kamers
€ 965.000 k.k.
Verkocht
Badhuisweg 232 C
Westbroekpark en Duttendel, Den Haag
Penthouse, 179m², 5 kamers
€ 1.035.000 k.k.