Cookies op Estata Makelaars O.G.

Fijn dat je verder wilt lezen. We gebruiken cookies om de website naar behoren te laten werken, om functies voor social media te bieden en om onze website te analyseren. Dit gebeurt anoniem. Je gaat akkoord met onze cookies als je onze website blijft gebruiken. Op onze website kun je ook ons privacybeleid vinden.

Van Alkemadelaan 1082 Verkocht

2597 BK, Den Haag (gelegen in de buurt Westbroekpark en Duttendel)


Omschrijving

Gelegen in de groene wijk Duttendel (Parkflat Duttendel III), ruim en licht vijfkamer hoekappartement op de 3e etage met twee balkons, twee slaapkamers (zeer eenvoudig een 3e te creëren) en een eigen berging in de ondergelegen kelder. Op loop-/fietsafstand van de duinen, het strand/boulevard/haven van Scheveningen en ook het Centrum van Den Haag. In de nabije omgeving bevinden zich diverse scholen, sportverenigingen en winkels; de wijk is goed bereikbaar met het openbaar vervoer (bus 23) en met de auto ben je snel de stad uit (A44, A12).

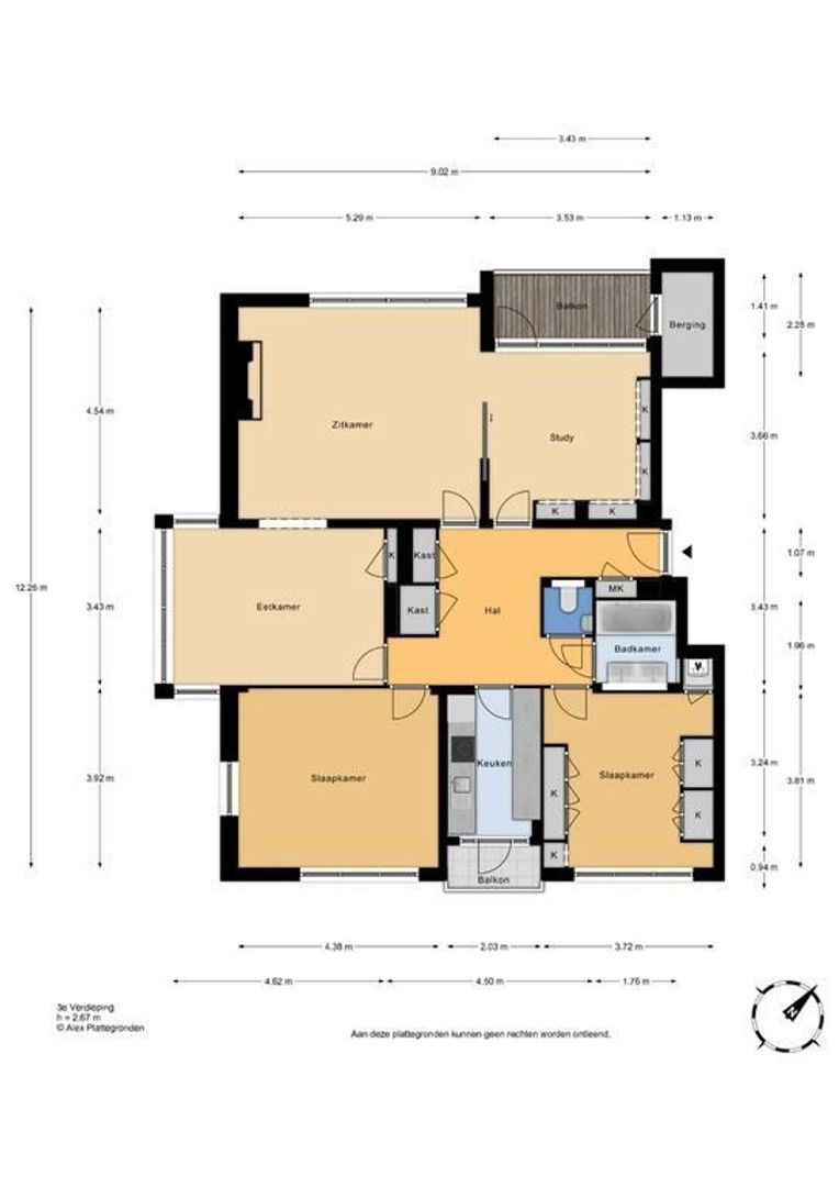
Indeling:
Centrale (afgesloten) entree met bellen/brievenbussen, lift en/of trap naar de 3e etage.
Entree appartement, gangetje naar ruime hal, 'studeerkamer' (hier is eenvoudig een 3e slaapkamer van te maken) met kastenwand en toegang tot balkon, schuifdeur naar de zitkamer met hout gestookte haard, doorgang naar eetkamer met vaste kast. Slaapkamer, keuken met diverse apparatuur en toegang tot balkon, slaapkamer, badkamer (met ligbad en dubbele wastafel), wc met fonteintje. Alle vertrekken zijn vanuit de hal toegankelijk.
In de kelder is een privé berging; optioneel een tweede berging af te nemen.

Overige informatie:
- Voorzien van dubbel glas
- Recht van erfpacht, eindigend op 31-12-2030. Canon: €95,- per jaar
- Blokverwarming: voorschot stookkosten ca. €108,- per maand
- VvE is actief, bijdrage ca. €303,- per maand
- In de NVM koopovereenkomst worden de ouderdoms-, materialen- en niet-bewoners clausule opgenomen

Interesse in dit appartement? Schakel direct uw eigen NVM-aankoopmakelaar in.
Uw NVM-aankoopmakelaar komt op voor uw belang en bespaart u tijd, geld en zorgen.
Adressen van collega NVM-aankoopmakelaars in Haaglanden vindt u op Funda.

Deze informatie is door ons kantoor met de grootste zorg samengesteld onder andere aan de hand van de door de verkoper aan ons ter beschikking gestelde gegevens. Door Estata wordt geen enkele aansprakelijkheid aanvaard voor enige onvolledigheid, onjuistheid of anderszins, dan wel de gevolgen daarvan.

This information has been compiled by our office with the greatest care, among other things on the basis of the data made available to us by the seller.
Estata does not accept any liability for any incompleteness, inaccuracy or otherwise, or the consequences thereof.

Kenmerken

Overdracht

Prijs
€ 475.000 k.k.
Status
Verkocht
Oplevering
In overleg
Bijdrage VVE
€ 303

Oppervlakten en inhoud

Woonoppervlakte
118m²
Overig oppervlakte
3m²
Inhoud
398m³

Bouw

Soort appartement
Bovenwoning, Appartement
Woonlaag
3
Soort bouw
Bestaande bouw
Bouwjaar
1960
Onderhoud binnen
Goed
Onderhoud buiten
Goed
Bijzonderheden
Monument

Indeling

Aantal kamers
5
Aantal slaapkamers
3
Aantal badkamers
1
Aantal verdiepingen
1
Voorzieningen
Lift

Energie

Isolatie
Dubbel glas
Warm water
C.V.-ketel
Verwarming
Blokverwarming

Buitenruimte

Ligging
Aan rustige weg, In woonwijk, Vrij uitzicht
Balkon
Ja
Schuur
Inpandig
Faciliteiten schuur
Voorzien van elektra

Garage

Soort
Openbaar parkeren, Betaald parkeren, Parkeervergunning

Locatie

[ { "address": "Van Alkemadelaan 1082", "zipCode": "2597 BK", "city": "Den Haag", "lat": 52.1086524, "lng": 4.3067223, "heading": 0, "pitch": 0 } ]
[{"featureType":"water","stylers":[{"visibility":"on"},{"lightness":20},{"saturation":-42},{"hue":"#00ccff"}]},{"featureType":"landscape.man_made","elementType":"geometry","stylers":[{"visibility":"on"},{"saturation":-99},{"lightness":51}]},{"featureType":"road.arterial","elementType":"geometry","stylers":[{"saturation":-98},{"lightness":35}]},{"featureType":"road.highway","elementType":"geometry","stylers":[{"saturation":-95},{"lightness":-10},{"gamma":2.17}]},{"featureType":"poi.park","stylers":[{"visibility":"on"},{"lightness":30},{"saturation":-50},{"hue":"#a1ff00"}]},{"featureType":"poi.school","elementType":"geometry","stylers":[{"saturation":-25},{"lightness":12},{"hue":"#ffdd00"}]},{"featureType":"road.local","stylers":[{"saturation":-100},{"lightness":15}]},{"featureType":"administrative.neighborhood","stylers":[{"visibility":"on"},{"saturation":-100},{"lightness":35}]},{"featureType":"poi.attraction","elementType":"labels","stylers":[{"lightness":15},{"hue":"#ff005d"},{"visibility":"simplified"},{"saturation":-100}]},{"featureType":"road.arterial","elementType":"labels","stylers":[{"visibility":"on"},{"saturation":-98},{"lightness":41},{"gamma":0.75}]},{"featureType":"road.highway","elementType":"labels","stylers":[{"visibility":"simplified"},{"lightness":20},{"saturation":-60}]},{"featureType":"transit.line","stylers":[{"visibility":"simplified"},{"saturation":-25},{"lightness":35}]},{"featureType":"transit.station","elementType":"labels","stylers":[{"lightness":10},{"saturation":-72}]},{"featureType":"poi","elementType":"geometry","stylers":[{"lightness":15},{"saturation":7}]},{"featureType":"poi.place_of_worship","elementType":"labels","stylers":[{"visibility":"off"}]},{"featureType":"poi.sports_complex","elementType":"labels","stylers":[{"visibility":"off"}]},{"featureType":"road","elementType":"labels","stylers":[{"visibility":"off"}]},{"featureType":"road.local","elementType":"labels","stylers":[{"visibility":"on"},{"saturation":-100},{"lightness":21}]},{"featureType":"road.arterial","elementType":"labels","stylers":[{"visibility":"on"},{"lightness":25}]},{"featureType":"transit.line","stylers":[{"visibility":"off"}]},{"featureType":"poi","elementType":"labels","stylers":[{"saturation":-100},{"lightness":35}]},{}]

Vragen?

Bel ons of vul onderstaand formulier in dan nemen wij z.s.m. contact met je op.

Deze woning is Verkocht

Hartelijk dank

Je bericht is naar ons verzonden. Wij nemen zo snel mogelijk contact met je op.

Sorry, we kunnen helaas niet met zekerheid vaststellen of je een mens of een geautomatiseerde bot/spammer bent. Hierdoor kunnen we het formulier dat je hebt ingevuld niet verzenden. Probeer het opnieuw of neem direct contact op met de makelaar via e-mail.

Er is iets mis gegaan met het versturen van het formulier.
Controleer of alle velden (goed) zijn ingevoerd en probeer het nog een keer.

Wil je een bezichtiging plannen?

recaptcha
reCAPTCHA
PrivacyTerms

Liever telefonisch contact?

Wij zijn bereikbaar op werkdagen tussen 9:00 en 17:30 op +31 70 350 7050

Vergelijkbare woningen

Verkocht
Mallemolen 55 40
Archipelbuurt, Den Haag
Hofjeswoning, 72m², 3 kamers
€ 415.000 k.k.
Verkocht
Goetlijfstraat 12
Benoordenhout, Den Haag
Benedenwoning, 70m², 2 kamers
€ 400.000 k.k.
Verkocht
Van Hogenhoucklaan 46
Benoordenhout, Den Haag
Bovenwoning, 96m², 4 kamers
€ 500.000 k.k.
Verkocht
Jan van Houtstraat 122
Geuzen- en Statenkwartier, Den Haag
Bovenwoning, 118m², 6 kamers
€ 550.000 k.k.