Cookies op Estata Makelaars O.G.

Fijn dat je verder wilt lezen. We gebruiken cookies om de website naar behoren te laten werken, om functies voor social media te bieden en om onze website te analyseren. Dit gebeurt anoniem. Je gaat akkoord met onze cookies als je onze website blijft gebruiken. Op onze website kun je ook ons privacybeleid vinden.

Smidswater 6 A Verkocht

2514 BV, Den Haag (gelegen in de buurt Centrum)


Omschrijving

Wonen op één van de allermooiste plekken van Den Haag, midden in het historische centrum?

Dit charmante parterre 3-kamerappartement, met prachtig uitzicht over de gracht, is gelegen in een kleinschalig en verzorgd appartementencomplex, in een zeer gewilde en prestigieuze wijk van het Centrum: 2005. De woning beschikt over twee slaapkamers, een zonnige achtertuin en een eigen fietsenberging. Op steenworp afstand bevinden zich het Lange Voorhout en de Denneweg, bekend om hun stijlvolle winkels en uitstekende restaurants. Bovendien is de ligging ideaal ten opzichte van openbaar vervoer (Centraal Station) en de uitvalswegen.

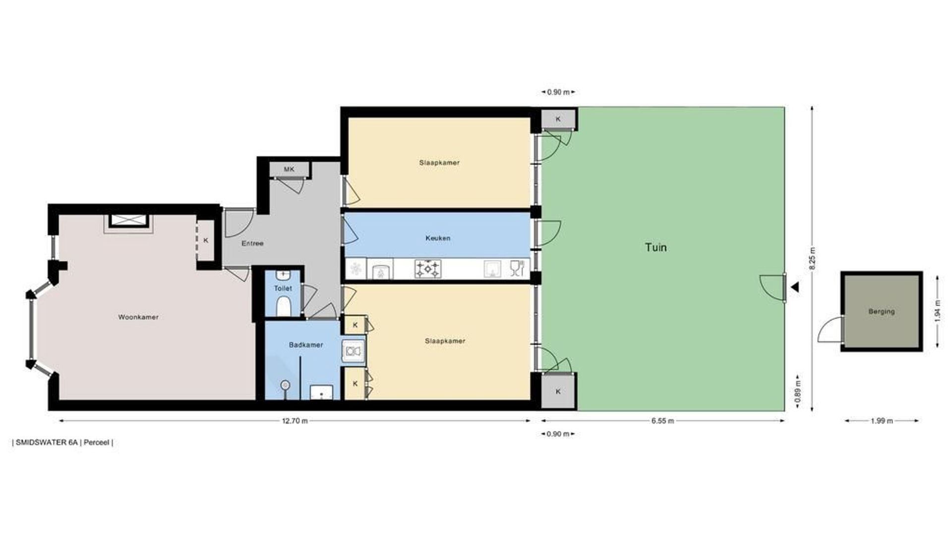
Indeling
Via de fraaie gezamenlijke entree bereik je het appartement. De ruime hal biedt toegang tot alle vertrekken. Aan de voorzijde bevindt zich de lichte woonkamer met een schitterend uitzicht over het water. Aan de achterzijde liggen de keuken en twee goed bemeten slaapkamers, beiden met directe toegang tot de tuin. De moderne badkamer is uitgerust met een inloopdouche, wastafelmeubel en wasmachineaansluiting. Daarnaast is er een separate W.C.

De zonnige, op het zuidwesten gelegen achtertuin beschikt over een kleine berging. Via de achterom is tevens de externe privéberging bereikbaar.

Bijzonderheden
- Uniek en vrij uitzicht over de gracht
- Twee slaapkamers
- Zonnige achtertuin op het zuidwesten met achterom
- Voorzien van dubbel glas
- Gelegen op eigen grond
- Actieve en gezonde VvE met professionele beheerder
- Zie plattegronden voor de indeling en maatvoering
- Oplevering kan snel
- In de NVM-koopovereenkomst zullen een niet-zelfbewoningsclausule, ouderdomsclausule en materialenclausule worden opgenomen

Deze informatie is met de grootst mogelijke zorg samengesteld op basis van gegevens van de verkoper. Estata aanvaardt geen aansprakelijkheid voor eventuele onvolledigheden, onjuistheden of de gevolgen daarvan
***ENGLISH***

Would you like to live in one of the most beautiful locations in The Hague, right in the heart of the historic city centre?

We are pleased to offer this charming ground-floor three-room apartment, boasting stunning views over the canal. The property is located in a small-scale and well-maintained apartment complex, in one of the most sought-after and prestigious parts of the city centre (postcode 2005). The apartment features two bedrooms, a sunny rear garden, and a private bicycle storage. Within walking distance you will find the Lange Voorhout and the Denneweg, well known for their stylish shops and excellent restaurants. The location is also highly convenient with regard to public transport (The Hague Central Station) and major arterial roads.

Layout
The apartment is accessed via the attractive communal entrance. The spacious hallway provides access to all rooms. At the front of the apartment is the bright living room, offering a beautiful and unobstructed view over the canal. At the rear are the kitchen and two well-proportioned bedrooms, both with direct access to the garden. The modern bathroom is fitted with a walk-in shower, washbasin unit and washing machine connection. There is also a separate toilet.

- The sunny rear garden, facing southwest, includes a small storage shed. The external private storage is also accessible via the rear entrance.
- Key features
- Unique and unobstructed canal view
- Two bedrooms
- Sunny southwest-facing rear garden with rear access
- Double glazing throughout
- Freehold property (no leasehold)
- Transfer can be soon
- Active and financially healthy Owners’ Association (VvE) with professional management

See floor plans for layout and dimensions

The NVM purchase agreement will include a non-owner-occupancy clause, an age clause and a materials clause

This information has been compiled with due care based on data provided by the seller. Estata accepts no liability for any inaccuracies, omissions, or the consequences thereof.

Kenmerken

Overdracht

Prijs
€ 545.000 k.k.
Status
Verkocht
Oplevering
In overleg
Bijdrage VVE
€ 285

Oppervlakten en inhoud

Woonoppervlakte
81m²
Overig oppervlakte
1m²
Inhoud
322m³

Bouw

Soort appartement
Benedenwoning, Appartement
Soort bouw
Bestaande bouw
Bouwjaar
1939
Onderhoud binnen
Uitstekend
Onderhoud buiten
Uitstekend
Bijzonderheden
Beschermd stads- of dorpgezicht

Indeling

Aantal kamers
3
Aantal slaapkamers
2
Aantal badkamers
1
Aantal verdiepingen
1

Energie

Energielabel
C
Isolatie
Muurisolatie, Dubbel glas
Warm water
C.V.-ketel
Verwarming
C.V.-ketel
Ketel
HR-107 (Combi-ketel, Eigendom)

Buitenruimte

Ligging
Aan het water, Aan rustige weg, In centrum, In woonwijk
Tuin
Achtertuin
Achtertuin
Zuidwest, 54m², 655×825cm
Schuur
Vrijstaand steen

Garage

Soort
Betaald parkeren, Parkeervergunning

Locatie

[ { "address": "Smidswater 6", "zipCode": "2514 BV", "city": "Den Haag", "lat": 52.083283, "lng": 4.3152285, "heading": 0, "pitch": 0 } ]
[{"featureType":"water","stylers":[{"visibility":"on"},{"lightness":20},{"saturation":-42},{"hue":"#00ccff"}]},{"featureType":"landscape.man_made","elementType":"geometry","stylers":[{"visibility":"on"},{"saturation":-99},{"lightness":51}]},{"featureType":"road.arterial","elementType":"geometry","stylers":[{"saturation":-98},{"lightness":35}]},{"featureType":"road.highway","elementType":"geometry","stylers":[{"saturation":-95},{"lightness":-10},{"gamma":2.17}]},{"featureType":"poi.park","stylers":[{"visibility":"on"},{"lightness":30},{"saturation":-50},{"hue":"#a1ff00"}]},{"featureType":"poi.school","elementType":"geometry","stylers":[{"saturation":-25},{"lightness":12},{"hue":"#ffdd00"}]},{"featureType":"road.local","stylers":[{"saturation":-100},{"lightness":15}]},{"featureType":"administrative.neighborhood","stylers":[{"visibility":"on"},{"saturation":-100},{"lightness":35}]},{"featureType":"poi.attraction","elementType":"labels","stylers":[{"lightness":15},{"hue":"#ff005d"},{"visibility":"simplified"},{"saturation":-100}]},{"featureType":"road.arterial","elementType":"labels","stylers":[{"visibility":"on"},{"saturation":-98},{"lightness":41},{"gamma":0.75}]},{"featureType":"road.highway","elementType":"labels","stylers":[{"visibility":"simplified"},{"lightness":20},{"saturation":-60}]},{"featureType":"transit.line","stylers":[{"visibility":"simplified"},{"saturation":-25},{"lightness":35}]},{"featureType":"transit.station","elementType":"labels","stylers":[{"lightness":10},{"saturation":-72}]},{"featureType":"poi","elementType":"geometry","stylers":[{"lightness":15},{"saturation":7}]},{"featureType":"poi.place_of_worship","elementType":"labels","stylers":[{"visibility":"off"}]},{"featureType":"poi.sports_complex","elementType":"labels","stylers":[{"visibility":"off"}]},{"featureType":"road","elementType":"labels","stylers":[{"visibility":"off"}]},{"featureType":"road.local","elementType":"labels","stylers":[{"visibility":"on"},{"saturation":-100},{"lightness":21}]},{"featureType":"road.arterial","elementType":"labels","stylers":[{"visibility":"on"},{"lightness":25}]},{"featureType":"transit.line","stylers":[{"visibility":"off"}]},{"featureType":"poi","elementType":"labels","stylers":[{"saturation":-100},{"lightness":35}]},{}]

Vragen?

Bel ons of vul onderstaand formulier in dan nemen wij z.s.m. contact met je op.

Deze woning is Verkocht

Hartelijk dank

Je bericht is naar ons verzonden. Wij nemen zo snel mogelijk contact met je op.

Sorry, we kunnen helaas niet met zekerheid vaststellen of je een mens of een geautomatiseerde bot/spammer bent. Hierdoor kunnen we het formulier dat je hebt ingevuld niet verzenden. Probeer het opnieuw of neem direct contact op met de makelaar via e-mail.

Er is iets mis gegaan met het versturen van het formulier.
Controleer of alle velden (goed) zijn ingevoerd en probeer het nog een keer.

Wil je een bezichtiging plannen?

recaptcha
reCAPTCHA
PrivacyTerms

Liever telefonisch contact?

Wij zijn bereikbaar op werkdagen tussen 9:00 en 17:30 op +31 70 350 7050

Vergelijkbare woningen

Verkocht
Neuhuyskade 8
Benoordenhout, Den Haag
Bovenwoning, 200m², 6 kamers
€ 649.000 k.k.
Verkocht
Stalpertstraat 83
Benoordenhout, Den Haag
Beneden + bovenwoning, 137m², 4 kamers
€ 575.000 k.k.
Verkocht
Van Hogenhoucklaan 46
Benoordenhout, Den Haag
Bovenwoning, 96m², 4 kamers
€ 500.000 k.k.
Verkocht
Jan van Houtstraat 122
Geuzen- en Statenkwartier, Den Haag
Bovenwoning, 118m², 6 kamers
€ 550.000 k.k.