Cookies op Estata Makelaars O.G.

Fijn dat je verder wilt lezen. We gebruiken cookies om de website naar behoren te laten werken, om functies voor social media te bieden en om onze website te analyseren. Dit gebeurt anoniem. Je gaat akkoord met onze cookies als je onze website blijft gebruiken. Op onze website kun je ook ons privacybeleid vinden.

Riouwstraat 37 Verkocht

2585 GR, Den Haag (gelegen in de buurt Archipelbuurt)


Omschrijving

In het leukste gedeelte van de Riouwstraat, ter hoogte van het Prinsevinkenpark, gelegen karakteristiek 4-laags herenhuis met zonnige achtertuin en achterom/brandgang. Een fantastisch familiehuis van ca. 305 m2 met o.a. een ruime woonkeuken, mooie lichte bel-etage met loggia over de breedte, 6 slaapkamers en 2 badkamers.

Locatie:
Gelegen in de geliefde Archipel, op loopafstand van de gezellige Bankastraat met ambachtelijke winkels en eetgelegenheden en de Scheveningse bosjes met speeltuin op de zandvlakte. Op korte, (fiets)afstand van diverse basis- en middelbare scholen, sportverenigingen, het stadscentrum, de duinen, het strand en het Centraal Station. Zeer gunstig gelegen ten opzichte van de uitvalswegen naar Amsterdam, Rotterdam en Utrecht en openbaar vervoer, tram lijn 1 en bus 22. en tevens dichtbij Schiphol en Rotterdam The Hague Airport.

Bijzonderheden:
- Eigen grond
- Ca. 305 m2 woonoppervlakte en 22 m2 buitenruimte volgens de branche brede NEN 2580 norm
- Bouwtechnisch rapport aanwezig
- Energielabel C
- Houten kozijnen, nagenoeg overal dubbelglas/voorzetramen
- Rijks Beschermd Stadsgezicht (Archipel)
- Bouwjaar 1881
- Meerdere karakteristieke originele details zijn nog aanwezig (ornamenten plafonds, suite-separaties en marmeren vloerdelen)
- Nieuwe markiezen/zonwering aan de achterzijde
- De op te maken koopovereenkomst zal conform het NVM-model zijn
- In de koopovereenkomst zullen in verband met het bouwjaar de ouderdoms- en materialen clausules
worden opgenomen
- Maten zijn indicatief (ingemeten conform BBMI norm NEN 2580)

Indeling:
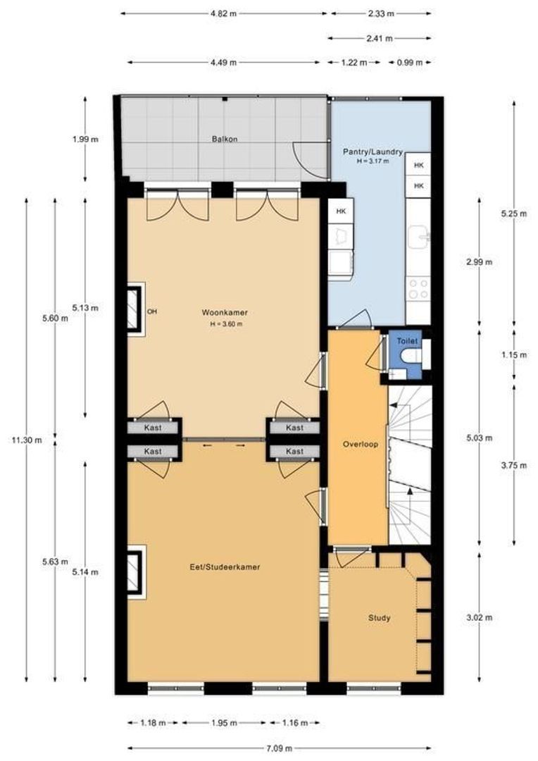
Entree met marmeren vloer, originele tochtdeuren, ruime hal met ook de oorspronkelijke marmeren vloerdelen, diepe garderobekast met kleine kelderruimte, gasten-WC met fonteintje en aparte douche.

Zonnige ommuurde stadstuin is op het zuidoosten gesitueerd. Ideaal is het pas achter het huis dat direct toegang biedt tot de Bonistraat.

Bel-etage met overloop en moderne WC met fonteintje, 2 royale kamers (ca. 4.50m breed) met schitterende lichtinval, ornamenten plafonds, suite separatie met kasten, 2 marmeren schouwen met openhaard en gashaard, lichte parketvloer en 2 keer openslaande deuren naar de loggia aan de achterzijde, studeerkamer aan de voorzijde (verbonden met de voorkamer), pantry/laundry aan de achterzijde met toegang tot het balkon/loggia.

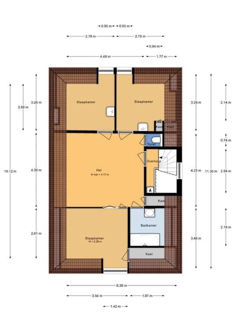
Slaapverdieping met overloop, moderne WC, 2 zeer ruime slaapkamers gescheiden door vaste kasten en een doorloop in het midden, een 3e slaap/babykamer aan de achterzijde en een badkamer aan de voorzijde met ligbad, douche en wastafel.

Topetage met nagenoeg vierkante overloop/chillruimte, 3 leuke slaapkamer, badkamer met ligbad/douche en vaste wastafel, vaste kast met HR CV-combiketel (2016) en veel bergruimte onder de kap boven de slaapkamers.

EEN HEERLIJK FAMILIEHUIS!

Bent u enthousiast over dit huis, maar heeft u uw eigen huis nog niet verkocht? Neem dan contact met ons kantoor op voor een waardebepaling, zonder enige verdere verplichting. We plannen dan direct een afspraak in met één van onze makelaars zodat u op korte termijn zicht heeft op uw mogelijkheden.

Deze informatie is door ons kantoor met de grootste zorg samengesteld onder andere aan de hand van de door de verkoper aan ons ter beschikking gestelde gegevens. Door Estata wordt geen enkele aansprakelijkheid aanvaard voor enige onvolledigheid, onjuistheid of anderszins, dan wel de gevolgen daarvan.

ENGLISH TEXT

In the most charming part of Riouwstraat, near the Prinsevinkenpark, lies this characteristic 4-story townhouse with a sunny backyard and rear access. A fantastic family home of approximately 305 m², featuring a spacious kitchen, a beautiful light-filled bel-etage with a full-width loggia, 6 bedrooms, and 2 bathrooms.

LOCATION
Located in the beloved Archipel neighborhood, within walking distance of the lively Bankastraat with its small shops and restaurants, and the 'Scheveningse Bosjes' with a nice playground. A short (bike) distance from various primary and secondary schools, sports clubs, the city center, the dunes, the beach, and Central Station. Very conveniently located with respect to the highways to Amsterdam, Rotterdam, and Utrecht, as well as public transport, tram line 1, and bus 22. Also close to Schiphol and Rotterdam The Hague Airport.

Details:
Freehold property
Approximately 305 m² of living space and 22 m² of outdoor space according to the NEN 2580 industry standard
Structural report available
Energy label C
Wooden window frames, almost everywhere double-glazed/secondary glazing
Nationally Protected Cityscape (Archipel)
Year of construction: 1881
Many original detaisl are kept (beautiful ceilings, marble entrance etc)
The purchase agreement will be drawn up in accordance with the NVM model
Due to the year of construction, old material and age clauses will be included in purchase agreement
Measurements are indicative (measured according to BBMI standard NEN 2580)
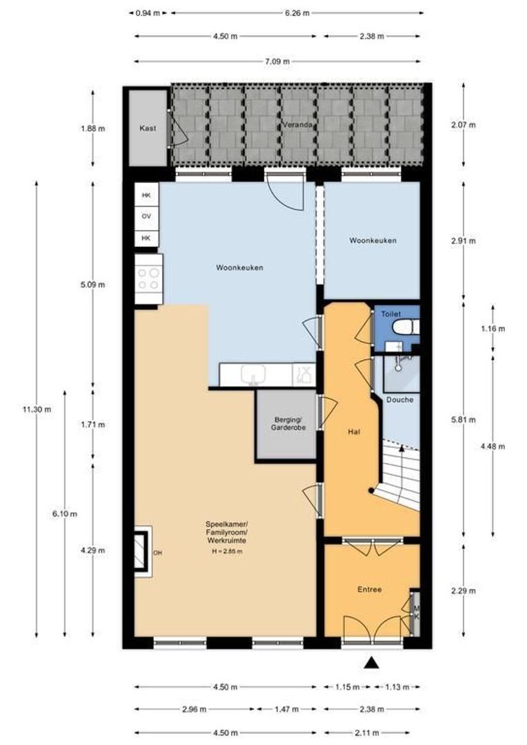
Layout entrance with marble floor, original draft doors, spacious hallway with original marble flooring, deep cloakroom with small basement space, guest WC with washbasin and separate shower.

Sunny walled city garden facing southeast. The rear access is ideal and offers direct access to Bonistraat.

Bel-etage with landing and modern WC with washbasin, 2 spacious rooms (approx. 4.50m wide) with stunning light, ornate ceilings, suite separation with cupboards, 2 marble fireplaces with open fire and gas fire, light parquet floor, and 2 sets of French doors leading to the loggia at the rear. Study room at the front (connected to the front room), pantry/laundry at the rear with access to the balcony/loggia.

Bedroom floor with landing, modern WC, 2 very spacious bedrooms separated by fixed wardrobes and a walkthrough in the middle, a 3rd bedroom/nursery at the rear, and a bathroom at the front with bathtub, shower, and washbasin.

Top floor with almost square landing/chill area, 3 charming bedrooms, bathroom with bathtub/shower and washbasin, fixed closet with high-efficiency combi boiler (2016), and plenty of storage space under the roof above the bedrooms.

A WONDERFUL FAMILY HOME!

Are you enthusiastic about this house but haven’t sold your own yet? Then contact our office for a valuation, with no further obligation. We will immediately schedule an appointment with one of our real estate agents so you can get a clear view of your possibilities in the short term.

This information has been compiled with the utmost care by our office, based on the information provided to us by the seller. Estata accepts no liability for any incompleteness, inaccuracies, or otherwise, nor for the consequences thereof.

Kenmerken

Overdracht

Prijs
€ 1.745.000 k.k.
Status
Verkocht
Oplevering
In overleg

Oppervlakten en inhoud

Woonoppervlakte
306m²
Perceeloppervlakte
162m²
Overig oppervlakte
5m²
Inhoud
1.222m³

Bouw

Soort woonhuis
Herenhuis, Tussenwoning
Soort bouw
Bestaande bouw
Bouwjaar
1881
Onderhoud binnen
Goed
Onderhoud buiten
Goed
Bijzonderheden
Beschermd stads- of dorpgezicht

Indeling

Aantal kamers
11
Aantal slaapkamers
6
Aantal badkamers
2
Aantal verdiepingen
4
Voorzieningen
Buitenzonwering, Rookkanaal, Glasvezel kabel, Natuurlijke ventilatie

Energie

Energielabel
C
Isolatie
Voorzetramen, Grotendeels dubbelglas
Warm water
C.V.-ketel, Elektrische boiler eigendom
Verwarming
C.V.-ketel
Ketel
HR-107 (2015, Combi-ketel, Eigendom)

Buitenruimte

Ligging
Aan rustige weg, In woonwijk
Balkon
Ja
Tuin
Achtertuin
Achtertuin
Zuidoost, 62m², 716×862cm

Garage

Soort
Openbaar parkeren, Betaald parkeren, Parkeervergunning

Locatie

[ { "address": "Riouwstraat 37", "zipCode": "2585 GR", "city": "Den Haag", "lat": 52.0914141, "lng": 4.2984014, "heading": 0, "pitch": 0 } ]
[{"featureType":"water","stylers":[{"visibility":"on"},{"lightness":20},{"saturation":-42},{"hue":"#00ccff"}]},{"featureType":"landscape.man_made","elementType":"geometry","stylers":[{"visibility":"on"},{"saturation":-99},{"lightness":51}]},{"featureType":"road.arterial","elementType":"geometry","stylers":[{"saturation":-98},{"lightness":35}]},{"featureType":"road.highway","elementType":"geometry","stylers":[{"saturation":-95},{"lightness":-10},{"gamma":2.17}]},{"featureType":"poi.park","stylers":[{"visibility":"on"},{"lightness":30},{"saturation":-50},{"hue":"#a1ff00"}]},{"featureType":"poi.school","elementType":"geometry","stylers":[{"saturation":-25},{"lightness":12},{"hue":"#ffdd00"}]},{"featureType":"road.local","stylers":[{"saturation":-100},{"lightness":15}]},{"featureType":"administrative.neighborhood","stylers":[{"visibility":"on"},{"saturation":-100},{"lightness":35}]},{"featureType":"poi.attraction","elementType":"labels","stylers":[{"lightness":15},{"hue":"#ff005d"},{"visibility":"simplified"},{"saturation":-100}]},{"featureType":"road.arterial","elementType":"labels","stylers":[{"visibility":"on"},{"saturation":-98},{"lightness":41},{"gamma":0.75}]},{"featureType":"road.highway","elementType":"labels","stylers":[{"visibility":"simplified"},{"lightness":20},{"saturation":-60}]},{"featureType":"transit.line","stylers":[{"visibility":"simplified"},{"saturation":-25},{"lightness":35}]},{"featureType":"transit.station","elementType":"labels","stylers":[{"lightness":10},{"saturation":-72}]},{"featureType":"poi","elementType":"geometry","stylers":[{"lightness":15},{"saturation":7}]},{"featureType":"poi.place_of_worship","elementType":"labels","stylers":[{"visibility":"off"}]},{"featureType":"poi.sports_complex","elementType":"labels","stylers":[{"visibility":"off"}]},{"featureType":"road","elementType":"labels","stylers":[{"visibility":"off"}]},{"featureType":"road.local","elementType":"labels","stylers":[{"visibility":"on"},{"saturation":-100},{"lightness":21}]},{"featureType":"road.arterial","elementType":"labels","stylers":[{"visibility":"on"},{"lightness":25}]},{"featureType":"transit.line","stylers":[{"visibility":"off"}]},{"featureType":"poi","elementType":"labels","stylers":[{"saturation":-100},{"lightness":35}]},{}]

Vragen?

Bel ons of vul onderstaand formulier in dan nemen wij z.s.m. contact met je op.

Deze woning is Verkocht

Hartelijk dank

Je bericht is naar ons verzonden. Wij nemen zo snel mogelijk contact met je op.

Sorry, we kunnen helaas niet met zekerheid vaststellen of je een mens of een geautomatiseerde bot/spammer bent. Hierdoor kunnen we het formulier dat je hebt ingevuld niet verzenden. Probeer het opnieuw of neem direct contact op met de makelaar via e-mail.

Er is iets mis gegaan met het versturen van het formulier.
Controleer of alle velden (goed) zijn ingevoerd en probeer het nog een keer.

Wil je een bezichtiging plannen?

recaptcha
reCAPTCHA
PrivacyTerms

Liever telefonisch contact?

Wij zijn bereikbaar op werkdagen tussen 9:00 en 17:30 op +31 70 350 7050

Vergelijkbare woningen

Verkocht
Seinpostduin 5
Scheveningen, Den Haag
2-onder-1-kapwoning, 295m², 7 kamers
€ 2.000.000 k.k.
Verkocht
Duinweg 35 -13
Van Stolkpark en Scheveningse Bosjes, Den Haag
Bovenwoning, 185m², 4 kamers
€ 1.515.000 v.o.n.
Verkocht
Duinweg 35 -20
Van Stolkpark en Scheveningse Bosjes, Den Haag
Bovenwoning, 180m², 3 kamers
€ 1.575.000 v.o.n.
Verkocht
Duinweg 35 -2
Van Stolkpark en Scheveningse Bosjes, Den Haag
Beneden + bovenwoning, 197m², 5 kamers
€ 1.625.000 v.o.n.