Cookies op Estata Makelaars O.G.

Fijn dat je verder wilt lezen. We gebruiken cookies om de website naar behoren te laten werken, om functies voor social media te bieden en om onze website te analyseren. Dit gebeurt anoniem. Je gaat akkoord met onze cookies als je onze website blijft gebruiken. Op onze website kun je ook ons privacybeleid vinden.

Madoerastraat 22 Verkocht

2585 VB, Den Haag (gelegen in de buurt Archipelbuurt)


Omschrijving

Scroll down for English

MIDDEN IN DE ARCHIPELBUURT GELEGEN 4-LAAGS HERENHUIS MET MONUMENTALE UITSTRALING. DIT SFEERVOLLE PAND IS DOOR DE AFMETING (RUIM 335m2) EN HET AANTAL KAMERS (11) PERFECT VOOR THUISWERKEN OF KANTOOR AAN HUIS.

Het huis ligt in een bredere straat waardoor er veel licht naar binnen komt. Het onderscheidt zich van de meeste panden in de Archipel door de hoge kamers op alle verdiepingen. Er is dus geen gedrukte parterre en ook de bovenste verdieping heeft een hoogte van ruim 3m. Veel van de originele en karakteristieke ornamenten zijn nog aanwezig en er is een mooi en ruim trappenhuis. De winkels en eettentjes in de populaire Bankastraat zijn op loopafstand en voor wandelingen zijn de Scheveningse Bosjes (met grote speeltuin) praktisch om de hoek. Je fietst zo naar het centrum, het strand, diverse scholen en sportverenigingen. Er stoppen bussen en trams vlakbij waardoor je snel op het station of in de stad bent. Met de auto rij je door de goede aansluitingen op de A4, A44 en A12 heel makkelijk de stad uit.

INDELING:

WOONLAGEN OP DE BEGANE GROND EN 1ste ETAGE:

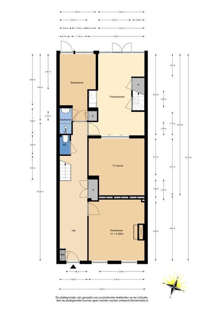
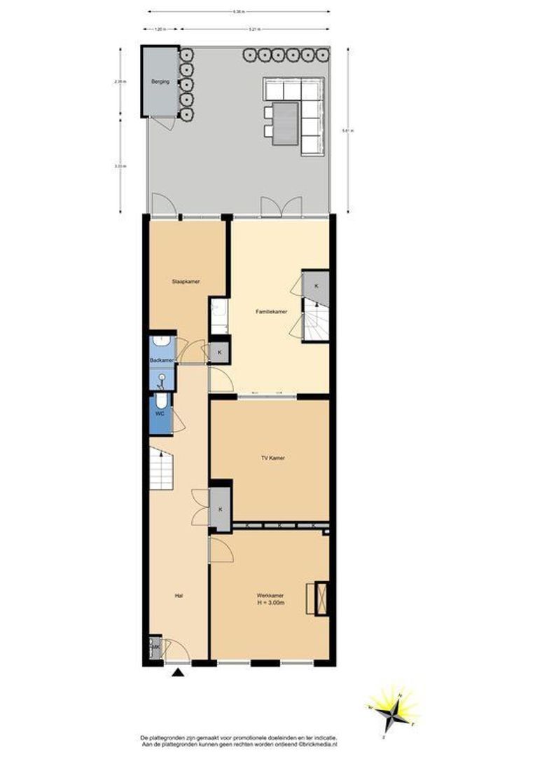
Entree, ruime hal met originele muur- en plafondornamenten, garderobe, studeerkamer/kantoor aan de voorzijde met open haard, familyroom met pantry en openslaande deuren naar de tuin met berging. Chillruimte/tv-kamer in het midden, logeerkamer met badkamer aan de achterzijde, aparte moderne wc in de hal. De beknopte, maar zeer gezellige stadstuin is ommuurd en biedt veel privacy. In de familyroom is een extra trap die uitkomt in de keuken op de 1ste verdieping.

Via de hal kom je via de hoofdtrap op de eerste verdieping. Moderne wc met fonteintje, gangkast, dubbele deuren met roedeverdeling naar sfeervolle eetkamer (ca. 4.18 x 6.46m) met open haard, originele suite separatie met 2 vaste kasten en houten paneeldeuren. De woonkamer (3-raams, ca. 6.26 x 4.38m) ligt over de volle breedte aan de voorzijde en heeft ook een open haard. Zowel de woonkamer als de eetkamer hebben prachtige ornamenten plafonds, zwart marmeren schouwen en eikenhouten vloeren. Vanuit de eetkamer is een open verbinding naar een grote brede woonkeuken met kookeiland en groot werkblad, veel kastruimte, luxe inbouwapparatuur, dubbele spoelbak en openslaande deuren aan de achterzijde. Vanuit de keuken is de woonlaag op de begane grond via een binnentrap bereikbaar.

SLAAPVERDIEPINGEN (2de en topetage)

Overloop, moderne wc met fonteintje, diepe gangkast, hoofdslaapkamer met ruime inloopkast en nog een aparte kast, openslaande deuren naar dakterras, moderne badkamer met wc, 2 vaste wastafels, ruime inloopdouche met 2 douches. De originele schouw in deze kamer heeft een gasaansluiting. Grote slaapkamer met brede vaste kast aan de voorzijde en daarnaast een kleinere zijslaapkamer.

Vaste trap (met bovenlicht) naar topetage met ruime slaapkamer aan de achterzijde met 2 vaste kasten, toegang tot 2de dakterras met weids uitzicht over de daken van de Archipel richting Scheveningen, grote slaapkamer aan de voorzijde met vaste kasten en uitzicht over de skyline van Den Haag. Moderne badkamer met 2 vaste wastafels, wc, ligbad en douche. Aparte wasruimte/laundry met extra wastafel en toegang tot het dakterras. Ruime berging en CV/boilerruimte.

BIJZONDERHEDEN:

• Heerlijk en licht familiehuis
• Eigen grond
• Oorspronkelijk bouwjaar 1892
• Veel originele ornamenten nog aanwezig
• In 2004 grondig verbouwd in huidige stijl
• Heel geschikt voor thuiswerken of kantoor aan huis
• Overal dubbele beglazing en veel kastruimte
• Radiator-ombouwen en houten vloeren in vele ruimtes
• 3 werkende openhaarden
• Vloerverwarming in de keuken en badkamer op de 2e verdieping
• Zonnig dakterras op de topetage en 2de dakterras grenzend aan de hoofdslaapkamer
• Mooie plafondhoogtes: begane grond ca. 3 m, 1ste etage ca. 3.42 m, 2de etage ca. 3 m, 3de etage ca. 3.03 m
• Grote en lichte open woonkeuken (6.39 x 3.92m)
• Ouderdoms- en materialenclausules zullen in de NVM-koopakte opgenomen worden
• Plattegronden aanwezig. Maten zijn indicatief (opgemeten conform NEN 2580 en de NVM-regels)

IMPRESSIVE 4-STOREY TERRACED HOUSE IN THE PRESTIGIOUS ARCHIPEL NEIGHBOURHOOD. THIS ENCHANTING 11-ROOM HOME IS PERFECTLY SUITED FOR COMBINING LIVING AND WORK SPACE THANKS TO ITS SUBSTANTIAL SIZE (335m2).

In contrast to most houses in the Archipel area, this property is characterized by lofty ceilings of at least 3 meters on all four levels. Standout features include abundant natural light and many original architectural elements such as a beautiful broad staircase.

Situated in a wide street, within walking distance of the shops and eateries in the popular Bankastraat, as well as the delightful Scheveningse Bosjes park with its huge playground. The city centre, seaside, schools, and sports facilities are all within easy reach, as are major motorways (A4, A44 and A12).

LAYOUT:

RECEPTION ROOMS ON THE GROUND LEVEL AND FIRST FLOOR:

Entrance; good-sized hall with original wall and ceiling ornamentation; coat closet; study/office with working fireplace; family room, which has an extra stairway leading to the 1st floor kitchen, with pantry and doors to the garden with shed; central lounge area/tv room; guest room with bathroom at the back; separate guest lavatory off the hallway. The compact but charming walled garden offers ample privacy.

The main staircase ascends from the hallway to the 1st floor, where there is a modern wc with washbasin, hall cupboard, and double doors inset with glass leading to the lovely dining room (ca. 4.18 x 6.46m) with original sliding doors framed by built-in storage cupboards with wood-paneled doors. The living room (ca. 6.26x4.38m) spans the full width of the front façade; both rooms have fireplaces with black marble mantels, gorgeous decorative plaster ceilings, and oak flooring. The huge eat-in kitchen, with central island, plenty of countertops and cabinets, luxurious integrated appliances, and double sink, is open to the dining room and also has a 'French balcony' at the back.

BEDROOMS AND BATHROOMS (2nd and top floors)

Landing; modern wc with washbasin; deep hall cupboard. The master bedroom has an original mantel with a gas connection, a fitted wardrobe as well as a spacious walk-in closet, and French doors to a terrace; the modern bathroom has a big double walk-in shower, 2 washbasins, and wc. There is another large bedroom with wide fitted wardrobe at the front and an additional smaller side room.

A staircase with skylight leads to the top floor, comprising 2 large bedrooms, each with fitted wardrobes and stunning views over the city’s roofs and skyline, of which one has access to a second terrace. There is another modern bathroom with bath, shower, double washbasin, and wc; a separate laundry room with extra washbasin and door to the terrace, a big storeroom and a unit with the central heating and boiler.

WORTH NOTING:

• Lovely and bright family house
• Freehold
• Originally built in 1892
• Many original details have been preserved
• Thoroughly renovated in 2004
• Extremely suitable for working from home
• Fully double glazed, plenty of storage space
• Covered radiators and wood flooring in many rooms
• 3 working fireplaces
• Under floor heating in the kitchen and 2nd floor
bathroom
• Sunny top floor terrace; 2nd terrace off the master bedroom
• High ceilings: ground floor ca. 3 m, 1st floor ca. 3.42 m, 2nd floor ca. 3 m,
3rd floor ca. 3.03 m
• Large, light open eat-in kitchen (6.39 x 3.92m)
• Older construction and materials disclaimers will be included in
the NVM purchase agreement
• Floor plans available. Dimensions are indicative (measured in accordance
with NEN 2580 and NVM guidelines)

Kenmerken

Overdracht

Prijs
€ 1.595.000 k.k.
Status
Verkocht
Oplevering
In overleg

Oppervlakten en inhoud

Woonoppervlakte
337m²
Inhoud
1.288m³

Bouw

Soort woonhuis
Herenhuis, Tussenwoning
Soort bouw
Bestaande bouw
Bouwjaar
1892
Onderhoud binnen
Uitstekend
Onderhoud buiten
Goed
Bijzonderheden
Monumentaal pand, Beschermd stads- of dorpgezicht

Indeling

Aantal kamers
11
Aantal slaapkamers
6
Aantal badkamers
3
Aantal verdiepingen
4
Voorzieningen
Mechanische ventilatie, TV-Kabel, Rookkanaal, Frans balkon, Dakraam

Energie

Isolatie
Dubbel glas
Warm water
C.V.-ketel
Verwarming
C.V.-ketel, Open haard, Vloerverwarming gedeeltelijk
Ketel
Nefit Excellent (2004, Combi-ketel, Eigendom)

Buitenruimte

Ligging
Aan rustige weg
Tuin
Achtertuin, Zonneterras
Achtertuin
West, 37m², 638×581cm
Schuur
Vrijstaand hout

Garage

Soort
Openbaar parkeren, Betaald parkeren, Parkeervergunning

Locatie

[ { "address": "Madoerastraat 22", "zipCode": "2585 VB", "city": "Den Haag", "lat": 52.0920585, "lng": 4.3029867, "heading": 0, "pitch": 0 } ]
[{"featureType":"water","stylers":[{"visibility":"on"},{"lightness":20},{"saturation":-42},{"hue":"#00ccff"}]},{"featureType":"landscape.man_made","elementType":"geometry","stylers":[{"visibility":"on"},{"saturation":-99},{"lightness":51}]},{"featureType":"road.arterial","elementType":"geometry","stylers":[{"saturation":-98},{"lightness":35}]},{"featureType":"road.highway","elementType":"geometry","stylers":[{"saturation":-95},{"lightness":-10},{"gamma":2.17}]},{"featureType":"poi.park","stylers":[{"visibility":"on"},{"lightness":30},{"saturation":-50},{"hue":"#a1ff00"}]},{"featureType":"poi.school","elementType":"geometry","stylers":[{"saturation":-25},{"lightness":12},{"hue":"#ffdd00"}]},{"featureType":"road.local","stylers":[{"saturation":-100},{"lightness":15}]},{"featureType":"administrative.neighborhood","stylers":[{"visibility":"on"},{"saturation":-100},{"lightness":35}]},{"featureType":"poi.attraction","elementType":"labels","stylers":[{"lightness":15},{"hue":"#ff005d"},{"visibility":"simplified"},{"saturation":-100}]},{"featureType":"road.arterial","elementType":"labels","stylers":[{"visibility":"on"},{"saturation":-98},{"lightness":41},{"gamma":0.75}]},{"featureType":"road.highway","elementType":"labels","stylers":[{"visibility":"simplified"},{"lightness":20},{"saturation":-60}]},{"featureType":"transit.line","stylers":[{"visibility":"simplified"},{"saturation":-25},{"lightness":35}]},{"featureType":"transit.station","elementType":"labels","stylers":[{"lightness":10},{"saturation":-72}]},{"featureType":"poi","elementType":"geometry","stylers":[{"lightness":15},{"saturation":7}]},{"featureType":"poi.place_of_worship","elementType":"labels","stylers":[{"visibility":"off"}]},{"featureType":"poi.sports_complex","elementType":"labels","stylers":[{"visibility":"off"}]},{"featureType":"road","elementType":"labels","stylers":[{"visibility":"off"}]},{"featureType":"road.local","elementType":"labels","stylers":[{"visibility":"on"},{"saturation":-100},{"lightness":21}]},{"featureType":"road.arterial","elementType":"labels","stylers":[{"visibility":"on"},{"lightness":25}]},{"featureType":"transit.line","stylers":[{"visibility":"off"}]},{"featureType":"poi","elementType":"labels","stylers":[{"saturation":-100},{"lightness":35}]},{}]

Vragen?

Bel ons of vul onderstaand formulier in dan nemen wij z.s.m. contact met je op.

Deze woning is Verkocht

Hartelijk dank

Je bericht is naar ons verzonden. Wij nemen zo snel mogelijk contact met je op.

Sorry, we kunnen helaas niet met zekerheid vaststellen of je een mens of een geautomatiseerde bot/spammer bent. Hierdoor kunnen we het formulier dat je hebt ingevuld niet verzenden. Probeer het opnieuw of neem direct contact op met de makelaar via e-mail.

Er is iets mis gegaan met het versturen van het formulier.
Controleer of alle velden (goed) zijn ingevoerd en probeer het nog een keer.

Wil je een bezichtiging plannen?

recaptcha
reCAPTCHA
PrivacyTerms

Liever telefonisch contact?

Wij zijn bereikbaar op werkdagen tussen 9:00 en 17:30 op +31 70 350 7050

Vergelijkbare woningen

Verkocht
Duinweg 35 -13
Van Stolkpark en Scheveningse Bosjes, Den Haag
Bovenwoning, 185m², 4 kamers
€ 1.515.000 v.o.n.
Verkocht
Duinweg 35 -20
Van Stolkpark en Scheveningse Bosjes, Den Haag
Bovenwoning, 180m², 3 kamers
€ 1.575.000 v.o.n.
Verkocht
Duinweg 35 -2
Van Stolkpark en Scheveningse Bosjes, Den Haag
Beneden + bovenwoning, 197m², 5 kamers
€ 1.625.000 v.o.n.
Verkocht
Nieuwe Schoolstraat 83 J.
Centrum, Den Haag
Beneden + bovenwoning, 174m², 5 kamers
€ 1.375.000 k.k.