Cookies op Estata Makelaars O.G.

Fijn dat je verder wilt lezen. We gebruiken cookies om de website naar behoren te laten werken, om functies voor social media te bieden en om onze website te analyseren. Dit gebeurt anoniem. Je gaat akkoord met onze cookies als je onze website blijft gebruiken. Op onze website kun je ook ons privacybeleid vinden.

Laan van Clingendael 38 . Verhuurd

2597 CD, Den Haag (gelegen in de buurt Benoordenhout)


Omschrijving

LAAN VAN CLINGENDAEL 38

Light and bright 4-room (2 bedrooms) semi-furnished (fixtures and fittings only) apartment in the leafy Clingendael area of Benoordenhout. Close to the new ICC Headquarters, beach, and highways. Great shopping nearby.

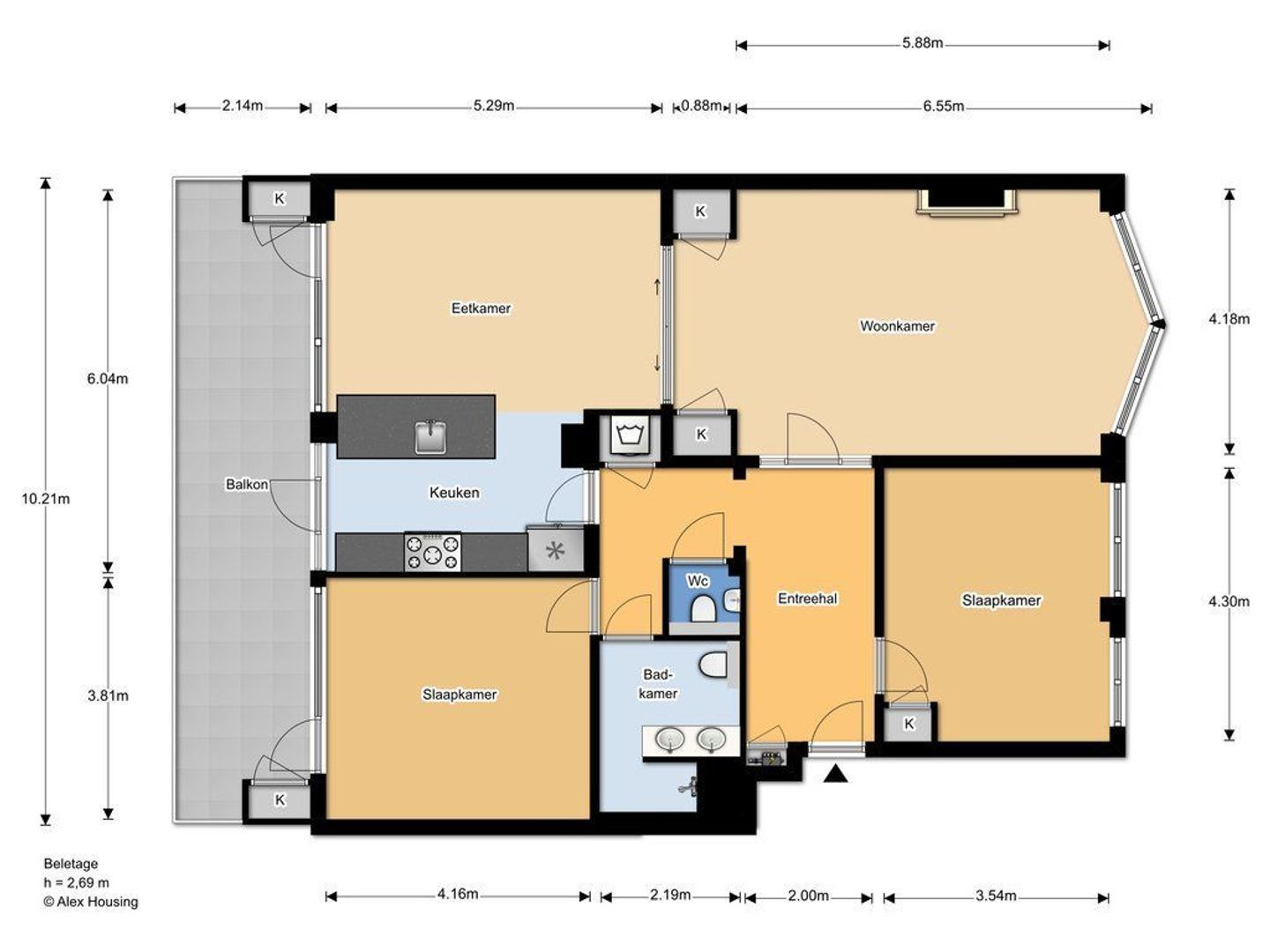
Layout:
Stairs to 1st floor, entrance apartment, spacious hall with parquet flooring, guest lavatory and laundry2 .
Very large living and dining room (appr. 12 x 5.70) with built-in storage, separated by sliding glass doors.

Luxurious open kitchen (Siemens) with oven, fridge, seperate freezer and a dishwasher. There is also a breakfast bar and access to an extra wide balcony with cupboard (appr. 2,10 x 11,50 m).

Master bedroom at the rear (appr. 4 x 3.80), luxurious bathroom with walk-in shower, 2 washbasins and second toilet.
2nd good sized bedroom at the front.

Details:
- There is an advance payment of € 145,- per month for the heating
- luxurious fully equipped kitchen
- parquet flooring throughout the apartment
- spacious terrace
- storage available
- virtual viewings possible through FaceTime or Whatsapp

WE DON'T CHARGE COMMISSION TO THE TENANT!

Kenmerken

Overdracht

Prijs
€ 1.750 p.m.
Status
Verhuurd
Oplevering
Per direct
Inrichting
Gestoffeerd
Servicekosten
€ 145

Oppervlakten en inhoud

Woonoppervlakte
115m²
Overig oppervlakte
1m²
Inhoud
300m³

Bouw

Soort appartement
Bovenwoning, Appartement
Woonlaag
1
Soort bouw
Bestaande bouw
Onderhoud binnen
Uitstekend
Onderhoud buiten
Goed

Indeling

Aantal kamers
4
Aantal slaapkamers
2
Aantal badkamers
1
Aantal verdiepingen
4
Voorzieningen
TV-Kabel

Energie

Energielabel
F
Warm water
C.V.-ketel
Verwarming
Blokverwarming

Buitenruimte

Ligging
Aan rustige weg, In woonwijk, Vrij uitzicht
Balkon
Ja

Garage

Soort
Openbaar parkeren, Betaald parkeren

Locatie

[ { "address": "Laan van Clingendael 38", "zipCode": "2597 CD", "city": "Den Haag", "lat": 52.0951017, "lng": 4.334005, "heading": 0, "pitch": 0 } ]
[{"featureType":"water","stylers":[{"visibility":"on"},{"lightness":20},{"saturation":-42},{"hue":"#00ccff"}]},{"featureType":"landscape.man_made","elementType":"geometry","stylers":[{"visibility":"on"},{"saturation":-99},{"lightness":51}]},{"featureType":"road.arterial","elementType":"geometry","stylers":[{"saturation":-98},{"lightness":35}]},{"featureType":"road.highway","elementType":"geometry","stylers":[{"saturation":-95},{"lightness":-10},{"gamma":2.17}]},{"featureType":"poi.park","stylers":[{"visibility":"on"},{"lightness":30},{"saturation":-50},{"hue":"#a1ff00"}]},{"featureType":"poi.school","elementType":"geometry","stylers":[{"saturation":-25},{"lightness":12},{"hue":"#ffdd00"}]},{"featureType":"road.local","stylers":[{"saturation":-100},{"lightness":15}]},{"featureType":"administrative.neighborhood","stylers":[{"visibility":"on"},{"saturation":-100},{"lightness":35}]},{"featureType":"poi.attraction","elementType":"labels","stylers":[{"lightness":15},{"hue":"#ff005d"},{"visibility":"simplified"},{"saturation":-100}]},{"featureType":"road.arterial","elementType":"labels","stylers":[{"visibility":"on"},{"saturation":-98},{"lightness":41},{"gamma":0.75}]},{"featureType":"road.highway","elementType":"labels","stylers":[{"visibility":"simplified"},{"lightness":20},{"saturation":-60}]},{"featureType":"transit.line","stylers":[{"visibility":"simplified"},{"saturation":-25},{"lightness":35}]},{"featureType":"transit.station","elementType":"labels","stylers":[{"lightness":10},{"saturation":-72}]},{"featureType":"poi","elementType":"geometry","stylers":[{"lightness":15},{"saturation":7}]},{"featureType":"poi.place_of_worship","elementType":"labels","stylers":[{"visibility":"off"}]},{"featureType":"poi.sports_complex","elementType":"labels","stylers":[{"visibility":"off"}]},{"featureType":"road","elementType":"labels","stylers":[{"visibility":"off"}]},{"featureType":"road.local","elementType":"labels","stylers":[{"visibility":"on"},{"saturation":-100},{"lightness":21}]},{"featureType":"road.arterial","elementType":"labels","stylers":[{"visibility":"on"},{"lightness":25}]},{"featureType":"transit.line","stylers":[{"visibility":"off"}]},{"featureType":"poi","elementType":"labels","stylers":[{"saturation":-100},{"lightness":35}]},{}]

Vragen?

Bel ons of vul onderstaand formulier in dan nemen wij z.s.m. contact met je op.

Deze woning is Verhuurd

Hartelijk dank

Je bericht is naar ons verzonden. Wij nemen zo snel mogelijk contact met je op.

Sorry, we kunnen helaas niet met zekerheid vaststellen of je een mens of een geautomatiseerde bot/spammer bent. Hierdoor kunnen we het formulier dat je hebt ingevuld niet verzenden. Probeer het opnieuw of neem direct contact op met de makelaar via e-mail.

Er is iets mis gegaan met het versturen van het formulier.
Controleer of alle velden (goed) zijn ingevoerd en probeer het nog een keer.

Wil je een bezichtiging plannen?

recaptcha
reCAPTCHA
PrivacyTerms

Liever telefonisch contact?

Wij zijn bereikbaar op werkdagen tussen 9:00 en 17:30 op +31 70 350 7050

Vergelijkbare woningen

Verhuurd
Laan van Roos en Doorn 5 G.
Willemspark, Den Haag
Bovenwoning, 68m², 3 kamers
€ 1.600 p.m.
Verhuurd
Paul Gabrielstraat 24 .
Benoordenhout, Den Haag
Bovenwoning, 120m², 4 kamers
€ 1.900 p.m.
Verhuurd
Sonoystraat 36 .
Geuzen- en Statenkwartier, Den Haag
Bovenwoning, 127m², 5 kamers
€ 2.100 p.m.
Verhuurd
Badhuisweg 60 A.
Belgisch Park, Den Haag
Benedenwoning, 115m², 3 kamers
€ 1.595 p.m.