Cookies op Estata Makelaars O.G.

Fijn dat je verder wilt lezen. We gebruiken cookies om de website naar behoren te laten werken, om functies voor social media te bieden en om onze website te analyseren. Dit gebeurt anoniem. Je gaat akkoord met onze cookies als je onze website blijft gebruiken. Op onze website kun je ook ons privacybeleid vinden.

Gerrit Kasteinweg 8 Verkocht

2597 NZ, Den Haag (gelegen in de buurt Westbroekpark en Duttendel)


Omschrijving

In het prachtige Duttendel ligt dit ruime, onderkelderde herenhuis van circa 183m², met een grote, groene achtertuin op het zuidwesten.

Dit ruime huis bevindt zich in de geliefde en fraaie wijk Duttendel, waar zowel het stadscentrum als het strand en de duinen op slechts enkele minuten fietsafstand liggen. In de directe omgeving vindt u het prachtige natuurgebied Meijendel, diverse scholen, sportvoorzieningen en winkels. Kortom, een fijn huis met veel mogelijkheden!

Indeling: Voortuin, verhoogde entree, hal met garderobekast, tochtdeur naar de gang, toilet met fontein, doorgebroken woon-/eetkamer met fraaie parketvloer en open haard, openslaande deuren naar de zonnige achtertuin op het zuidwesten, ruime keuken voorzien van diverse inbouwapparatuur, waaronder een 4-pits gaskookplaat, afzuigkap, oven, vaatwasser en koel/vriescombinatie. Toegang tot het souterrain met provisieruimte, kelder, wasruimte met wasmachineaansluiting, wasbak en CV-ketel (2022), en een garage met elektrische deur ( 2 afstandsbedieningen) en elektra.

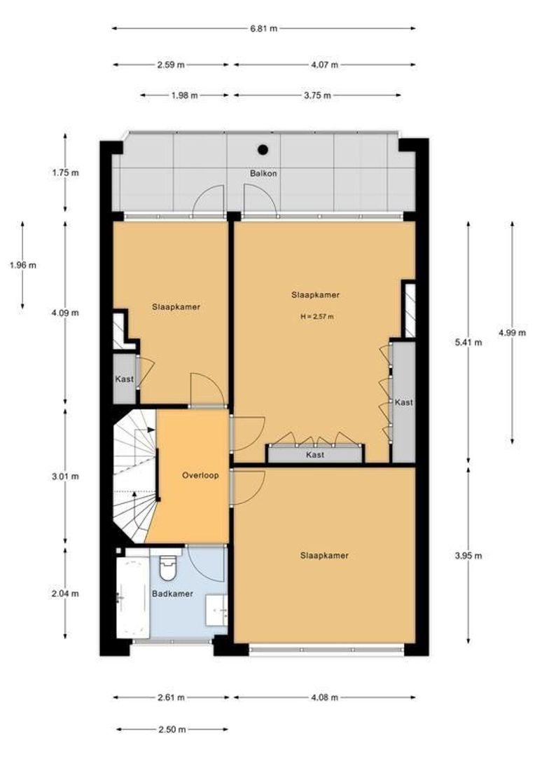
Eerste etage: ruime overloop met parket, ruime slaapkamer aan de voorzijde, moderne badkamer met ligbad met douche, wastafel, toilet. Ruime achterslaapkamer met openslaande deuren naar het balkon en een goed bemeten achterzijkamer.

Tweede etage: ruime overloop met dakkapel, achterkamer inclusief badkamer voorzien van douche en toilet, zolderkamer met twee grote kasten, vaste wastafel en twee dakkapellen. Op deze etage kunnen twee ruime slaapkamers worden gecreëerd.

Een heerlijk, ruim herenhuis met zonnige tuin op een uitstekende locatie.

Bijzonderheden:
• Woonoppervlakte van circa 183 m2 en perceel van 204 m²
• Dubbelglas in de woonkamer, keuken en de eerste verdieping
• Grote kelder
• Garage met elektrische deur (2 afstandsbedieningen)
• CV-ketel (Remeha) uit 2022
• Gedeeltelijk vernieuwde riolering in de kelder
• Op de tweede etage kunnen twee ruime slaapkamers worden gecreëerd
• Erfpacht tot 2030 (€ 73,79 per half jaar). Mogelijkheid tot afkoop voor circa € 144.000 (recente afkoopsom).
• Vanwege het bouwjaar wordt een ouderdoms- en/of materialenclausule (Asbest rapport aanwezig)opgenomen in
de NVM-koopovereenkomst.
• Olietank verwijderd op 24 maart 1998 met Kiwa-certificaat.
• Bouwjaar 1959
• Oplevering in overleg.

Interesse in deze woning? Schakel direct uw eigen NVM-aankoopmakelaar in. Uw NVM-aankoopmakelaar komt op voor uw belang en bespaart u tijd, geld en zorgen. Adressen van collega NVM-aankoopmakelaars in Haaglanden vindt u op Funda.nl.

-----------------------------------
In the beautiful Duttendel, this spacious townhouse of approximately 183m², with a large, green backyard facing southwest, is situated.

This spacious house is located in the beloved and picturesque Duttendel neighborhood, where both the city center and the beach and dunes are only a few minutes away by bike. In the immediate vicinity, you will find the beautiful nature reserve Meijendel, various schools, sports facilities, and shops. In short, a fine house with many possibilities!

Layout:

Front yard, elevated entrance, hall with coat closet, draft door to the hallway, toilet with sink, open-plan living/dining room with beautiful parquet floor and fireplace, French doors to the sunny backyard facing southwest, spacious kitchen equipped with various built-in appliances, including a 4-burner gas stove, extractor hood, oven, dishwasher, and fridge/freezer combination. Access to the basement with storage room, cellar, laundry room with washing machine connection, sink, and central heating boiler (2022), and a garage with an electric door (2 remote controls) and electricity.

First floor:
Spacious landing with parquet, large bedroom at the front, modern bathroom with bathtub and shower, sink, and toilet. Spacious back bedroom with French doors to the balcony and a well-sized rear side room.

Second floor:
Spacious landing with dormer window, rear room including bathroom with shower and toilet, attic room with two large closets, fixed sink, and two dormer windows. Two large bedrooms can be created on this floor.

A lovely, spacious townhouse with a sunny garden in an excellent location.

Details:

-Living area of approximately 183 m² and a plot of 204 m²
-Double glazing in the living room, kitchen, and the first floor
-Large cellar
-Garage with electric door (2 remote controls)
-Central heating boiler (Remeha) from 2022
-Partially renewed sewerage in the basement
-Two large bedrooms can be created on the second floor
-Leasehold until 2030 (€ 73.79 per half year). Possibility of buyout for approximately € 144,000 (recent buyout sum).
-Due to the construction year, an age and/or materials clause (asbestos report available) will be included in the NVM purchase agreement.
-Oil tank removed on March 24, 1998, with Kiwa certificate.
-Year of construction 1959
-Delivery in consultation.

Interested in this property? Contact your own NVM purchase broker immediately. Your NVM purchase broker looks out for your interests and saves you time, money, and worries. Addresses of colleague NVM purchase brokers in Haaglanden can be found on Funda.nl.

Kenmerken

Overdracht

Prijs
€ 900.000 k.k.
Status
Verkocht
Oplevering
In overleg

Oppervlakten en inhoud

Woonoppervlakte
183m²
Perceeloppervlakte
218m²
Overig oppervlakte
73m²
Inhoud
834m³

Bouw

Soort woonhuis
Herenhuis, Tussenwoning
Soort bouw
Bestaande bouw
Onderhoud binnen
Goed
Onderhoud buiten
Goed

Indeling

Aantal kamers
7
Aantal slaapkamers
4
Aantal badkamers
2
Aantal verdiepingen
3
Voorzieningen
Mechanische ventilatie, TV-Kabel, Dakraam

Energie

Energielabel
E
Isolatie
Gedeeltelijk dubbel glas
Warm water
C.V.-ketel
Verwarming
C.V.-ketel
Ketel
HR-107 (2022, Combi-ketel, Eigendom)

Buitenruimte

Ligging
Aan rustige weg, In woonwijk
Balkon
Ja
Tuin
Achtertuin
Achtertuin
Zuidwest, 93m², 740×1250cm

Garage

Soort garage
Inpandig
Capaciteit
2

Locatie

[ { "address": "Gerrit Kasteinweg 8", "zipCode": "2597 NZ", "city": "Den Haag", "lat": 52.1062194, "lng": 4.3038596, "heading": 0, "pitch": 0 } ]
[{"featureType":"water","stylers":[{"visibility":"on"},{"lightness":20},{"saturation":-42},{"hue":"#00ccff"}]},{"featureType":"landscape.man_made","elementType":"geometry","stylers":[{"visibility":"on"},{"saturation":-99},{"lightness":51}]},{"featureType":"road.arterial","elementType":"geometry","stylers":[{"saturation":-98},{"lightness":35}]},{"featureType":"road.highway","elementType":"geometry","stylers":[{"saturation":-95},{"lightness":-10},{"gamma":2.17}]},{"featureType":"poi.park","stylers":[{"visibility":"on"},{"lightness":30},{"saturation":-50},{"hue":"#a1ff00"}]},{"featureType":"poi.school","elementType":"geometry","stylers":[{"saturation":-25},{"lightness":12},{"hue":"#ffdd00"}]},{"featureType":"road.local","stylers":[{"saturation":-100},{"lightness":15}]},{"featureType":"administrative.neighborhood","stylers":[{"visibility":"on"},{"saturation":-100},{"lightness":35}]},{"featureType":"poi.attraction","elementType":"labels","stylers":[{"lightness":15},{"hue":"#ff005d"},{"visibility":"simplified"},{"saturation":-100}]},{"featureType":"road.arterial","elementType":"labels","stylers":[{"visibility":"on"},{"saturation":-98},{"lightness":41},{"gamma":0.75}]},{"featureType":"road.highway","elementType":"labels","stylers":[{"visibility":"simplified"},{"lightness":20},{"saturation":-60}]},{"featureType":"transit.line","stylers":[{"visibility":"simplified"},{"saturation":-25},{"lightness":35}]},{"featureType":"transit.station","elementType":"labels","stylers":[{"lightness":10},{"saturation":-72}]},{"featureType":"poi","elementType":"geometry","stylers":[{"lightness":15},{"saturation":7}]},{"featureType":"poi.place_of_worship","elementType":"labels","stylers":[{"visibility":"off"}]},{"featureType":"poi.sports_complex","elementType":"labels","stylers":[{"visibility":"off"}]},{"featureType":"road","elementType":"labels","stylers":[{"visibility":"off"}]},{"featureType":"road.local","elementType":"labels","stylers":[{"visibility":"on"},{"saturation":-100},{"lightness":21}]},{"featureType":"road.arterial","elementType":"labels","stylers":[{"visibility":"on"},{"lightness":25}]},{"featureType":"transit.line","stylers":[{"visibility":"off"}]},{"featureType":"poi","elementType":"labels","stylers":[{"saturation":-100},{"lightness":35}]},{}]

Vragen?

Bel ons of vul onderstaand formulier in dan nemen wij z.s.m. contact met je op.

Deze woning is Verkocht

Hartelijk dank

Je bericht is naar ons verzonden. Wij nemen zo snel mogelijk contact met je op.

Sorry, we kunnen helaas niet met zekerheid vaststellen of je een mens of een geautomatiseerde bot/spammer bent. Hierdoor kunnen we het formulier dat je hebt ingevuld niet verzenden. Probeer het opnieuw of neem direct contact op met de makelaar via e-mail.

Er is iets mis gegaan met het versturen van het formulier.
Controleer of alle velden (goed) zijn ingevoerd en probeer het nog een keer.

Wil je een bezichtiging plannen?

recaptcha
reCAPTCHA
PrivacyTerms

Liever telefonisch contact?

Wij zijn bereikbaar op werkdagen tussen 9:00 en 17:30 op +31 70 350 7050

Vergelijkbare woningen

Verkocht
Borneostraat 132
Archipelbuurt, Den Haag
Tussenwoning, 189m², 7 kamers
€ 975.000 k.k.
Verkocht
Van Boetzelaerlaan 36
Geuzen- en Statenkwartier, Den Haag
Tussenwoning, 214m², 8 kamers
€ 965.000 k.k.
Verkocht
Badhuisweg 232 C
Westbroekpark en Duttendel, Den Haag
Penthouse, 179m², 5 kamers
€ 1.035.000 k.k.
Verkocht
Van Drenkwaertstraat 12
Benoordenhout, Den Haag
Tussenwoning, 186m², 7 kamers
€ 995.000 k.k.