Cookies op Estata Makelaars O.G.

Fijn dat je verder wilt lezen. We gebruiken cookies om de website naar behoren te laten werken, om functies voor social media te bieden en om onze website te analyseren. Dit gebeurt anoniem. Je gaat akkoord met onze cookies als je onze website blijft gebruiken. Op onze website kun je ook ons privacybeleid vinden.

Francois Maelsonstraat 51 Verkocht

2582 KB, Den Haag (gelegen in de buurt Statenkwartier)


Omschrijving

Scroll down for English

STATENKWARTIER

Goed 3-laags herenhuis met voor- en achtertuin. Gelegen nabij de gezellige Frederik Hendriklaan met vele diverse winkels en eetgelegenheden en de Scheveningse Haven. Gunstig gelegen wat betreft openbaar vervoer en (internationale) scholen.

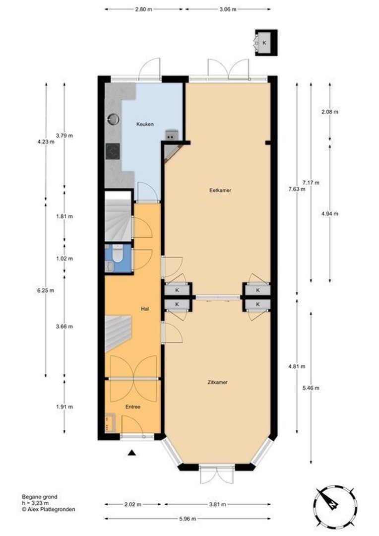
INDELING:
Entree, hal met marmeren vloer en meterkast, tochtseparatie met glas-in-lood, gang met marmeren tegelvloer en ruimte onder de trap, wc met fonteintje, kelder onder het keukengedeelte, nette keuken met CV-ketel (Nefit) en deur naar de achtertuin, ruime eetkamer met serregedeelte en openslaande deuren naar de beschutte achtertuin, suite separatie, voorkamer met mooie lichtinval en openslaande deuren naar de kleine voortuin. Beide kamers zijn voorzien van parket.

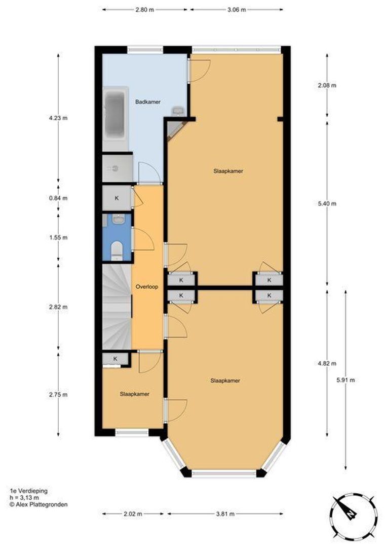
1e etage:
Overloop met wc, grote slaapkamer met schouw en oorspronkelijke suite deuren (niet meer in gebruik), deur naar badkamer met bad, ligbad en wastafel, ruime voorkamer met visgraat parket en vrij uitzicht vanuit de erker en een voorzijkamer.

2e etage:
Overloop met wc, achterzijkamer (thans wasruimte), grote kamer met balkon aan de achterzijde, tussenbergruimte met daklicht, grote voorkamer met openslaande deuren naar klein balkon en een voorzijkamer.

Bijzonderheden:
Eigen grond
Bouwjaar 1917
Woonopperlvlakte ca.223 m2
Plattegronden aanwezig, maten zijn indicatief
Ouderdoms- en materialenclausules aanwezig
Gelegen in een gezellige straat met plantsoentje in het Statenkwartier
Om de hoek van de gezellige winkels en lunchrooms van de 'Fred'
Op loopafstand van het strand en de duinen
Nabij musea en Internationale Zone (o.a. Eurojust, Internationaal Strafhof)
Veel goede scholen in de buurt (nationaal en internationaal)
Nabij openbaar vervoer

ENGLISH TEXT

Spacious (ca. 223m2) 3-storey townhouse with front and back garden in the much sought-after Statenkwartier.
Located on a quiet one-way street, just steps from the city’s most famous shopping street, the Frederik Hendriklaan, as well as the bustling harbour and wide sandy beaches of Scheveningen. Several international schools, including the French, German, and European Schools are within easy reach. There is ample on-street parking and a number of public transport lines in the direct vicinity.

LAYOUT:
Walkway through the front garden to the entrance; vestibule with a leaded glass anti-draught door to a hallway, both with marble flooring. From the hallway there is access to a large under-stairs storage cupboard, cellar, guest lavatory, kitchen with door to the garden, and reception rooms. The light front living room is separated by sliding doors from the good-sized dining room with adjoining sun room. Both rooms have French doors to the garden.

1st floor:
Landing; wc; big bedroom at the rear with mantel and original pocket doors (non-functional); large front bedroom with herringbone-patterned parquet flooring and bay window with nice view; side room; bathroom with bath and washbasin.
2nd floor:
Landing; wc; 2 large rooms, each with a balcony; storage room; side room at the front; back room with laundry connections.

Extras at a glance:
Outstanding location in Statenkwartier, around the corner from shops and restaurants
Within walking distance of harbour and seaside
Close to museums and the International Zone
Excellent local and international schools in the neighbourhood
Near public transport

Facts and figures:
Freehold
Built in 1917
Interior space ca.223 m2
Dimensions are indicative, see floor plans
Older construction and materials disclaimers will be included in the purchase agreement

Kenmerken

Overdracht

Prijs
€ 795.000 k.k.
Status
Verkocht
Oplevering
In overleg

Oppervlakten en inhoud

Woonoppervlakte
223m²
Perceeloppervlakte
149m²
Oppervlakte woonkamer
50m²
Overig oppervlakte
12m²
Inhoud
903m³

Bouw

Soort woonhuis
Herenhuis, Tussenwoning
Soort bouw
Bestaande bouw
Onderhoud binnen
Goed
Onderhoud buiten
Goed
Bijzonderheden
Beschermd stads- of dorpgezicht

Indeling

Aantal kamers
9
Aantal slaapkamers
6
Aantal badkamers
1
Aantal verdiepingen
3

Energie

Energielabel
F
Isolatie
Gedeeltelijk dubbel glas
Warm water
C.V.-ketel
Verwarming
C.V.-ketel
Ketel
Nefit (2016, Combi-ketel, Eigendom)

Buitenruimte

Ligging
In woonwijk
Balkon
Ja
Tuin
Achtertuin, Voortuin
Achtertuin
Noordoost, 45m², 600×750cm

Garage

Soort
Openbaar parkeren, Betaald parkeren, Parkeervergunning

Locatie

[ { "address": "Francois Maelsonstraat 51", "zipCode": "2582 KB", "city": "Den Haag", "lat": 52.0951099, "lng": 4.2712608, "heading": 0, "pitch": 0 } ]
[{"featureType":"water","stylers":[{"visibility":"on"},{"lightness":20},{"saturation":-42},{"hue":"#00ccff"}]},{"featureType":"landscape.man_made","elementType":"geometry","stylers":[{"visibility":"on"},{"saturation":-99},{"lightness":51}]},{"featureType":"road.arterial","elementType":"geometry","stylers":[{"saturation":-98},{"lightness":35}]},{"featureType":"road.highway","elementType":"geometry","stylers":[{"saturation":-95},{"lightness":-10},{"gamma":2.17}]},{"featureType":"poi.park","stylers":[{"visibility":"on"},{"lightness":30},{"saturation":-50},{"hue":"#a1ff00"}]},{"featureType":"poi.school","elementType":"geometry","stylers":[{"saturation":-25},{"lightness":12},{"hue":"#ffdd00"}]},{"featureType":"road.local","stylers":[{"saturation":-100},{"lightness":15}]},{"featureType":"administrative.neighborhood","stylers":[{"visibility":"on"},{"saturation":-100},{"lightness":35}]},{"featureType":"poi.attraction","elementType":"labels","stylers":[{"lightness":15},{"hue":"#ff005d"},{"visibility":"simplified"},{"saturation":-100}]},{"featureType":"road.arterial","elementType":"labels","stylers":[{"visibility":"on"},{"saturation":-98},{"lightness":41},{"gamma":0.75}]},{"featureType":"road.highway","elementType":"labels","stylers":[{"visibility":"simplified"},{"lightness":20},{"saturation":-60}]},{"featureType":"transit.line","stylers":[{"visibility":"simplified"},{"saturation":-25},{"lightness":35}]},{"featureType":"transit.station","elementType":"labels","stylers":[{"lightness":10},{"saturation":-72}]},{"featureType":"poi","elementType":"geometry","stylers":[{"lightness":15},{"saturation":7}]},{"featureType":"poi.place_of_worship","elementType":"labels","stylers":[{"visibility":"off"}]},{"featureType":"poi.sports_complex","elementType":"labels","stylers":[{"visibility":"off"}]},{"featureType":"road","elementType":"labels","stylers":[{"visibility":"off"}]},{"featureType":"road.local","elementType":"labels","stylers":[{"visibility":"on"},{"saturation":-100},{"lightness":21}]},{"featureType":"road.arterial","elementType":"labels","stylers":[{"visibility":"on"},{"lightness":25}]},{"featureType":"transit.line","stylers":[{"visibility":"off"}]},{"featureType":"poi","elementType":"labels","stylers":[{"saturation":-100},{"lightness":35}]},{}]

Vragen?

Bel ons of vul onderstaand formulier in dan nemen wij z.s.m. contact met je op.

Deze woning is Verkocht

Hartelijk dank

Je bericht is naar ons verzonden. Wij nemen zo snel mogelijk contact met je op.

Sorry, we kunnen helaas niet met zekerheid vaststellen of je een mens of een geautomatiseerde bot/spammer bent. Hierdoor kunnen we het formulier dat je hebt ingevuld niet verzenden. Probeer het opnieuw of neem direct contact op met de makelaar via e-mail.

Er is iets mis gegaan met het versturen van het formulier.
Controleer of alle velden (goed) zijn ingevoerd en probeer het nog een keer.

Wil je een bezichtiging plannen?

recaptcha
reCAPTCHA
PrivacyTerms

Liever telefonisch contact?

Wij zijn bereikbaar op werkdagen tussen 9:00 en 17:30 op +31 70 350 7050

Vergelijkbare woningen

Verkocht
Neuhuyskade 8
Benoordenhout, Den Haag
Bovenwoning, 200m², 6 kamers
€ 649.000 k.k.
Verkocht
Badhuisweg 145
Westbroekpark en Duttendel, Den Haag
Benedenwoning, 123m², 3 kamers
€ 700.000 k.k.
Verkocht
Van Tedingerbrouckstraat 22
Benoordenhout, Den Haag
Tussenwoning, 176m², 7 kamers
€ 835.000 k.k.
Verkocht
Molenstraat 19 a
Centrum, Den Haag
Bovenwoning, 171m², 6 kamers
€ 895.000 k.k.