Cookies op Estata Makelaars O.G.

Fijn dat je verder wilt lezen. We gebruiken cookies om de website naar behoren te laten werken, om functies voor social media te bieden en om onze website te analyseren. Dit gebeurt anoniem. Je gaat akkoord met onze cookies als je onze website blijft gebruiken. Op onze website kun je ook ons privacybeleid vinden.

Burgemeester Marijnenlaan 94 Verkocht

2585 DR, Den Haag (gelegen in de buurt Archipelbuurt)


Omschrijving

Unieke stadswoning met 3 slaapkamers in de gewilde Archipel buurt gelegen, met een inpandige garage én een parkeerplek op eigen terrein.

Op loopafstand van de gezellige Bankastraat met leuke restaurants, lunchrooms en winkels. Ook het centrum van de stad is dichtbij, net als diverse internationale organisaties, (internationale) scholen, openbaar vervoer, uitvalswegen en het strand van Scheveningen.

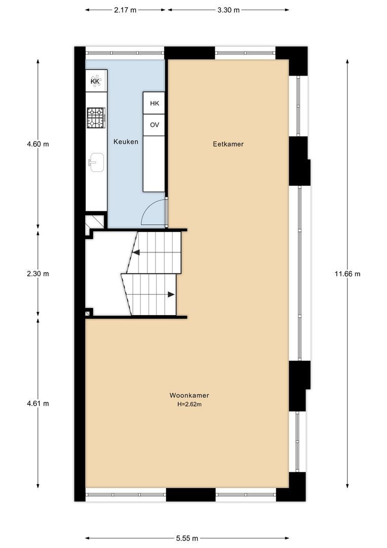
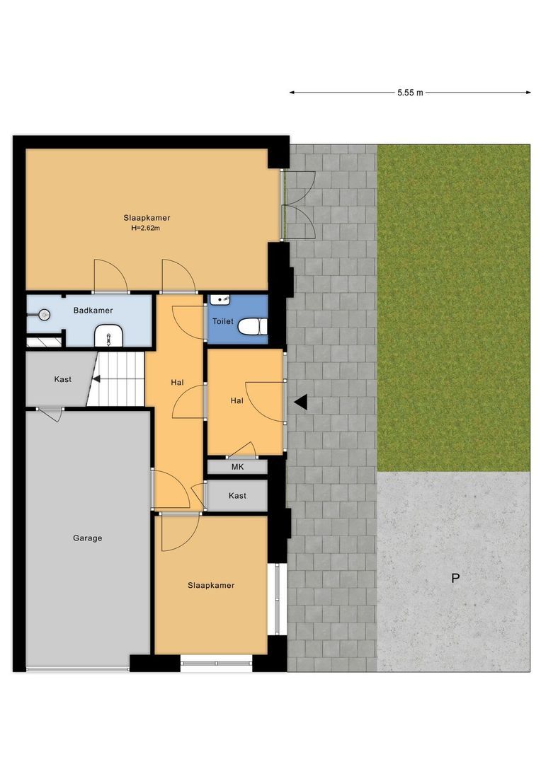
Indeling:
Entree op begane grond, hal met meterkas, gang, toilet, ruime vaste kast, ruime slaapkamer met badkamer voorzien van douche en wastafel en deur naar de tuin, studeer-/slaapkamer, inpandige garage met elektrische deur. Trap naar eerste verdieping.

Eerste verdieping:
Grote, zonnige L-vormige woon-/eetkamer, dichte keuken aan de achterzijde met apparatuur. Trap naar tweede verdieping.

Tweede verdieping:
Overloop, grote slaapkamer met inbouwkasten, badkamer met ligbad, toilet, dubbele wastafel, aparte ruimte voor wasmachine, droger en opstelplaats CV-ketel, dakterras aan de voorzijde uitkijkend over de straat, Vlizo trap naar vliering.

Bijzonderheden:
- Bouwjaar 1999
- Energielabel B
- Gebruiksoppervlakte wonen ca. 158 m2
- Privé parkeerplek én een garage
- Dubbel glas
- Geheel geïsoleerd
- Eeuwigdurend erfpacht
- Canon is eeuwigdurend afgekocht
- Oplevering kan snel
- Niet bewoners clausule van toepassing
- Vanwege het bouwjaar worden de ouderdoms- en materialenclausule in de koopovereenkomst opgenomen

Deze informatie is door ons kantoor met de grootste zorg samengesteld onder andere aan de hand van de door de verkoper aan ons ter beschikking gestelde gegevens. Door Estata wordt geen enkele aansprakelijkheid aanvaard voor enige onvolledigheid, onjuistheid of anderszins, dan wel de gevolgen daarvan.

Bent u enthousiast over dit huis, maar heeft u uw eigen huis nog niet verkocht? Neem dan contact met ons kantoor op voor een waardebepaling, zonder enige verdere verplichting. We plannen dan direct een afspraak in met één van onze makelaars zodat u op korte termijn zicht heeft op uw mogelijkheden.


**********************************************************************************************

Unique townhouse with 3 bedrooms located in the popular Archipel neighborhood, with a garage and on-site parking.

Within walking distance of the Bankastraat with nice restaurants, lunchrooms and stores. The city center is also nearby, as well as various international organizations, (international) schools, public transportation, roads and the beach of Scheveningen.

Layout:
Entrance on ground floor, hall with meter cupboard, hallway, toilet, large built in closet, spacious bedroom with attached bathroom equipped with shower and sink bathroom and door to garden, study/bedroom, indoor garage with electric door. Stairs to first floor.

First floor:
Large, sunny L-shaped living/dining room, closed kitchen at rear with appliances. Stairs to second floor.

Second floor:
Landing, large bedroom with fitted wardrobes, bathroom with bath, toilet, double sink, separate room for washing machine, dryer and central heating boiler, roof terrace at the front overlooking the street, Vlizo stairs to attic.

Details:
- Built in 1999
- Energy label B
- Total livingspace appr. 158 m2
- Private parking and a garage
- Double glazing
- Fully insulated
- Leasehold redeemed in perpetuity
- Quick delivery
- Non-residents clause applies
- Because of the year of construction, the age and materials clause will be included in the purchase agreement


The foregoing information has been carefully compiled by our office, among other things on the basis of the data made available to us by the lessor. However, no liability can be accepted by Estata Makelaars o.g. for any incomplete or inaccurate information, nor for the consequences thereof.

If you are excited about this house but haven’t sold your own yet, please contact our office for a valuation without any further obligation. We will then schedule an appointment with one of our agents so that you can quickly see your options.

Kenmerken

Overdracht

Prijs
€ 1.150.000 k.k.
Status
Verkocht
Oplevering
Per direct
Inrichting
Gestoffeerd

Oppervlakten en inhoud

Woonoppervlakte
158m²
Perceeloppervlakte
147m²
Overig oppervlakte
41m²
Inhoud
733m³

Bouw

Soort woonhuis
Villa, 2-onder-1-kapwoning
Soort bouw
Bestaande bouw
Bouwjaar
1999
Onderhoud binnen
Uitstekend
Onderhoud buiten
Goed

Indeling

Aantal kamers
6
Aantal slaapkamers
3
Aantal badkamers
2
Aantal verdiepingen
4
Voorzieningen
TV-Kabel

Energie

Energielabel
B
Isolatie
Dakisolatie, Dubbel glas
Warm water
C.V.-ketel
Verwarming
C.V.-ketel

Buitenruimte

Ligging
In woonwijk
Balkon
Ja
Tuin
Zijtuin
Zijtuin
33m², 600×550cm
Schuur
Inpandig

Garage

Soort garage
Inpandig
Capaciteit
1

Locatie

[ { "address": "Burgemeester Marijnenlaan 94", "zipCode": "2585 DR", "city": "Den Haag", "lat": 52.0886169, "lng": 4.3036183, "heading": 0, "pitch": 0 } ]
[{"featureType":"water","stylers":[{"visibility":"on"},{"lightness":20},{"saturation":-42},{"hue":"#00ccff"}]},{"featureType":"landscape.man_made","elementType":"geometry","stylers":[{"visibility":"on"},{"saturation":-99},{"lightness":51}]},{"featureType":"road.arterial","elementType":"geometry","stylers":[{"saturation":-98},{"lightness":35}]},{"featureType":"road.highway","elementType":"geometry","stylers":[{"saturation":-95},{"lightness":-10},{"gamma":2.17}]},{"featureType":"poi.park","stylers":[{"visibility":"on"},{"lightness":30},{"saturation":-50},{"hue":"#a1ff00"}]},{"featureType":"poi.school","elementType":"geometry","stylers":[{"saturation":-25},{"lightness":12},{"hue":"#ffdd00"}]},{"featureType":"road.local","stylers":[{"saturation":-100},{"lightness":15}]},{"featureType":"administrative.neighborhood","stylers":[{"visibility":"on"},{"saturation":-100},{"lightness":35}]},{"featureType":"poi.attraction","elementType":"labels","stylers":[{"lightness":15},{"hue":"#ff005d"},{"visibility":"simplified"},{"saturation":-100}]},{"featureType":"road.arterial","elementType":"labels","stylers":[{"visibility":"on"},{"saturation":-98},{"lightness":41},{"gamma":0.75}]},{"featureType":"road.highway","elementType":"labels","stylers":[{"visibility":"simplified"},{"lightness":20},{"saturation":-60}]},{"featureType":"transit.line","stylers":[{"visibility":"simplified"},{"saturation":-25},{"lightness":35}]},{"featureType":"transit.station","elementType":"labels","stylers":[{"lightness":10},{"saturation":-72}]},{"featureType":"poi","elementType":"geometry","stylers":[{"lightness":15},{"saturation":7}]},{"featureType":"poi.place_of_worship","elementType":"labels","stylers":[{"visibility":"off"}]},{"featureType":"poi.sports_complex","elementType":"labels","stylers":[{"visibility":"off"}]},{"featureType":"road","elementType":"labels","stylers":[{"visibility":"off"}]},{"featureType":"road.local","elementType":"labels","stylers":[{"visibility":"on"},{"saturation":-100},{"lightness":21}]},{"featureType":"road.arterial","elementType":"labels","stylers":[{"visibility":"on"},{"lightness":25}]},{"featureType":"transit.line","stylers":[{"visibility":"off"}]},{"featureType":"poi","elementType":"labels","stylers":[{"saturation":-100},{"lightness":35}]},{}]

Vragen?

Bel ons of vul onderstaand formulier in dan nemen wij z.s.m. contact met je op.

Deze woning is Verkocht

Hartelijk dank

Je bericht is naar ons verzonden. Wij nemen zo snel mogelijk contact met je op.

Sorry, we kunnen helaas niet met zekerheid vaststellen of je een mens of een geautomatiseerde bot/spammer bent. Hierdoor kunnen we het formulier dat je hebt ingevuld niet verzenden. Probeer het opnieuw of neem direct contact op met de makelaar via e-mail.

Er is iets mis gegaan met het versturen van het formulier.
Controleer of alle velden (goed) zijn ingevoerd en probeer het nog een keer.

Wil je een bezichtiging plannen?

recaptcha
reCAPTCHA
PrivacyTerms

Liever telefonisch contact?

Wij zijn bereikbaar op werkdagen tussen 9:00 en 17:30 op +31 70 350 7050

Vergelijkbare woningen

Verkocht
Borneostraat 132
Archipelbuurt, Den Haag
Tussenwoning, 189m², 7 kamers
€ 975.000 k.k.
Verkocht
Duinweg 35 -7
Van Stolkpark en Scheveningse Bosjes, Den Haag
Bovenwoning, 147m², 3 kamers
€ 1.120.000 v.o.n.
Verkocht
Van Boetzelaerlaan 36
Geuzen- en Statenkwartier, Den Haag
Tussenwoning, 214m², 8 kamers
€ 965.000 k.k.
Verkocht
Badhuisweg 232 C
Westbroekpark en Duttendel, Den Haag
Penthouse, 179m², 5 kamers
€ 1.035.000 k.k.