Cookies op Estata Makelaars O.G.

Fijn dat je verder wilt lezen. We gebruiken cookies om de website naar behoren te laten werken, om functies voor social media te bieden en om onze website te analyseren. Dit gebeurt anoniem. Je gaat akkoord met onze cookies als je onze website blijft gebruiken. Op onze website kun je ook ons privacybeleid vinden.

Badhuisweg 247 Verkocht

2597 JR, Den Haag (gelegen in de buurt Westbroekpark en Duttendel)


Omschrijving

Karakteristiek en zeer charmant herenhuis met veranda, voor- en achtertuin en 5 slaapkamers (ca. 180 m²) gelegen in een van de mooiste buurten van Den Haag. Een absolute toplocatie vanwege de rustige bosrijke omgeving van het Westbroekpark, Klattepark, Scheveningse Bosjes en Hubertusduinen. Op loopafstand gelegen van de winkels op de gezellige Bankastraat, Gentse- en Stevinstraat, vele sportvoorzieningen (hockey, tennis, padel), diverse internationale organisaties en het openbaar vervoer (tram en bus). Nabij de uitvalswegen en het Centraal Station. De wijk is omgeven door veel 'groen' en toch ben je op de fiets zo in het centrum van Den Haag, evenals op het strand, in de duinen en de haven van Scheveningen.

Indeling:
Zeer charmante voorgevel. Voortuin met veranda en fraai houten sierwerk. Vrij uitzicht op het Hubertuspark!
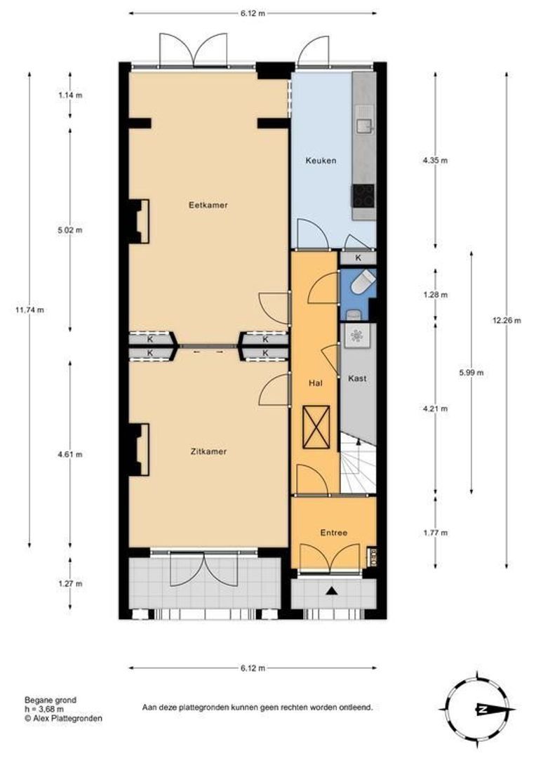
Overdekte entree met mooie houten, dubbele voordeur. Hal met marmeren vloer, meterkast, ruimte voor garderobe en tochtseparatie.
Hal met visgraat parket, wc met fonteintje, trapkast en trap naar 1e verdieping. Tevens luik naar kelder.
Voor-/zitkamer met visgraat parket, schouw, 2 ingebouwde kasten en openslaande deuren naar veranda en voortuin.
En-suite schuifdeuren naar achter-/eetkamer met visgraat parket, schouw en openslaande deuren naar tuin.
Aansluitend een eenvoudige keuken met 4-pits inductie kookplaat, oven, servieskast en deur naar tuin.

Op het westen gelegen, zonnige achtertuin met betegeld terras en een bergkast.

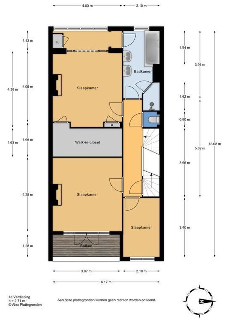
1e verdieping:
Overloop met wc en trap naar 2e verdieping.
Voorzijde; slaapkamer. Ruime, 2e slaapkamer met schouw en openslaande deuren naar balkon.
Achterzijde; ruime, 3e slaapkamer met schouw, 2 ingebouwde kasten en kabinet met doorloop naar badkamer.
Badkamer met ligbad, douche en 2 wastafels.

2e verdieping:
Overloop/voorzolder met opstelling c.v.-combiketel en aansluiting wasmachine.
Voorzijde; 4e slaapkamer met dakkapel. 5e slaapkamer met dakkapel en toegang tot plat dak.

Overige kenmerken:
- bouwjaar 1907
- heerlijk, charmant familiehuis
- vrij uitzicht over het Hubertuspark
- het huis dient aan de eisen van deze tijd te worden aangepast
- de erfpacht is eeuwigdurend en de canon is eeuwigdurend afgekocht
- enkele beglazing
- fraaie paneeldeuren en ornamenten plafonds
- de maten zijn indicatief conform de BBMI/NVM meetinstructie
- de ouderdoms- en materialen clausule wordt opgenomen in de NVM-koopovereenkomst
- de niet-bewoners clausule wordt opgenomen in de NVM koopovereenkomst
- oplevering in overleg

Bent u enthousiast over dit huis, maar heeft u uw eigen huis nog niet verkocht? Neem dan contact met ons kantoor op voor een waardebepaling, zonder enige verdere verplichting. We plannen dan direct een afspraak in met één van onze makelaars zodat u op korte termijn zicht heeft op uw mogelijkheden.

Deze informatie is door ons kantoor met de grootste zorg samengesteld onder andere aan de hand van de door de verkoper aan ons ter beschikking gestelde gegevens. Door Estata wordt geen enkele aansprakelijkheid aanvaard voor enige onvolledigheid, onjuistheid of anderszins, dan wel de gevolgen daarvan.

Kenmerken

Overdracht

Prijs
€ 900.000 k.k.
Status
Verkocht
Oplevering
In overleg

Oppervlakten en inhoud

Woonoppervlakte
180m²
Perceeloppervlakte
175m²
Overig oppervlakte
10m²
Inhoud
736m³

Bouw

Soort woonhuis
Herenhuis, Tussenwoning
Soort bouw
Bestaande bouw
Bouwjaar
1907
Onderhoud binnen
Redelijk
Onderhoud buiten
Goed
Bijzonderheden
Beschermd stads- of dorpgezicht

Indeling

Aantal kamers
7
Aantal slaapkamers
5
Aantal badkamers
1
Aantal verdiepingen
3
Voorzieningen
Rookkanaal

Energie

Energielabel
D
Warm water
C.V.-ketel
Verwarming
C.V.-ketel
Ketel
Remeha Avanta (Combi-ketel, Eigendom)

Buitenruimte

Ligging
Aan drukke weg, In woonwijk
Balkon
Ja
Tuin
Achtertuin, Voortuin
Achtertuin
West, 6×13cm

Garage

Soort
Betaald parkeren, Parkeervergunning

Locatie

[ { "address": "Badhuisweg 247", "zipCode": "2597 JR", "city": "Den Haag", "lat": 52.1009189, "lng": 4.301123, "heading": 0, "pitch": 0 } ]
[{"featureType":"water","stylers":[{"visibility":"on"},{"lightness":20},{"saturation":-42},{"hue":"#00ccff"}]},{"featureType":"landscape.man_made","elementType":"geometry","stylers":[{"visibility":"on"},{"saturation":-99},{"lightness":51}]},{"featureType":"road.arterial","elementType":"geometry","stylers":[{"saturation":-98},{"lightness":35}]},{"featureType":"road.highway","elementType":"geometry","stylers":[{"saturation":-95},{"lightness":-10},{"gamma":2.17}]},{"featureType":"poi.park","stylers":[{"visibility":"on"},{"lightness":30},{"saturation":-50},{"hue":"#a1ff00"}]},{"featureType":"poi.school","elementType":"geometry","stylers":[{"saturation":-25},{"lightness":12},{"hue":"#ffdd00"}]},{"featureType":"road.local","stylers":[{"saturation":-100},{"lightness":15}]},{"featureType":"administrative.neighborhood","stylers":[{"visibility":"on"},{"saturation":-100},{"lightness":35}]},{"featureType":"poi.attraction","elementType":"labels","stylers":[{"lightness":15},{"hue":"#ff005d"},{"visibility":"simplified"},{"saturation":-100}]},{"featureType":"road.arterial","elementType":"labels","stylers":[{"visibility":"on"},{"saturation":-98},{"lightness":41},{"gamma":0.75}]},{"featureType":"road.highway","elementType":"labels","stylers":[{"visibility":"simplified"},{"lightness":20},{"saturation":-60}]},{"featureType":"transit.line","stylers":[{"visibility":"simplified"},{"saturation":-25},{"lightness":35}]},{"featureType":"transit.station","elementType":"labels","stylers":[{"lightness":10},{"saturation":-72}]},{"featureType":"poi","elementType":"geometry","stylers":[{"lightness":15},{"saturation":7}]},{"featureType":"poi.place_of_worship","elementType":"labels","stylers":[{"visibility":"off"}]},{"featureType":"poi.sports_complex","elementType":"labels","stylers":[{"visibility":"off"}]},{"featureType":"road","elementType":"labels","stylers":[{"visibility":"off"}]},{"featureType":"road.local","elementType":"labels","stylers":[{"visibility":"on"},{"saturation":-100},{"lightness":21}]},{"featureType":"road.arterial","elementType":"labels","stylers":[{"visibility":"on"},{"lightness":25}]},{"featureType":"transit.line","stylers":[{"visibility":"off"}]},{"featureType":"poi","elementType":"labels","stylers":[{"saturation":-100},{"lightness":35}]},{}]

Vragen?

Bel ons of vul onderstaand formulier in dan nemen wij z.s.m. contact met je op.

Deze woning is Verkocht

Hartelijk dank

Je bericht is naar ons verzonden. Wij nemen zo snel mogelijk contact met je op.

Sorry, we kunnen helaas niet met zekerheid vaststellen of je een mens of een geautomatiseerde bot/spammer bent. Hierdoor kunnen we het formulier dat je hebt ingevuld niet verzenden. Probeer het opnieuw of neem direct contact op met de makelaar via e-mail.

Er is iets mis gegaan met het versturen van het formulier.
Controleer of alle velden (goed) zijn ingevoerd en probeer het nog een keer.

Wil je een bezichtiging plannen?

recaptcha
reCAPTCHA
PrivacyTerms

Liever telefonisch contact?

Wij zijn bereikbaar op werkdagen tussen 9:00 en 17:30 op +31 70 350 7050

Vergelijkbare woningen

Verkocht
Borneostraat 132
Archipelbuurt, Den Haag
Tussenwoning, 189m², 7 kamers
€ 975.000 k.k.
Verkocht
Van Boetzelaerlaan 36
Geuzen- en Statenkwartier, Den Haag
Tussenwoning, 214m², 8 kamers
€ 965.000 k.k.
Verkocht
Badhuisweg 232 C
Westbroekpark en Duttendel, Den Haag
Penthouse, 179m², 5 kamers
€ 1.035.000 k.k.
Verkocht
Van Drenkwaertstraat 12
Benoordenhout, Den Haag
Tussenwoning, 186m², 7 kamers
€ 995.000 k.k.