Cookies op Estata Makelaars O.G.

Fijn dat je verder wilt lezen. We gebruiken cookies om de website naar behoren te laten werken, om functies voor social media te bieden en om onze website te analyseren. Dit gebeurt anoniem. Je gaat akkoord met onze cookies als je onze website blijft gebruiken. Op onze website kun je ook ons privacybeleid vinden.

Maartensweer 19 Sold

2265 DH, Leidschendam (located in the neighbourhood De Rietvink)


Description

A well-arranged semi-detached house with driveway, carport, rooftop terrace, 5 bedrooms, and a lovely garden in the sought-after neighborhood 'de Rietvink' near the canal. A very spacious house with a good layout and garden!

Layout:

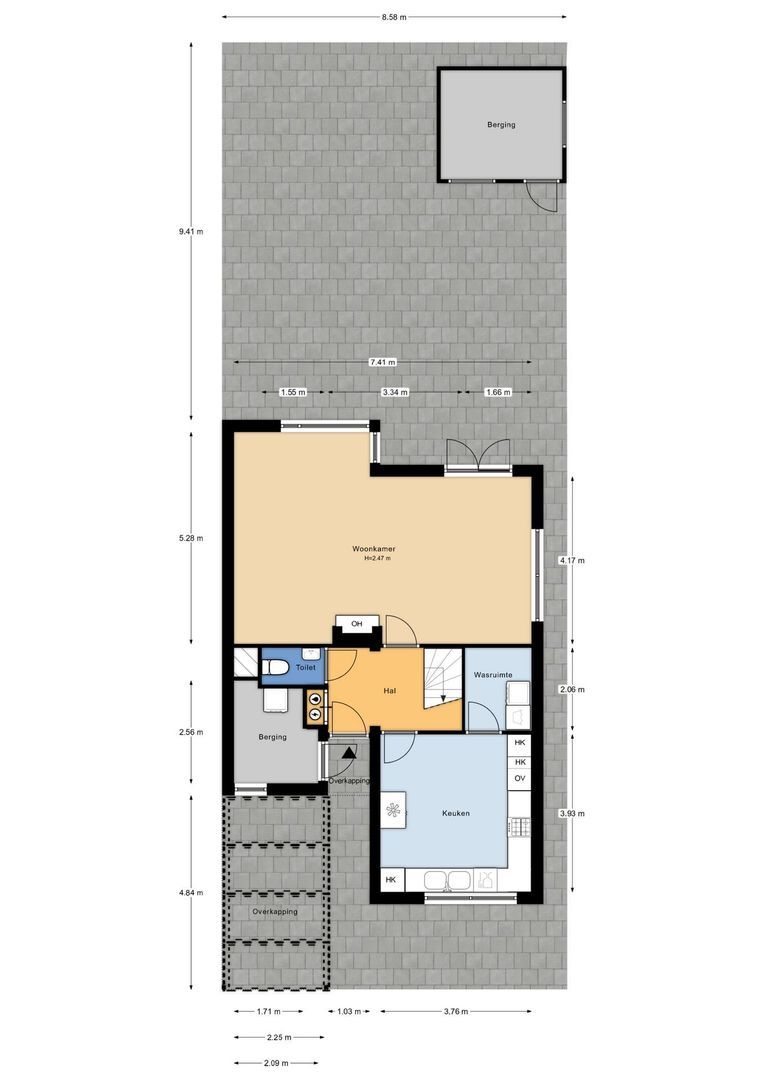
Ground floor: front garden with a car parking space and carport, entrance, spacious storage room with mechanical ventilation unit, water connection, and natural light, hallway, meter cupboard, toilet with a washbasin, bright and wide living room with double French doors providing access to the backyard with a wooden shed. Bright kitchen in a corner layout with various built-in appliances, utility room with washer/dryer setup.

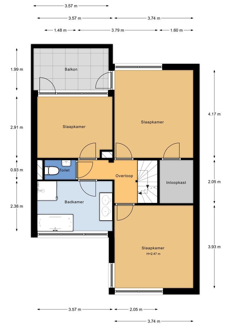
1st floor: equipped with three generous bedrooms and a bathroom. Layout: spacious landing, back bedroom with a walk-in closet, back bedroom, both with access to the sunny terrace. Front bedroom with a corner window for extra light and views, bathroom with double sink, bathtub, separate shower cabin, and natural light, a separate second toilet with a washbasin.

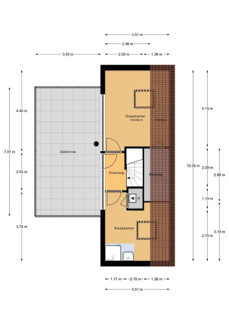
2nd floor: Spacious attic floor with a rooftop terrace. Layout: the central heating system is located in the front room, and a second bathroom has been created with a shower cabin and a single washbasin. At the back, there is a large bedroom. The spacious landing provides access to a large rooftop terrace.

A delightful house located in a child-friendly, well-planned residential area.

Special features:
Located on private land;
Delivery in consultation;
Living area: approximately 151 m²
Very child-friendly location;
Age and materials clause applicable due to the year of construction;
Centrally located near the canal, inner harbor, tennis court, schools, public transportation, and the center of Leidschendam.

Interested in this home? Engage your own NVM buying agent immediately. Your NVM purchase broker will look after your interests and save you time, money and worries.
Addresses of fellow NVM purchase brokers in Haaglanden can be found on Funda.

This information has been compiled by our office with the utmost care on the basis of the information made available to us by the seller. No liability is accepted by Estata for any incompleteness, inaccuracy or otherwise, or the consequences thereof.
.

Details

Transaction

Price
€ 675.000 k.k.
Status
Sold
Acceptance
In consultation

Surface and volume

Living surface
151m²
Plot surface
203m²
Other surface
5m²
Volume
548m³

Build

House type
Town house, Corner house
Build type
Existing
Maintenance inside
Good
Maintenance outside
Good

Layout

Rooms
6
Bedrooms
5
Bathrooms
1
Number of floors
3
Facilities
Mechanical ventilation, Cable tv, Skyline

Energy

Energy label
B
Isolation
Insulated glazing
Hot water
Central heating
Heating
Central heating
Furnace
Nefit (Combined furnace, Owned)

Exterior areas

Location
Near quiet road, In residental area
Garden
Backyard
Backyard
Southeast, 81m², 858×941cm
Shed
Free standing, stone
Shed facilities
electricity

Garage

Garage type
Carport

Location

[ { "address": "Maartensweer 19", "zipCode": "2265 DH", "city": "Leidschendam", "lat": 52.0888911, "lng": 4.4045499, "heading": 0, "pitch": 0 } ]
[{"featureType":"water","stylers":[{"visibility":"on"},{"lightness":20},{"saturation":-42},{"hue":"#00ccff"}]},{"featureType":"landscape.man_made","elementType":"geometry","stylers":[{"visibility":"on"},{"saturation":-99},{"lightness":51}]},{"featureType":"road.arterial","elementType":"geometry","stylers":[{"saturation":-98},{"lightness":35}]},{"featureType":"road.highway","elementType":"geometry","stylers":[{"saturation":-95},{"lightness":-10},{"gamma":2.17}]},{"featureType":"poi.park","stylers":[{"visibility":"on"},{"lightness":30},{"saturation":-50},{"hue":"#a1ff00"}]},{"featureType":"poi.school","elementType":"geometry","stylers":[{"saturation":-25},{"lightness":12},{"hue":"#ffdd00"}]},{"featureType":"road.local","stylers":[{"saturation":-100},{"lightness":15}]},{"featureType":"administrative.neighborhood","stylers":[{"visibility":"on"},{"saturation":-100},{"lightness":35}]},{"featureType":"poi.attraction","elementType":"labels","stylers":[{"lightness":15},{"hue":"#ff005d"},{"visibility":"simplified"},{"saturation":-100}]},{"featureType":"road.arterial","elementType":"labels","stylers":[{"visibility":"on"},{"saturation":-98},{"lightness":41},{"gamma":0.75}]},{"featureType":"road.highway","elementType":"labels","stylers":[{"visibility":"simplified"},{"lightness":20},{"saturation":-60}]},{"featureType":"transit.line","stylers":[{"visibility":"simplified"},{"saturation":-25},{"lightness":35}]},{"featureType":"transit.station","elementType":"labels","stylers":[{"lightness":10},{"saturation":-72}]},{"featureType":"poi","elementType":"geometry","stylers":[{"lightness":15},{"saturation":7}]},{"featureType":"poi.place_of_worship","elementType":"labels","stylers":[{"visibility":"off"}]},{"featureType":"poi.sports_complex","elementType":"labels","stylers":[{"visibility":"off"}]},{"featureType":"road","elementType":"labels","stylers":[{"visibility":"off"}]},{"featureType":"road.local","elementType":"labels","stylers":[{"visibility":"on"},{"saturation":-100},{"lightness":21}]},{"featureType":"road.arterial","elementType":"labels","stylers":[{"visibility":"on"},{"lightness":25}]},{"featureType":"transit.line","stylers":[{"visibility":"off"}]},{"featureType":"poi","elementType":"labels","stylers":[{"saturation":-100},{"lightness":35}]},{}]

Questions?

Fill in the form below and we will contact you as soon as possible.

This home has been Sold

Thank you

Your message has been successfully sent. We will contact you very soon!

Unfortunately we can not conclusively determine whether you are a human or an automated bot/spammer. Hence, we are unable to submit the form. Please retry or contact the real estate agent directly via email.

Something went wrong while sending the contact form. Check if you correctly filled in all required fields and try again.

Do you want to schedule a tour?

recaptcha
reCAPTCHA
PrivacyTerms

Rather call?

We are available on business days between 9:00 and 17:30 on +31 70 350 7050

Similar houses

Sold
IJsvogellaan 45
Park Veursehout, Leidschendam
Terraced house, 145m², 5 rooms
€ 560.000 k.k.
Sold
Plaspoelstraat 59
Damcentrum, Leidschendam
Terraced house, 152m², 4 rooms
€ 675.000 k.k.