Cookies op Estata Makelaars O.G.

Fijn dat je verder wilt lezen. We gebruiken cookies om de website naar behoren te laten werken, om functies voor social media te bieden en om onze website te analyseren. Dit gebeurt anoniem. Je gaat akkoord met onze cookies als je onze website blijft gebruiken. Op onze website kun je ook ons privacybeleid vinden.

Jan van Houtstraat 122 Sold

2581 TA, Den Haag (located in the neighbourhood Statenkwartier)


Description

Extra breed dubbelbovenhuis met zonnig terras aan de woonkamer (W) in het Geuzen-/Statenkwartier gelegen, met drie slaapkamers en ruime badkamer. Dit fijne appartement is in 2015 helemaal gerenoveerd, is goed bereikbaar met het openbaar vervoer en ligt op loop-/fietsafstand van de haven en het strand van Scheveningen, diverse winkels, scholen, sportverenigingen en een scala aan gezellige horeca !

Indeling:
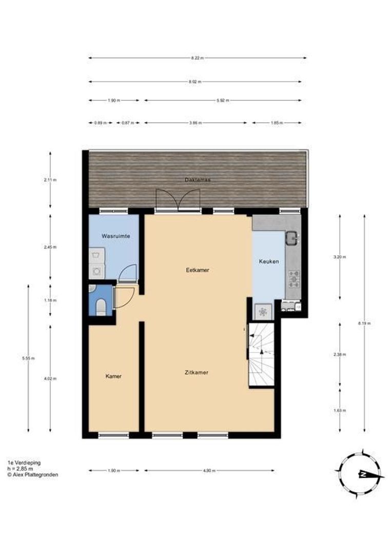
Entree, hal, trap naar 1e etage.
Ruime lichte woon-/eetkamer met moderne open keuken (voorzien van diverse apparatuur), middels openslaande deuren toegang tot fijn terras (over de gehele breedte van het appartement) waar je ook echt gezellig kan zitten/eten/bbq-en !
Op deze etage is ook nog een extra voorzijkamer, een modern wc met fonteintje en een laundry annex bergkamer.
Trap naar 2e etage, overloop.
Aan de voorzijde een grote slaapkamer (over de gehele breedte), aan de achterzijde twee slaapkamers, ruime badkamer (met ligbad, inloopdouche, wc en dubbele wastafel).

Overige informatie:
- woonoppervlakte ca. 118 m2
- erfpacht eeuwig durend afgekocht
- in 2015 compleet gerenoveerd
- buitenschilderwerk in 2018 nog gedaan
- BSG staten-/geuzenkwartier
- de maten zijn indicatief: zie plattegronden
- in de NVM koopovereenkomst worden de materialen- en ouderdomsclausule opgenomen

Interesse in dit huis? Schakel direct uw eigen NVM-aankoopmakelaar in.
Uw NVM-aankoopmakelaar komt op voor uw belang en bespaart u tijd, geld en zorgen.
Adressen van collega NVM-aankoopmakelaars in Haaglanden vindt u op Funda.

Details

Transaction

Price
€ 550.000 k.k.
Status
Sold
Acceptance
In consultation
Homeowners association costs
€ 125

Surface and volume

Living surface
118m²
Volume
399m³

Build

Apartment type
Upper floor apartment, Double upstairs house
Bottom floor
1
Build type
Existing
Build year
1917
Maintenance inside
Good
Maintenance outside
Good
Particulars
Protected town view

Layout

Rooms
6
Bedrooms
3
Bathrooms
1
Number of floors
2

Energy

Isolation
Roof insulation, Wall insulation, Insulated glazing
Hot water
Central heating
Heating
Central heating
Furnace
Remeha (2015, Combined furnace, Owned)

Exterior areas

Location
In residental area

Garage

Type
Public parking, Paid parking, Parking permit

Location

[ { "address": "Jan van Houtstraat 122", "zipCode": "2581 TA", "city": "Den Haag", "lat": 52.0944184, "lng": 4.2690097, "heading": 0, "pitch": 0 } ]
[{"featureType":"water","stylers":[{"visibility":"on"},{"lightness":20},{"saturation":-42},{"hue":"#00ccff"}]},{"featureType":"landscape.man_made","elementType":"geometry","stylers":[{"visibility":"on"},{"saturation":-99},{"lightness":51}]},{"featureType":"road.arterial","elementType":"geometry","stylers":[{"saturation":-98},{"lightness":35}]},{"featureType":"road.highway","elementType":"geometry","stylers":[{"saturation":-95},{"lightness":-10},{"gamma":2.17}]},{"featureType":"poi.park","stylers":[{"visibility":"on"},{"lightness":30},{"saturation":-50},{"hue":"#a1ff00"}]},{"featureType":"poi.school","elementType":"geometry","stylers":[{"saturation":-25},{"lightness":12},{"hue":"#ffdd00"}]},{"featureType":"road.local","stylers":[{"saturation":-100},{"lightness":15}]},{"featureType":"administrative.neighborhood","stylers":[{"visibility":"on"},{"saturation":-100},{"lightness":35}]},{"featureType":"poi.attraction","elementType":"labels","stylers":[{"lightness":15},{"hue":"#ff005d"},{"visibility":"simplified"},{"saturation":-100}]},{"featureType":"road.arterial","elementType":"labels","stylers":[{"visibility":"on"},{"saturation":-98},{"lightness":41},{"gamma":0.75}]},{"featureType":"road.highway","elementType":"labels","stylers":[{"visibility":"simplified"},{"lightness":20},{"saturation":-60}]},{"featureType":"transit.line","stylers":[{"visibility":"simplified"},{"saturation":-25},{"lightness":35}]},{"featureType":"transit.station","elementType":"labels","stylers":[{"lightness":10},{"saturation":-72}]},{"featureType":"poi","elementType":"geometry","stylers":[{"lightness":15},{"saturation":7}]},{"featureType":"poi.place_of_worship","elementType":"labels","stylers":[{"visibility":"off"}]},{"featureType":"poi.sports_complex","elementType":"labels","stylers":[{"visibility":"off"}]},{"featureType":"road","elementType":"labels","stylers":[{"visibility":"off"}]},{"featureType":"road.local","elementType":"labels","stylers":[{"visibility":"on"},{"saturation":-100},{"lightness":21}]},{"featureType":"road.arterial","elementType":"labels","stylers":[{"visibility":"on"},{"lightness":25}]},{"featureType":"transit.line","stylers":[{"visibility":"off"}]},{"featureType":"poi","elementType":"labels","stylers":[{"saturation":-100},{"lightness":35}]},{}]

Questions?

Fill in the form below and we will contact you as soon as possible.

This home has been Sold

Thank you

Your message has been successfully sent. We will contact you very soon!

Unfortunately we can not conclusively determine whether you are a human or an automated bot/spammer. Hence, we are unable to submit the form. Please retry or contact the real estate agent directly via email.

Something went wrong while sending the contact form. Check if you correctly filled in all required fields and try again.

Do you want to schedule a tour?

recaptcha
reCAPTCHA
PrivacyTerms

Rather call?

We are available on business days between 9:00 and 17:30 on +31 70 350 7050

Similar houses

Sold
Neuhuyskade 8
Benoordenhout, Den Haag
Upper floor apartment, 200m², 6 rooms
€ 649.000 k.k.
Sold
Stalpertstraat 83
Benoordenhout, Den Haag
Up and downstairs house, 137m², 4 rooms
€ 575.000 k.k.
Sold
Van Hogenhoucklaan 46
Benoordenhout, Den Haag
Upper floor apartment, 96m², 4 rooms
€ 500.000 k.k.
Sold
Van Kijfhoeklaan 42
Benoordenhout, Den Haag
Upper floor apartment, 115m², 3 rooms
€ 515.000 k.k.