Cookies op Estata Makelaars O.G.

Fijn dat je verder wilt lezen. We gebruiken cookies om de website naar behoren te laten werken, om functies voor social media te bieden en om onze website te analyseren. Dit gebeurt anoniem. Je gaat akkoord met onze cookies als je onze website blijft gebruiken. Op onze website kun je ook ons privacybeleid vinden.

Van Blankenburgstraat 58 Verkocht

2517 XS, Den Haag (gelegen in de buurt Duinoord)


Omschrijving

Klassiek, ruim (229 m2) 4-laags herenhuis gelegen in rustige straat in het mooiste gedeelte van Duinoord, met nog veel authentieke stijldetails (paneeldeuren, lijstwerk plafonds, suite separatie, visgraat parket etc.) en zonnige achtertuin op het Zuiden.

Dit karakteristieke huis ligt in het populaire Duinoord, op de rand van het Statenkwartier en nabij de winkels van de sfeervolle Reinkenstraat en de Frederik Hendriklaan met een rijk aanbod aan winkels en horeca, diverse nationale en internationale scholen, musea, openbaar vervoer en ook op slechts enkele minuten van zowel het strand als de Haagse binnenstad. Op loopafstand bevindt zich de internationale zone met organisaties zoals bijvoorbeeld Europol, OPCW, Eurojust en ook diverse ambassades en het Worldforum.

Indeling:

Begane grond:
Entree, vestibule, hal met originele marmeren vloer, voorkamer (nu in gebruik als werkkamer), bijkeuken/washok (voormalige provisiekamer) met wasmachine en droogtrommel aansluiting en waskoker, wc met fontein, open woonkeuken in lichte kleurstelling en hardstenen werkblad met grote inductiekookplaat, afzuigkap, dubbele oven, afwasmachine en koelkast, achterkamer met originele lijstwerk plafonds en openslaande deuren naar de zonnige achtertuin met grote houten schuur. Trap naar eerste verdieping.

Eerste verdieping:
Overloop met origineel traphekwerk, 2e wc met fontein, zeer lichte en royale kamer en suite met sierplafonds en originele schuifseparatie met 4 vaste kasten, authentiek eiken visgraatparket met dubbele bies, originele schouw met houthaard in de voorkamer en een pantry. Trap naar tweede verdieping.

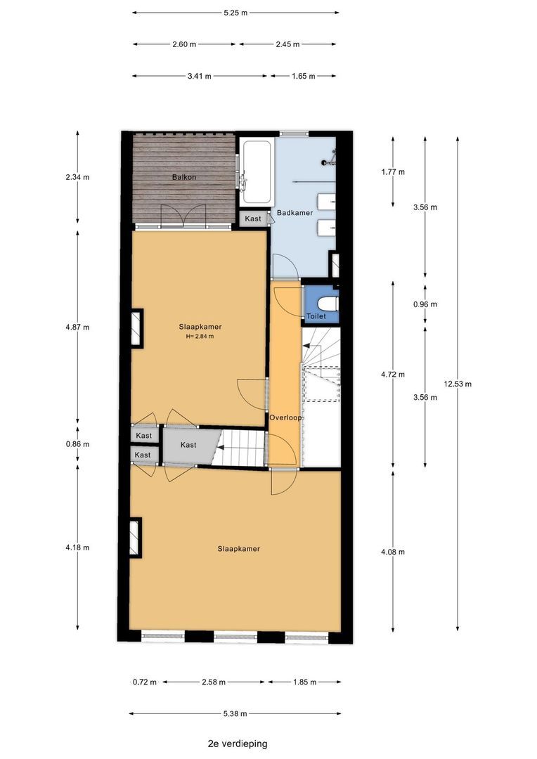
Tweede verdieping:
Overloop met origineel traphekwerk, 3e wc, ruime voorkamer met ornamenten plafond en vaste kast, achterkamer met sierplafond, vaste kast en openslaande deuren naar het zonnige terras, waskoker naar washok op begane grond, badkamer met ligbad, douche en dubbele wastafel. Trap naar derde verdieping.

Derde verdieping:
Ruime overloop met diepe inbouwkast, twee slaapkamers en een 2e badkamer met 4e wc, douche en wastafel. Technische ruimte met C.V. installatie en boiler.

Nadere informatie:
- Eigen grond
- Bouwjaar 1899
- Energielabel C
- Houten raamkozijnen voorzien van dubbele beglazing
- 13 zonnepanelen geplaatst 2014 á 270 Wp per stuk
- alle kamers zijn voorzien van vaste ethernet- en coaxaansluitingen
- Rijksbeschermd stadsgezicht
- Ouderdoms- en materialen clausule van toepassing
- Ideaal familiehuis in fijne kindvriendelijke omgeving
- Oplevering in overleg


Interesse in dit huis? Schakel direct uw eigen NVM-aankoopmakelaar in.
Uw NVM-aankoopmakelaar komt op voor uw belang en bespaart u tijd, geld en zorgen.
Adressen van collega NVM-aankoopmakelaars in Haaglanden vindt u op Funda.

Deze informatie is door ons kantoor met de grootste zorg samengesteld onder andere aan de hand van de door de verkoper aan ons ter beschikking gestelde gegevens. Door Estata wordt geen enkele aansprakelijkheid aanvaard voor enige onvolledigheid, onjuistheid of anderszins, dan wel de gevolgen daarvan.

*******************************************************************************************

Classic, spacious (229 m2) 4-story townhouse located in quiet street in the most beautiful part of Duinoord, with many authentic style details (panel doors, molded ceilings, suite separation, herringbone parquet etc.) and sunny backyard facing South.

This characteristic house is located in the popular Duinoord, on the edge of the Statenkwartier and near the stores of the attractive Reinkenstraat and the Frederik Hendriklaan with a rich offer of stores and restaurants, several national and international schools, museums, public transport and also just a few minutes from both the beach and the Hague city center. Within walking distance is the international zone with organizations such as Europol, OPCW, Eurojust and also various embassies and the Worldforum.

First floor:
Landing with original stair railings, 2nd toilet with fountain, very bright and spacious room en suite with ornamental ceilings and original sliding partition with 4 closets, authentic oak herringbone parquet with double piping, original fireplace with wood-burning fireplace in front room and pantry. Stairs to second floor.

Second floor:
Landing with original stair railings, 3rd toilet, spacious front room with ornamental ceiling and closet, back room with ornamental ceiling, closet and French doors to sunny terrace, laundry chute to first floor laundry room, bathroom with bathtub, shower and double sink. Stairs to third floor.

Third floor:
Spacious landing with deep built-in closet, two bedrooms and a 2nd bathroom with 4th wc, shower and sink. Technical room with central heating system and boiler.

Further information:
- Freehold property
- Built in 1899
- Energy label C
- Wooden window frames with double glazing
- 13 solar panels placed 2014 á 270 Wp each
- All rooms have fixed Ethernet and coax connections
- Located in a designated protected cityscape
- Age and materials clause applies
- Measurements are indicative, in accordance with NVM guidelines
- Ideal family home in a pleasant, child-friendly neighbourhood
- Delivery in consultation

Intrigued? Contact an NVM estate agent, who will represent your interests and save you time, money, and worries.
Addresses of NVM agents in the area can be found on the Funda website.

The foregoing information has been carefully compiled by our office, among other things on the basis of the data made available to us by the seller. However, no liability can be accepted by Estata Makelaars o.g. for any incomplete or inaccurate information, nor for the consequences thereof.

Kenmerken

Overdracht

Prijs
€ 1.150.000 k.k.
Status
Verkocht
Oplevering
In overleg

Oppervlakten en inhoud

Woonoppervlakte
229m²
Perceeloppervlakte
136m²
Inhoud
870m³

Bouw

Soort woonhuis
Herenhuis, Tussenwoning
Soort bouw
Bestaande bouw
Bouwjaar
1899
Onderhoud binnen
Goed
Onderhoud buiten
Goed
Bijzonderheden
Beschermd stads- of dorpgezicht

Indeling

Aantal kamers
8
Aantal slaapkamers
4
Aantal badkamers
2
Aantal verdiepingen
4
Voorzieningen
TV-Kabel, Frans balkon, Zonnepanelen

Energie

Energielabel
C
Isolatie
Dubbel glas
Warm water
C.V.-ketel
Verwarming
C.V.-ketel

Buitenruimte

Ligging
Aan rustige weg, In woonwijk
Balkon
Ja
Tuin
Achtertuin
Achtertuin
48m², 530×900cm
Schuur
Vrijstaand hout
Faciliteiten schuur
Voorzien van elektra

Garage

Soort
Betaald parkeren, Parkeervergunning

Locatie

[ { "address": "Van Blankenburgstraat 58", "zipCode": "2517 XS", "city": "Den Haag", "lat": 52.0845243, "lng": 4.2862888, "heading": 0, "pitch": 0 } ]
[{"featureType":"water","stylers":[{"visibility":"on"},{"lightness":20},{"saturation":-42},{"hue":"#00ccff"}]},{"featureType":"landscape.man_made","elementType":"geometry","stylers":[{"visibility":"on"},{"saturation":-99},{"lightness":51}]},{"featureType":"road.arterial","elementType":"geometry","stylers":[{"saturation":-98},{"lightness":35}]},{"featureType":"road.highway","elementType":"geometry","stylers":[{"saturation":-95},{"lightness":-10},{"gamma":2.17}]},{"featureType":"poi.park","stylers":[{"visibility":"on"},{"lightness":30},{"saturation":-50},{"hue":"#a1ff00"}]},{"featureType":"poi.school","elementType":"geometry","stylers":[{"saturation":-25},{"lightness":12},{"hue":"#ffdd00"}]},{"featureType":"road.local","stylers":[{"saturation":-100},{"lightness":15}]},{"featureType":"administrative.neighborhood","stylers":[{"visibility":"on"},{"saturation":-100},{"lightness":35}]},{"featureType":"poi.attraction","elementType":"labels","stylers":[{"lightness":15},{"hue":"#ff005d"},{"visibility":"simplified"},{"saturation":-100}]},{"featureType":"road.arterial","elementType":"labels","stylers":[{"visibility":"on"},{"saturation":-98},{"lightness":41},{"gamma":0.75}]},{"featureType":"road.highway","elementType":"labels","stylers":[{"visibility":"simplified"},{"lightness":20},{"saturation":-60}]},{"featureType":"transit.line","stylers":[{"visibility":"simplified"},{"saturation":-25},{"lightness":35}]},{"featureType":"transit.station","elementType":"labels","stylers":[{"lightness":10},{"saturation":-72}]},{"featureType":"poi","elementType":"geometry","stylers":[{"lightness":15},{"saturation":7}]},{"featureType":"poi.place_of_worship","elementType":"labels","stylers":[{"visibility":"off"}]},{"featureType":"poi.sports_complex","elementType":"labels","stylers":[{"visibility":"off"}]},{"featureType":"road","elementType":"labels","stylers":[{"visibility":"off"}]},{"featureType":"road.local","elementType":"labels","stylers":[{"visibility":"on"},{"saturation":-100},{"lightness":21}]},{"featureType":"road.arterial","elementType":"labels","stylers":[{"visibility":"on"},{"lightness":25}]},{"featureType":"transit.line","stylers":[{"visibility":"off"}]},{"featureType":"poi","elementType":"labels","stylers":[{"saturation":-100},{"lightness":35}]},{}]

Vragen?

Bel ons of vul onderstaand formulier in dan nemen wij z.s.m. contact met je op.

Deze woning is Verkocht

Hartelijk dank

Je bericht is naar ons verzonden. Wij nemen zo snel mogelijk contact met je op.

Sorry, we kunnen helaas niet met zekerheid vaststellen of je een mens of een geautomatiseerde bot/spammer bent. Hierdoor kunnen we het formulier dat je hebt ingevuld niet verzenden. Probeer het opnieuw of neem direct contact op met de makelaar via e-mail.

Er is iets mis gegaan met het versturen van het formulier.
Controleer of alle velden (goed) zijn ingevoerd en probeer het nog een keer.

Wil je een bezichtiging plannen?

recaptcha
reCAPTCHA
PrivacyTerms

Liever telefonisch contact?

Wij zijn bereikbaar op werkdagen tussen 9:00 en 17:30 op +31 70 350 7050

Vergelijkbare woningen

Verkocht
Borneostraat 132
Archipelbuurt, Den Haag
Tussenwoning, 189m², 7 kamers
€ 975.000 k.k.
Verkocht
Duinweg 35 -7
Van Stolkpark en Scheveningse Bosjes, Den Haag
Bovenwoning, 147m², 3 kamers
€ 1.120.000 v.o.n.
Verkocht
Van Boetzelaerlaan 36
Geuzen- en Statenkwartier, Den Haag
Tussenwoning, 214m², 8 kamers
€ 965.000 k.k.
Verkocht
Badhuisweg 232 C
Westbroekpark en Duttendel, Den Haag
Penthouse, 179m², 5 kamers
€ 1.035.000 k.k.