Cookies op Estata Makelaars O.G.

Fijn dat je verder wilt lezen. We gebruiken cookies om de website naar behoren te laten werken, om functies voor social media te bieden en om onze website te analyseren. Dit gebeurt anoniem. Je gaat akkoord met onze cookies als je onze website blijft gebruiken. Op onze website kun je ook ons privacybeleid vinden.

Prins Mauritslaan 59 Verhuurd

2582 LN, Den Haag (gelegen in de buurt Statenkwartier)


Omschrijving

PRINS MAURITSLAAN 59, 2582 LN THE HAGUE

The furniture shown in the photos is not part of the inventory. The property is offered for rent with fixtures and fittings only.

EXCEPTIONALLY LARGE (ca. 380m2) townhouse in the prestigious Statenkwartier. This turn-of-the-century gem, which combines exquisite period features with modern amenities, is the perfect home for a family. Situated just around the corner from the famous Frederik Hendriklaan (a.k.a. 'de Fred'), the city's best shopping district. Within easy walking/biking distance from the French, German, and European Schools; public transport, the seaside, embassies and international organisations are all within easy reach.


Layout:
Ground floor: vestibule; anti-draught door to imposing marble hallway; guest lavatory; 2 large adjoining reception rooms (ca 15.25x4.55) with original sliding doors inset with leaded glass, parquet flooring, decorative plaster ceilings, and fireplace; side room (ca 3.30x2.00), ideal as bicycle storage/cloakroom. Modern semi-open luxurious, well equipped eat-in kitchen, pantry with extra fridge/freezer combination. Large cellar and easy to maintain enclosed back garden.

1st floor: bedroom (ca 3.35x2.95), 2 further good-sized bedrooms, separated by original sliding doors (13.40x4.55 in total) with parquet floors and large balcony. Luxurious, modern bathroom with bath, separate shower, two washbasins and toilet. Laundry room.

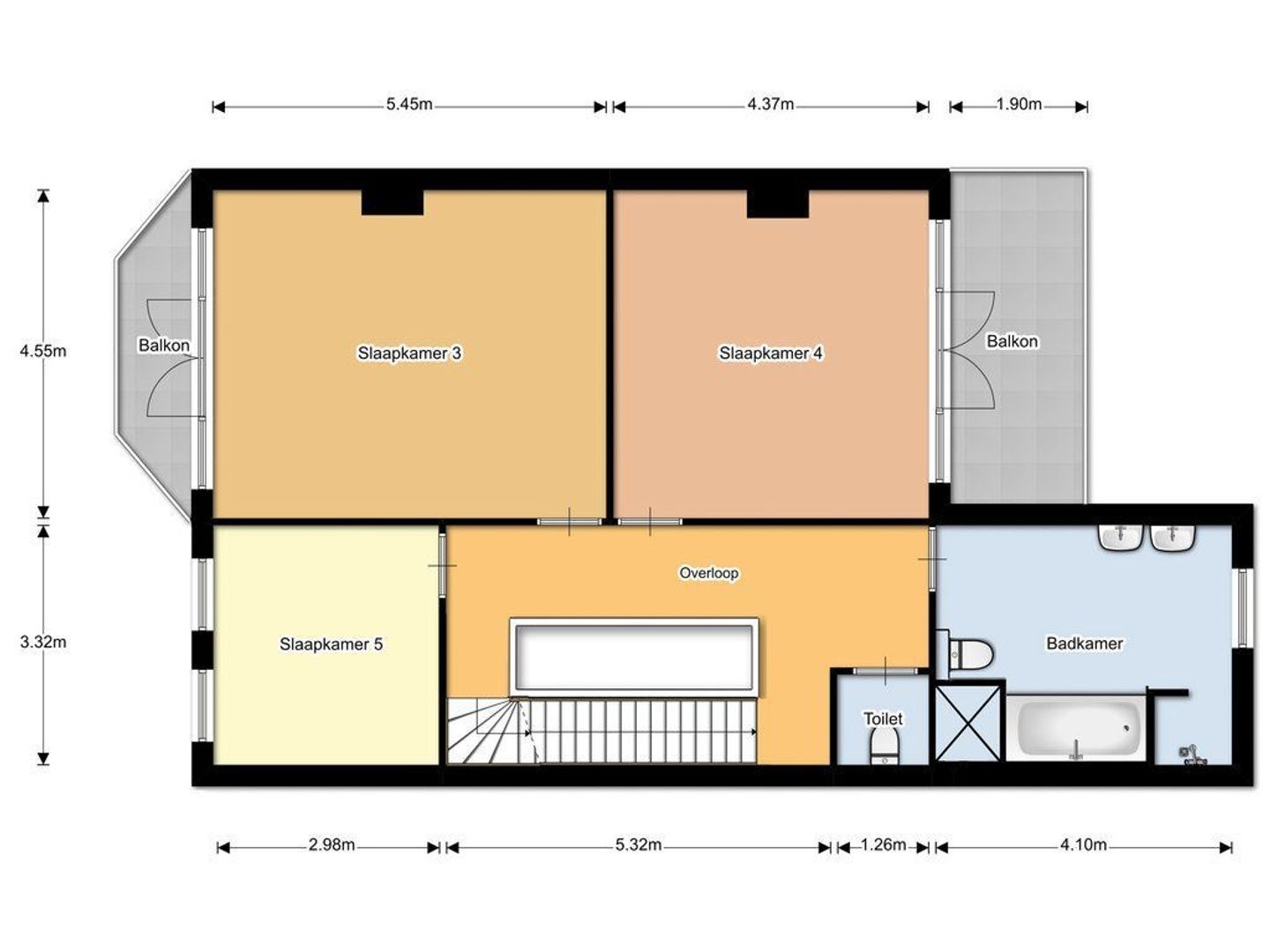
2nd floor: 2 large bedrooms (ca 7.40x4.55 and 5.60x4.55), of which one has a large balcony, luxurious modern bathroom with bath, separate shower and toilet. Bedroom ( ca 3.50x3.25), extra toilet.

Additional remarks:

- Available per the 1st of September
- Available for a minimum of 12 months
- Partially furnished
- Cellar and attic
- Garden and two balconies
- Not suitable for homesharing

The foregoing information has been carefully compiled by our office, among other things on the basis of the data made available to us by the lessor. However, no liability can be accepted by Estata Makelaars o.g. for any incomplete or inaccurate information, nor for the consequences thereof.

Kenmerken

Overdracht

Prijs
€ 4.950 p.m.
Status
Verhuurd
Oplevering
Per direct
Inrichting
Gestoffeerd

Oppervlakten en inhoud

Woonoppervlakte
380m²
Overig oppervlakte
22m²
Inhoud
1.250m³

Bouw

Soort woonhuis
Herenhuis, Tussenwoning
Soort bouw
Bestaande bouw
Onderhoud binnen
Uitstekend
Onderhoud buiten
Uitstekend
Bijzonderheden
Monumentaal pand

Indeling

Aantal kamers
10
Aantal slaapkamers
7
Aantal badkamers
2
Aantal verdiepingen
4
Voorzieningen
Mechanische ventilatie, TV-Kabel

Energie

Energielabel
D
Isolatie
Vloerisolatie, Gedeeltelijk dubbel glas
Warm water
C.V.-ketel
Verwarming
C.V.-ketel, Open haard
Ketel
(Eigendom)

Buitenruimte

Ligging
Aan rustige weg, In woonwijk
Balkon
Ja
Tuin
Achtertuin
Achtertuin
Noordoost, 63m², 700×900cm
Schuur
Aangebouwd steen

Garage

Soort
Betaald parkeren, Parkeervergunning

Locatie

[ { "address": "Prins Mauritslaan 59", "zipCode": "2582 LN", "city": "Den Haag", "lat": 52.0963925, "lng": 4.2753632, "heading": 0, "pitch": 0 } ]
[{"featureType":"water","stylers":[{"visibility":"on"},{"lightness":20},{"saturation":-42},{"hue":"#00ccff"}]},{"featureType":"landscape.man_made","elementType":"geometry","stylers":[{"visibility":"on"},{"saturation":-99},{"lightness":51}]},{"featureType":"road.arterial","elementType":"geometry","stylers":[{"saturation":-98},{"lightness":35}]},{"featureType":"road.highway","elementType":"geometry","stylers":[{"saturation":-95},{"lightness":-10},{"gamma":2.17}]},{"featureType":"poi.park","stylers":[{"visibility":"on"},{"lightness":30},{"saturation":-50},{"hue":"#a1ff00"}]},{"featureType":"poi.school","elementType":"geometry","stylers":[{"saturation":-25},{"lightness":12},{"hue":"#ffdd00"}]},{"featureType":"road.local","stylers":[{"saturation":-100},{"lightness":15}]},{"featureType":"administrative.neighborhood","stylers":[{"visibility":"on"},{"saturation":-100},{"lightness":35}]},{"featureType":"poi.attraction","elementType":"labels","stylers":[{"lightness":15},{"hue":"#ff005d"},{"visibility":"simplified"},{"saturation":-100}]},{"featureType":"road.arterial","elementType":"labels","stylers":[{"visibility":"on"},{"saturation":-98},{"lightness":41},{"gamma":0.75}]},{"featureType":"road.highway","elementType":"labels","stylers":[{"visibility":"simplified"},{"lightness":20},{"saturation":-60}]},{"featureType":"transit.line","stylers":[{"visibility":"simplified"},{"saturation":-25},{"lightness":35}]},{"featureType":"transit.station","elementType":"labels","stylers":[{"lightness":10},{"saturation":-72}]},{"featureType":"poi","elementType":"geometry","stylers":[{"lightness":15},{"saturation":7}]},{"featureType":"poi.place_of_worship","elementType":"labels","stylers":[{"visibility":"off"}]},{"featureType":"poi.sports_complex","elementType":"labels","stylers":[{"visibility":"off"}]},{"featureType":"road","elementType":"labels","stylers":[{"visibility":"off"}]},{"featureType":"road.local","elementType":"labels","stylers":[{"visibility":"on"},{"saturation":-100},{"lightness":21}]},{"featureType":"road.arterial","elementType":"labels","stylers":[{"visibility":"on"},{"lightness":25}]},{"featureType":"transit.line","stylers":[{"visibility":"off"}]},{"featureType":"poi","elementType":"labels","stylers":[{"saturation":-100},{"lightness":35}]},{}]

Vragen?

Bel ons of vul onderstaand formulier in dan nemen wij z.s.m. contact met je op.

Deze woning is Verhuurd

Hartelijk dank

Je bericht is naar ons verzonden. Wij nemen zo snel mogelijk contact met je op.

Sorry, we kunnen helaas niet met zekerheid vaststellen of je een mens of een geautomatiseerde bot/spammer bent. Hierdoor kunnen we het formulier dat je hebt ingevuld niet verzenden. Probeer het opnieuw of neem direct contact op met de makelaar via e-mail.

Er is iets mis gegaan met het versturen van het formulier.
Controleer of alle velden (goed) zijn ingevoerd en probeer het nog een keer.

Wil je een bezichtiging plannen?

recaptcha
reCAPTCHA
PrivacyTerms

Liever telefonisch contact?

Wij zijn bereikbaar op werkdagen tussen 9:00 en 17:30 op +31 70 350 7050

Vergelijkbare woningen

Verhuurd
Hooistraat 7 A.
Centrum, Den Haag
Bovenwoning, 237m², 6 kamers
€ 4.950 p.m.
Verhuurd
Sweelinckplein 36 .
Duinoord, Den Haag
Tussenwoning, 306m², 11 kamers
€ 5.800 p.m.
Verhuurd
Frankenslag 406 .
Geuzen- en Statenkwartier, Den Haag
Eindwoning, 298m², 9 kamers
€ 5.800 p.m.
Verhuurd
Laan Copes van Cattenburch 143 .
Archipelbuurt, Den Haag
Tussenwoning, 300m², 9 kamers
€ 4.500 p.m.