Cookies op Estata Makelaars O.G.

Fijn dat je verder wilt lezen. We gebruiken cookies om de website naar behoren te laten werken, om functies voor social media te bieden en om onze website te analyseren. Dit gebeurt anoniem. Je gaat akkoord met onze cookies als je onze website blijft gebruiken. Op onze website kun je ook ons privacybeleid vinden.

Koopmansstraat 1 F404 Verhuurd

2288 BC, Rijswijk (gelegen in de buurt Plaspoelpolder)


Omschrijving

Luxe afgewerkt, gemeubileerd appartement met 2 slaapkamers, een study, een bergkamer en een parkeerplek, gelegen in het 'Havenkwartier' in Rijswijk. Het ruime appartement, met een vloer oppervlakte van 102 m², heeft energielabel A. De woning is lekker licht vanwege grote raampartijen.

Het appartementencomplex is een getransformeerd kantoorgebouw en bestaat uit 62 appartementen verdeeld over 7 verdiepingen. Het ‘Havenkwartier’ is volop in ontwikkeling en wordt ontwikkeld tot een bruisend modern gedeelte van Rijswijk waar wonen en werken naadloos in elkaar over lopen.

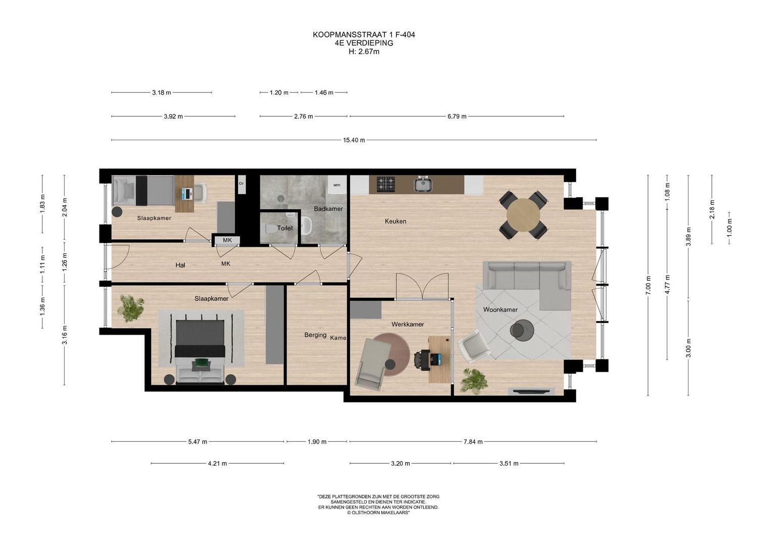
INDELING
Begane grond:
De gesloten centrale hoofdentree is voorzien van brievenbussen, een bellentableau, twee liften en toegang tot het trappenhuis.

4e verdieping:
Het portiek biedt toegang tot de woning. Indeling:

entree appartement, hal, slaapkamer I, slaapkamer, II, W.C., badkamer, bergkamer, woonkamer met open keuken en werkkamer.

KENMERKEN
• Bouwjaar 2020 (het kantoorgebouw is in 1980 gebouwd)
• Energielabel A
• Eigen parkeerplaats
• Geen huisvestingsvergunning nodig
• Voor maatvoering, zie plattegrond.

Deze informatie is door ons kantoor met de grootste zorg samengesteld onder andere aan de hand van de door de verhuurder aan ons ter beschikking gestelde gegevens. Door Estata wordt geen enkele aansprakelijkheid aanvaard voor enige onvolledigheid, onjuistheid of anderszins, dan wel de gevolgen daarvan.

Kenmerken

Overdracht

Prijs
€ 1.975 p.m.
Status
Verhuurd
Oplevering
Per direct
Inrichting
Gemeubileerd

Oppervlakten en inhoud

Woonoppervlakte
102m²
Inhoud
325m³

Bouw

Soort appartement
Bovenwoning, Appartement
Woonlaag
4
Soort bouw
Bestaande bouw
Bouwjaar
2020
Onderhoud binnen
Uitstekend
Onderhoud buiten
Uitstekend

Indeling

Aantal kamers
5
Aantal slaapkamers
2
Aantal badkamers
1
Aantal verdiepingen
1
Voorzieningen
Mechanische ventilatie, TV-Kabel, Lift

Energie

Energielabel
A
Isolatie
Dubbel glas
Warm water
C.V.-ketel
Verwarming
C.V.-ketel
Ketel
HR-107 (Eigendom)

Buitenruimte

Ligging
In woonwijk, Vrij uitzicht

Garage

Soort garage
Inpandig
Capaciteit
1

Locatie

[ { "address": "Koopmansstraat 1", "zipCode": "2288 BC", "city": "Rijswijk", "lat": 52.0431403, "lng": 4.3393321, "heading": 0, "pitch": 0 } ]
[{"featureType":"water","stylers":[{"visibility":"on"},{"lightness":20},{"saturation":-42},{"hue":"#00ccff"}]},{"featureType":"landscape.man_made","elementType":"geometry","stylers":[{"visibility":"on"},{"saturation":-99},{"lightness":51}]},{"featureType":"road.arterial","elementType":"geometry","stylers":[{"saturation":-98},{"lightness":35}]},{"featureType":"road.highway","elementType":"geometry","stylers":[{"saturation":-95},{"lightness":-10},{"gamma":2.17}]},{"featureType":"poi.park","stylers":[{"visibility":"on"},{"lightness":30},{"saturation":-50},{"hue":"#a1ff00"}]},{"featureType":"poi.school","elementType":"geometry","stylers":[{"saturation":-25},{"lightness":12},{"hue":"#ffdd00"}]},{"featureType":"road.local","stylers":[{"saturation":-100},{"lightness":15}]},{"featureType":"administrative.neighborhood","stylers":[{"visibility":"on"},{"saturation":-100},{"lightness":35}]},{"featureType":"poi.attraction","elementType":"labels","stylers":[{"lightness":15},{"hue":"#ff005d"},{"visibility":"simplified"},{"saturation":-100}]},{"featureType":"road.arterial","elementType":"labels","stylers":[{"visibility":"on"},{"saturation":-98},{"lightness":41},{"gamma":0.75}]},{"featureType":"road.highway","elementType":"labels","stylers":[{"visibility":"simplified"},{"lightness":20},{"saturation":-60}]},{"featureType":"transit.line","stylers":[{"visibility":"simplified"},{"saturation":-25},{"lightness":35}]},{"featureType":"transit.station","elementType":"labels","stylers":[{"lightness":10},{"saturation":-72}]},{"featureType":"poi","elementType":"geometry","stylers":[{"lightness":15},{"saturation":7}]},{"featureType":"poi.place_of_worship","elementType":"labels","stylers":[{"visibility":"off"}]},{"featureType":"poi.sports_complex","elementType":"labels","stylers":[{"visibility":"off"}]},{"featureType":"road","elementType":"labels","stylers":[{"visibility":"off"}]},{"featureType":"road.local","elementType":"labels","stylers":[{"visibility":"on"},{"saturation":-100},{"lightness":21}]},{"featureType":"road.arterial","elementType":"labels","stylers":[{"visibility":"on"},{"lightness":25}]},{"featureType":"transit.line","stylers":[{"visibility":"off"}]},{"featureType":"poi","elementType":"labels","stylers":[{"saturation":-100},{"lightness":35}]},{}]

Vragen?

Bel ons of vul onderstaand formulier in dan nemen wij z.s.m. contact met je op.

Deze woning is Verhuurd

Hartelijk dank

Je bericht is naar ons verzonden. Wij nemen zo snel mogelijk contact met je op.

Sorry, we kunnen helaas niet met zekerheid vaststellen of je een mens of een geautomatiseerde bot/spammer bent. Hierdoor kunnen we het formulier dat je hebt ingevuld niet verzenden. Probeer het opnieuw of neem direct contact op met de makelaar via e-mail.

Er is iets mis gegaan met het versturen van het formulier.
Controleer of alle velden (goed) zijn ingevoerd en probeer het nog een keer.

Wil je een bezichtiging plannen?

recaptcha
reCAPTCHA
PrivacyTerms

Liever telefonisch contact?

Wij zijn bereikbaar op werkdagen tussen 9:00 en 17:30 op +31 70 350 7050

Vergelijkbare woningen

Verhuurd
Haagweg 2 F-402.
Oud-Rijswijk, Rijswijk
Bovenwoning, 106m², 4 kamers
€ 1.700 p.m.