Cookies op Estata Makelaars O.G.

Fijn dat je verder wilt lezen. We gebruiken cookies om de website naar behoren te laten werken, om functies voor social media te bieden en om onze website te analyseren. Dit gebeurt anoniem. Je gaat akkoord met onze cookies als je onze website blijft gebruiken. Op onze website kun je ook ons privacybeleid vinden.

Isabellaland 1510 Verkocht

2591 EH, Den Haag (gelegen in de buurt Mariahoeve en Marlot)


Omschrijving

Scroll down for English

Zeer licht en modern hoekappartement op de 7e woonlaag ( topappartement), met vrij uitzicht en zonnig balkon.
Dit charmante appartement heeft door de hoekligging een wat verrassender indeling en heeft slechts buren aan 1 zijde.

Uitvalswegen, openbaar vervoer, winkelcentrum "'Het Kleine Loo""zijn op korte afstand gelegen.

Het appartement is zeer goed onderhouden en wordt gemeubileerd aangeboden. Parkeren op eigen terrein mogelijk

Centrale afgesloten entree via het eigen parkeerterrein bereikbaar , bellen-en brievenbussentableau ,hal er zijn twee liften beschikbaar.

Via de galerij komt u bij het hoekappartement ( niemand passeert u deur/ ramen).

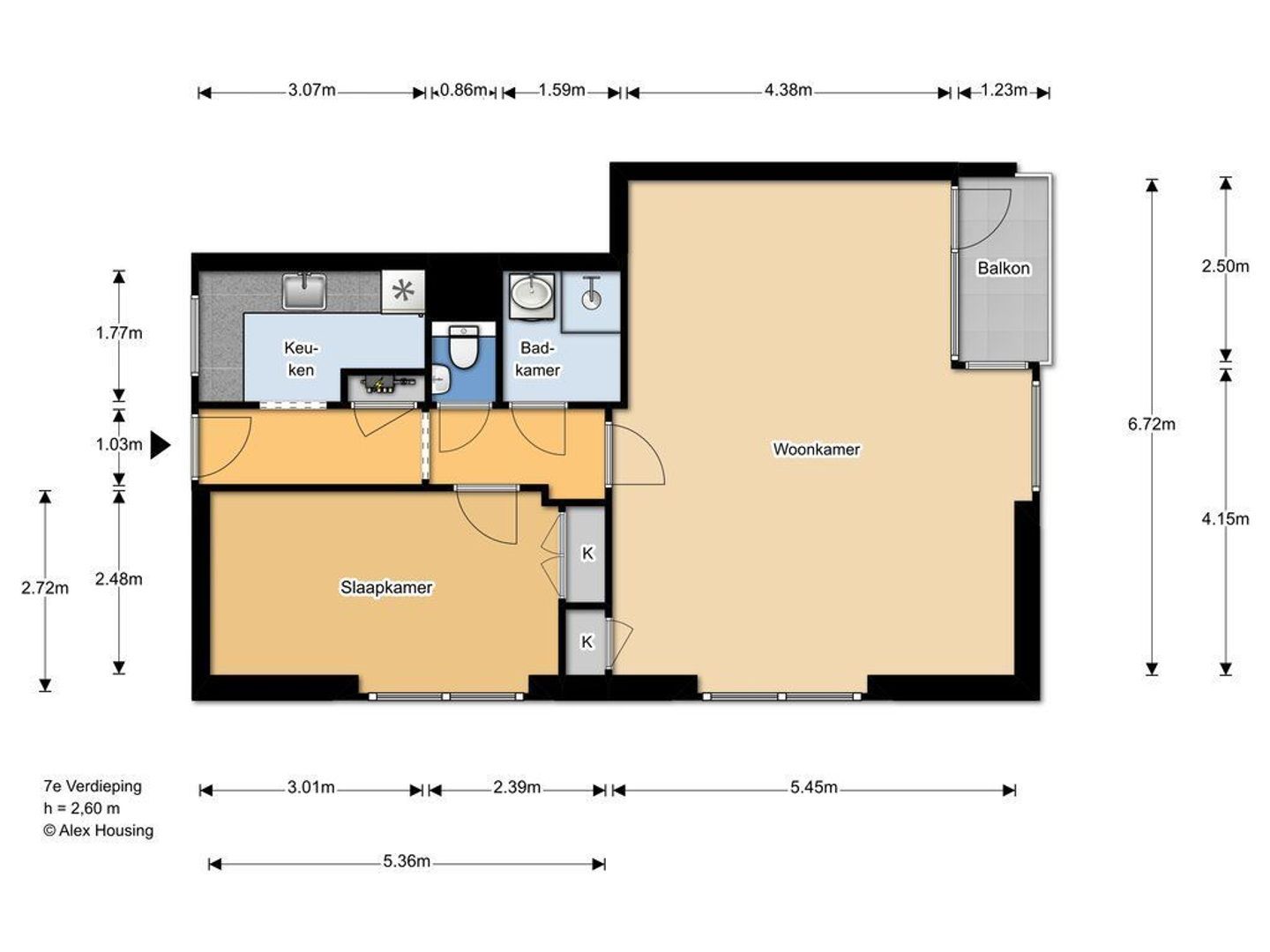
Indeling;

Hal, gang, meterkast. Lichte , ruime woonkamer met zijraam en toegang tot het balkon zuid/oost.
Ruime slaapkamer met vaste kast. Moderne badkamer met douche , wastafel met ombouw en wasmachineaansluiting.

De lichte, moderne keuken ligt aan de galerijzijde en is voorzien van een composiet werkblad, kookplaat, ijskast en afzuigkap.
Moderne WC met wasbakje.

Berging in de onderbouw en gemeenschappelijke fietsenberging

Bijzonderheden;

- Woonopp circa 65m2
- Goede staat van onderhoud, zo te betrekken
- Gemeubileerd
- Blojverwarming
- Boiler, eigendom
- Dubbelglas
- Actieve VVE, bijdrage €166,- per maand
- Voorschot stookkosten € 69,- per maand
- Ouderdoms-en asbestclausule wordt in koopakte opgenomen.
- Niet bewonersclausule is van toepassing.
- Maten zijn indicatief, zie plattegrond

Extraordinarily bright, modern apartment in move-in condition.

Situated on the 7th (top) floor, this charming corner flat has sweeping views from the wonderfully sunny balcony off the living area. The apartment is in excellent condition and is offered fully furnished; extras include a private underground storage unit and off-street parking.

The location is exceptionally convenient – close to public transport, a covered shopping centre, and major motorways.

The entrance via the parking lot leads to a secure lobby where there are two lifts.

A standout feature is the unique position: there is no passing traffic on the gallery leading to the apartment, and neighbours on one side only.

Layout:

Entry; hallway; light, modern living room with side window and door to the southeast-facing balcony.
Spacious bedroom with fitted wardrobe; modern bathroom with shower, vanity, and laundry connections; separate lavatory with wall-mounted w.c. and washbasin.
The bright, modern kitchen has a composite countertop and is equipped with cooktop, refrigerator, and extractor hood.

Worth noting:

- Interior space circa 65m2
- Well maintained, in move-in condition
- Furnished
- Block central heating
- Individually owned electric boiler
- Double glazing
- Active Homeowners Association, monthly contribution €166
- Advance monthly payment for heating € 69
- Older construction, materials and asbestos as well as non-occupancy
disclaimers will be included in the purchase agreement
- Dimensions are indicative, see floor plan

Kenmerken

Overdracht

Prijs
€ 189.000 k.k.
Status
Verkocht
Oplevering
In overleg
Inrichting
Gemeubileerd
Bijdrage VVE
€ 166
Servicekosten
€ 69

Oppervlakten en inhoud

Woonoppervlakte
65m²
Inhoud
210m³

Bouw

Soort appartement
Galerijflat, Appartement
Woonlaag
7
Soort bouw
Bestaande bouw
Bouwjaar
1962
Onderhoud binnen
Goed
Onderhoud buiten
Goed
Bijzonderheden
Toegankelijk voor ouderen, Toegankelijk voor gehandicapten

Indeling

Aantal kamers
2
Aantal slaapkamers
1
Aantal badkamers
1
Aantal verdiepingen
1
Voorzieningen
Mechanische ventilatie, Lift

Energie

Energielabel
F
Isolatie
Dubbel glas
Warm water
Elektrische boiler eigendom
Verwarming
Blokverwarming

Buitenruimte

Ligging
Aan rustige weg, In woonwijk, Vrij uitzicht
Balkon
Ja
Schuur
Box
Faciliteiten schuur
Voorzien van elektra

Garage

Soort
Openbaar parkeren, Op eigen terrein

Locatie

[ { "address": "Isabellaland 1510", "zipCode": "2591 EH", "city": "Den Haag", "lat": 52.0967173, "lng": 4.3674759, "heading": 0, "pitch": 0 } ]
[{"featureType":"water","stylers":[{"visibility":"on"},{"lightness":20},{"saturation":-42},{"hue":"#00ccff"}]},{"featureType":"landscape.man_made","elementType":"geometry","stylers":[{"visibility":"on"},{"saturation":-99},{"lightness":51}]},{"featureType":"road.arterial","elementType":"geometry","stylers":[{"saturation":-98},{"lightness":35}]},{"featureType":"road.highway","elementType":"geometry","stylers":[{"saturation":-95},{"lightness":-10},{"gamma":2.17}]},{"featureType":"poi.park","stylers":[{"visibility":"on"},{"lightness":30},{"saturation":-50},{"hue":"#a1ff00"}]},{"featureType":"poi.school","elementType":"geometry","stylers":[{"saturation":-25},{"lightness":12},{"hue":"#ffdd00"}]},{"featureType":"road.local","stylers":[{"saturation":-100},{"lightness":15}]},{"featureType":"administrative.neighborhood","stylers":[{"visibility":"on"},{"saturation":-100},{"lightness":35}]},{"featureType":"poi.attraction","elementType":"labels","stylers":[{"lightness":15},{"hue":"#ff005d"},{"visibility":"simplified"},{"saturation":-100}]},{"featureType":"road.arterial","elementType":"labels","stylers":[{"visibility":"on"},{"saturation":-98},{"lightness":41},{"gamma":0.75}]},{"featureType":"road.highway","elementType":"labels","stylers":[{"visibility":"simplified"},{"lightness":20},{"saturation":-60}]},{"featureType":"transit.line","stylers":[{"visibility":"simplified"},{"saturation":-25},{"lightness":35}]},{"featureType":"transit.station","elementType":"labels","stylers":[{"lightness":10},{"saturation":-72}]},{"featureType":"poi","elementType":"geometry","stylers":[{"lightness":15},{"saturation":7}]},{"featureType":"poi.place_of_worship","elementType":"labels","stylers":[{"visibility":"off"}]},{"featureType":"poi.sports_complex","elementType":"labels","stylers":[{"visibility":"off"}]},{"featureType":"road","elementType":"labels","stylers":[{"visibility":"off"}]},{"featureType":"road.local","elementType":"labels","stylers":[{"visibility":"on"},{"saturation":-100},{"lightness":21}]},{"featureType":"road.arterial","elementType":"labels","stylers":[{"visibility":"on"},{"lightness":25}]},{"featureType":"transit.line","stylers":[{"visibility":"off"}]},{"featureType":"poi","elementType":"labels","stylers":[{"saturation":-100},{"lightness":35}]},{}]

Vragen?

Bel ons of vul onderstaand formulier in dan nemen wij z.s.m. contact met je op.

Deze woning is Verkocht

Hartelijk dank

Je bericht is naar ons verzonden. Wij nemen zo snel mogelijk contact met je op.

Sorry, we kunnen helaas niet met zekerheid vaststellen of je een mens of een geautomatiseerde bot/spammer bent. Hierdoor kunnen we het formulier dat je hebt ingevuld niet verzenden. Probeer het opnieuw of neem direct contact op met de makelaar via e-mail.

Er is iets mis gegaan met het versturen van het formulier.
Controleer of alle velden (goed) zijn ingevoerd en probeer het nog een keer.

Wil je een bezichtiging plannen?

recaptcha
reCAPTCHA
PrivacyTerms

Liever telefonisch contact?

Wij zijn bereikbaar op werkdagen tussen 9:00 en 17:30 op +31 70 350 7050

Vergelijkbare woningen

Verkocht
Smaragdhorst 425
Mariahoeve en Marlot, Den Haag
Bovenwoning, 86m², 3 kamers
€ 215.000 k.k.
Verkocht
Kornalijnhorst 352
Mariahoeve en Marlot, Den Haag
Portiekflat, 53m², 2 kamers
€ 182.000 k.k.
Verkocht
Kornalijnhorst 228
Mariahoeve en Marlot, Den Haag
Portiekflat, 88m², 3 kamers
€ 219.000 k.k.
Verkocht
Sportlaan 132 a
Bomen- en Bloemenbuurt, Den Haag
Galerijflat, 59m², 2 kamers
€ 215.000 k.k.