Cookies op Estata Makelaars O.G.

Fijn dat je verder wilt lezen. We gebruiken cookies om de website naar behoren te laten werken, om functies voor social media te bieden en om onze website te analyseren. Dit gebeurt anoniem. Je gaat akkoord met onze cookies als je onze website blijft gebruiken. Op onze website kun je ook ons privacybeleid vinden.

Gerard Reijnststraat 21 A. Verhuurd

2593 EA, Den Haag (gelegen in de buurt Bezuidenhout)


Omschrijving

GERARD REIJNSTSTRAAT 21, 2593 EA DEN HAAG

SPACIOUS 3+ BEDROOM 2-BATHROOM APARTMENT IN GOOD CONDITION!

Attractive renovated 3 storey maisonette in arguably the most beautiful street in pre-war Bezuidenhout. Central Station and public transportation within walking distance, great shopping street and park both just around the corner. International organisations and the British School are close by.

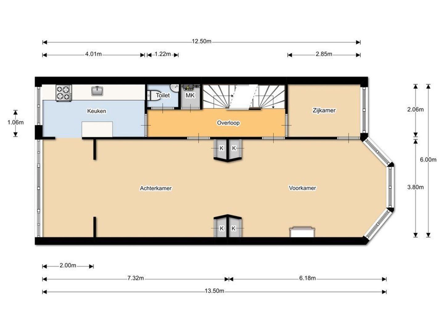
Layout: 1st floor: 2 large adjoining rooms with newly refinished parquet flooring, sliding doors and beautiful leaded glass. Fully equipped modern kitchen. Small front room, ideal as a study; guest lavatory
2nd floor: 2 spacious bedrooms, each with balcony. 1 smaller bedroom. Modern bathroom with bath and separate shower; separate w.c.
3rd floor: spacious landing which can be used as a study/family room, 1 good-sized bedroom; bathroom with shower and w.c.

Worth noting:

- energy label C
- minumum rental period is 16 months
- upholstered
- apartment is in good condition

For room dimensions, see floorplan.

We charge no commission to the tenants.

The foregoing information has been carefully compiled by our office, among other things on the basis of the data made available to us by the lessor. However, no liability can be accepted by Estata Makelaars o.g. for any incomplete or inaccurate information, nor for the consequences thereof.

Kenmerken

Overdracht

Prijs
€ 2.950 p.m.
Status
Verhuurd
Oplevering
Per direct
Inrichting
Gestoffeerd

Oppervlakten en inhoud

Woonoppervlakte
174m²
Inhoud
469m³

Bouw

Soort appartement
Bovenwoning, Dubbel bovenhuis
Woonlaag
2
Soort bouw
Bestaande bouw
Onderhoud binnen
Goed
Onderhoud buiten
Goed

Indeling

Aantal kamers
7
Aantal slaapkamers
5
Aantal badkamers
2
Aantal verdiepingen
3

Energie

Energielabel
C
Isolatie
Dubbel glas
Warm water
C.V.-ketel
Verwarming
C.V.-ketel, Open haard
Ketel
(Eigendom)

Buitenruimte

Ligging
Aan rustige weg, In woonwijk
Balkon
Ja

Garage

Soort
Betaald parkeren, Parkeervergunning

Locatie

[ { "address": "Gerard Reijnststraat 21", "zipCode": "2593 EA", "city": "Den Haag", "lat": 52.0878183, "lng": 4.3367446, "heading": 0, "pitch": 0 } ]
[{"featureType":"water","stylers":[{"visibility":"on"},{"lightness":20},{"saturation":-42},{"hue":"#00ccff"}]},{"featureType":"landscape.man_made","elementType":"geometry","stylers":[{"visibility":"on"},{"saturation":-99},{"lightness":51}]},{"featureType":"road.arterial","elementType":"geometry","stylers":[{"saturation":-98},{"lightness":35}]},{"featureType":"road.highway","elementType":"geometry","stylers":[{"saturation":-95},{"lightness":-10},{"gamma":2.17}]},{"featureType":"poi.park","stylers":[{"visibility":"on"},{"lightness":30},{"saturation":-50},{"hue":"#a1ff00"}]},{"featureType":"poi.school","elementType":"geometry","stylers":[{"saturation":-25},{"lightness":12},{"hue":"#ffdd00"}]},{"featureType":"road.local","stylers":[{"saturation":-100},{"lightness":15}]},{"featureType":"administrative.neighborhood","stylers":[{"visibility":"on"},{"saturation":-100},{"lightness":35}]},{"featureType":"poi.attraction","elementType":"labels","stylers":[{"lightness":15},{"hue":"#ff005d"},{"visibility":"simplified"},{"saturation":-100}]},{"featureType":"road.arterial","elementType":"labels","stylers":[{"visibility":"on"},{"saturation":-98},{"lightness":41},{"gamma":0.75}]},{"featureType":"road.highway","elementType":"labels","stylers":[{"visibility":"simplified"},{"lightness":20},{"saturation":-60}]},{"featureType":"transit.line","stylers":[{"visibility":"simplified"},{"saturation":-25},{"lightness":35}]},{"featureType":"transit.station","elementType":"labels","stylers":[{"lightness":10},{"saturation":-72}]},{"featureType":"poi","elementType":"geometry","stylers":[{"lightness":15},{"saturation":7}]},{"featureType":"poi.place_of_worship","elementType":"labels","stylers":[{"visibility":"off"}]},{"featureType":"poi.sports_complex","elementType":"labels","stylers":[{"visibility":"off"}]},{"featureType":"road","elementType":"labels","stylers":[{"visibility":"off"}]},{"featureType":"road.local","elementType":"labels","stylers":[{"visibility":"on"},{"saturation":-100},{"lightness":21}]},{"featureType":"road.arterial","elementType":"labels","stylers":[{"visibility":"on"},{"lightness":25}]},{"featureType":"transit.line","stylers":[{"visibility":"off"}]},{"featureType":"poi","elementType":"labels","stylers":[{"saturation":-100},{"lightness":35}]},{}]

Vragen?

Bel ons of vul onderstaand formulier in dan nemen wij z.s.m. contact met je op.

Deze woning is Verhuurd

Hartelijk dank

Je bericht is naar ons verzonden. Wij nemen zo snel mogelijk contact met je op.

Sorry, we kunnen helaas niet met zekerheid vaststellen of je een mens of een geautomatiseerde bot/spammer bent. Hierdoor kunnen we het formulier dat je hebt ingevuld niet verzenden. Probeer het opnieuw of neem direct contact op met de makelaar via e-mail.

Er is iets mis gegaan met het versturen van het formulier.
Controleer of alle velden (goed) zijn ingevoerd en probeer het nog een keer.

Wil je een bezichtiging plannen?

recaptcha
reCAPTCHA
PrivacyTerms

Liever telefonisch contact?

Wij zijn bereikbaar op werkdagen tussen 9:00 en 17:30 op +31 70 350 7050

Vergelijkbare woningen

Verhuurd
Borneostraat 158 .
Archipelbuurt, Den Haag
Hoekwoning, 193m², 8 kamers
€ 3.350 p.m.
Verhuurd
Deventersestraat 38 .
Belgisch Park, Den Haag
Tussenwoning, 168m², 10 kamers
€ 2.950 p.m.
Verhuurd
Octavio Pazlaan 15 .
Kraayenstein en Vroondaal, Den Haag
2-onder-1-kapwoning, 200m², 6 kamers
€ 3.400 p.m.
Verhuurd
Van Slingelandtstraat 48 A.
Geuzen- en Statenkwartier, Den Haag
Bovenwoning, 144m², 5 kamers
€ 2.750 p.m.